



- 4 bd
- 2.5 ba
- 2,654 sqft
13304 Tolstoy Dr Se, Covington, GA 30014
- Single-Family
- $142.79/sqft
- $750/annual HOA
- 65 days on Jome
New Homes for Sale Near 13304 Tolstoy Dr Se, Covington, GA 30014
About this Home
About this home
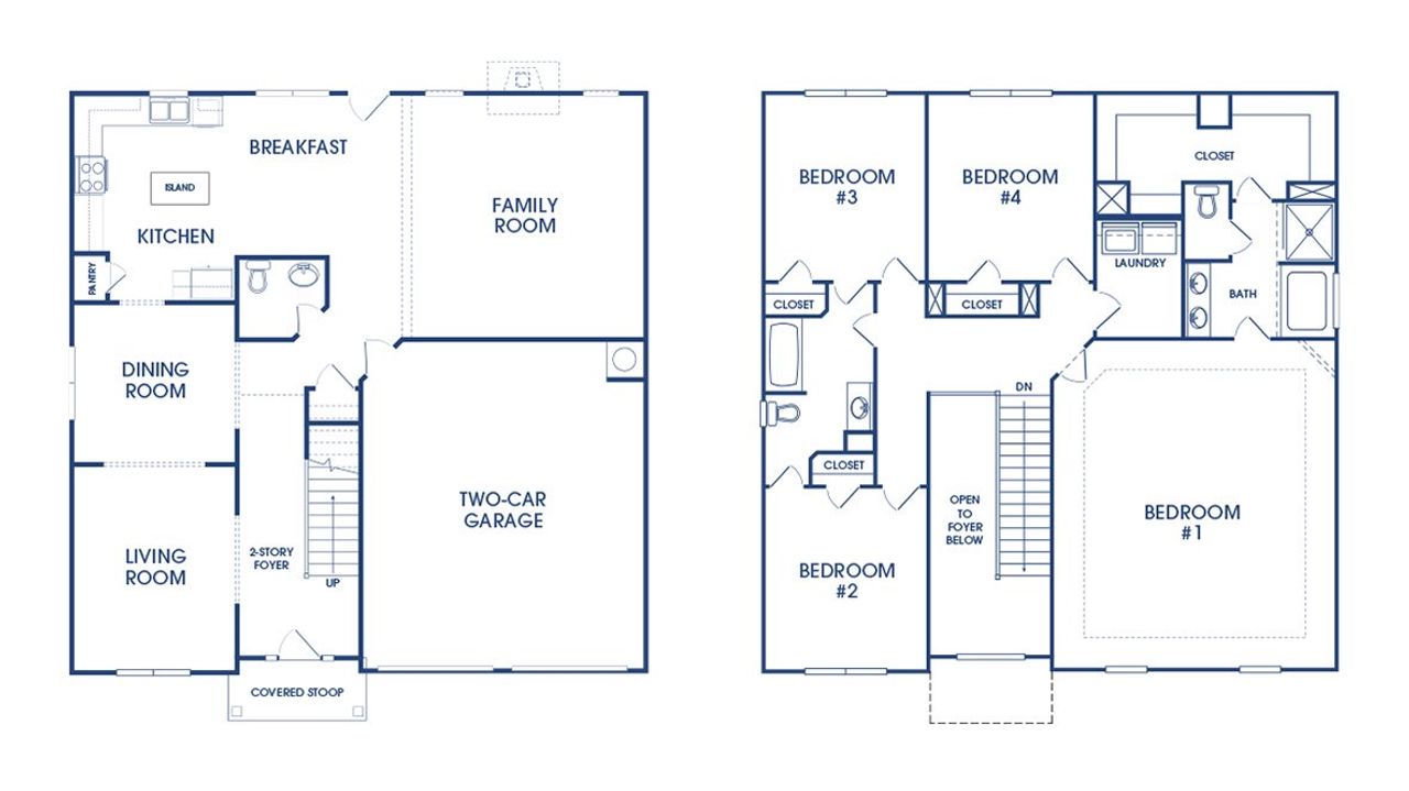
This move-in ready new construction home is available now in Wildwood, offering the perfect opportunity to enjoy new home living without the wait. Featuring 4-bedroom, 2 full baths, plus a powder room, this thoughtfully designed residence combines modern style with everyday functionality. The open-concept floor plan allows for effortless flow between the kitchen, dining, and living areas, making it ideal for entertaining and daily living.
The kitchen is equipped with contemporary cabinetry, spacious countertops, stainless steel appliances, and a large center island, creating a functional and inviting space for cooking and gathering. The primary suite provides a private retreat with a spacious bedroom, walk-in closet, and well-appointed bathroom, offering comfort and relaxation. Secondary bedrooms are versatile and well-sized, perfect for guests, children, or a home office.
This quick move-in home for sale includes professionally selected finishes, energy-efficient features, and modern design elements that enhance comfort and long-term value. Buyers will appreciate the attention to detail throughout, including quality flooring, modern lighting, and thoughtful storage solutions.
Located in Covington, GA, this home offers convenient access to shopping, dining, schools, and major highways, making commuting and daily errands simple. If you are searching for a move-in ready home in Covington, GA, this property delivers exceptional value and convenience. Schedule your private tour today and experience the benefits of owning a new construction quick move-in home.
May also be listed on the D.R. Horton website
Information last verified by Jome: Thursday at 4:50 AM (March 12, 2026)
Home details
- Property status:
- Sold
- Size:
- 2,654 sqft
- Stories:
- 2
- Beds:
- 4
- Baths:
- 2.5
- Garage spaces:
- 2
Construction details
- Builder Name:
- D.R. Horton
Home features & finishes
- Garage/Parking:
- GarageAttached Garage
- Interior Features:
- Walk-In ClosetFoyerPantry
- Laundry facilities:
- Laundry Facilities On Upper LevelUtility/Laundry Room
- Property amenities:
- PatioPorch
- Rooms:
- KitchenPowder RoomDining RoomFamily RoomLiving RoomBreakfast AreaOpen Concept FloorplanPrimary Bedroom Upstairs

Community details
Wildwood
by D.R. Horton, Covington, GA
- 10 homes
- 7 plans
- 2,654 - 3,342 sqft
View Wildwood details
More homes in Wildwood
- Home at address 13280 Tolstoy Dr, Covington, GA 30014

Images coming soon
$393,975
Move-in ready- 4 bd
- 2.5 ba
- 2,654 sqft
13280 Tolstoy Dr, Covington, GA 30014
- Home at address 13472 Whitman Ln, Covington, GA 30014

$398,960
Move-in ready- 4 bd
- 2.5 ba
13472 Whitman Ln, Covington, GA 30014
- Home at address 13478 E Whitman Ln E, Covington, GA 30014

$423,465
Move-in ready- 5 bd
- 3 ba
13478 E Whitman Ln E, Covington, GA 30014
- Home at address 13478 Whitman Ln Se, Covington, GA 30014

$423,465
Move-in ready- 4 bd
- 3 ba
- 2,709 sqft
13478 Whitman Ln Se, Covington, GA 30014
- Home at address 13286 Tolstoy Dr, Covington, GA 30014

$424,825
Move-in ready- 4 bd
- 3.5 ba
13286 Tolstoy Dr, Covington, GA 30014
- Home at address 13623 Whitman Ln Se, Covington, GA 30014

$429,810
Move-in ready- 4 bd
- 3.5 ba
- 2,917 sqft
13623 Whitman Ln Se, Covington, GA 30014
Floor plans in Wildwood
About the builder - D.R. Horton

- 1,164communities on Jome
- 10,478homes on Jome
Neighborhood
Home address
Schools in Newton County School District
GreatSchools’ Summary Rating calculation is based on 4 of the school’s themed ratings, including test scores, student/academic progress, college readiness, and equity. This information should only be used as a reference. Jome is not affiliated with GreatSchools and does not endorse or guarantee this information. Please reach out to schools directly to verify all information and enrollment eligibility. Data provided by GreatSchools.org © 2025
Places of interest
Getting around
Air quality
Noise level
A Soundscore™ rating is a number between 50 (very loud) and 100 (very quiet) that tells you how loud a location is due to environmental noise.
Financials
Nearby communities in Covington
Homes in Covington by D.R. Horton
Recently added communities in this area
Other Builders in Covington, GA
Nearby sold homes
New homes in nearby cities
More New Homes in Covington, GA
- Jome
- New homes search
- Georgia
- Atlanta Metropolitan Area
- Newton County
- Covington
- Wildwood
- 13304 Tolstoy Dr Se, Covington, GA 30014


































































