








Book your tour. Save an average of $18,473. We'll handle the rest.
We collect exclusive builder offers, book your tours, and support you from start to housewarming.
- Confirmed tours
- Get matched & compare top deals
- Expert help, no pressure
- No added fees
Estimated value based on Jome data, T&C apply






























- 5 bd
- 4 ba
- 3,420 sqft
2107 E Haven Dr Ne, Covington, GA 30014
Why tour with Jome?
- No pressure toursTour at your own pace with no sales pressure
- Expert guidanceGet insights from our home buying experts
- Exclusive accessSee homes and deals not available elsewhere
Jome is featured in
- Single-Family
- Quick move-in
- $204.68/sqft
- $500/annual HOA
Home description
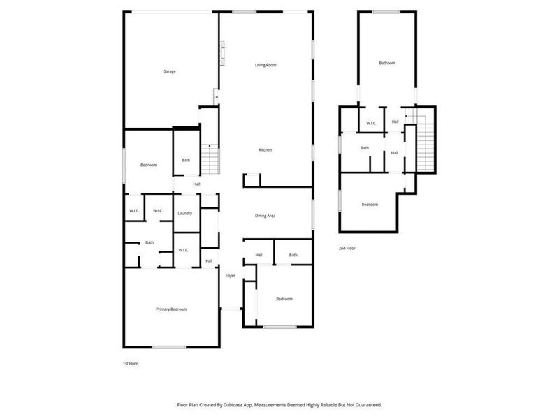
Brand-new ranch home crafted by a boutique builder, located in an exclusive neighborhood attached to the Covington paved walking trail and within walking distance to Downtown Covington Square. This thoughtfully designed home features 3 bedrooms on the main level, each with a private bath, plus 2 bedrooms upstairs that offer flexible living space for guests, media, or office use.
Open-concept kitchen with quartz countertops, abundant storage, and views to the great room. Separate dining room with coffered ceilings. Spacious living area also features coffered ceilings and upgraded lighting throughout.
Owner's suite includes double vanity and large tiled walk-in shower. Enjoy 10-foot ceilings and large covered front and rear porches—perfect for relaxing and creating a true neighborhood community feel. Multiple storage areas throughout. Spray foam insulation provides energy efficiency and lower utility costs.
Builder is offering a $10,000 to use toward closing costs or to buy down your interest rate. VIP preferred lenders can add up to $2,500 more toward closing costs if used.
A perfect blend of luxury, craftsmanship, and convenience in a prime location.
Coldwell Banker Realty, MLS 7748706
Information last verified by Jome: Today at 7:40 AM (April 17, 2026)
Book your tour. Save an average of $18,473. We'll handle the rest.
We collect exclusive builder offers, book your tours, and support you from start to housewarming.
- Confirmed tours
- Get matched & compare top deals
- Expert help, no pressure
- No added fees
Estimated value based on Jome data, T&C apply
Home details
- Property status:
- Move-in ready
- Lot size (acres):
- 0.09
- Size:
- 3,420 sqft
- Stories:
- 1.5
- Beds:
- 5
- Baths:
- 4
- Garage spaces:
- 2
- Fence:
- No Fence
Construction details
- Year Built:
- 2026
- Roof:
- Composition Roofing
Home features & finishes
- Construction Materials:
- Brick
- Cooling:
- Ceiling Fan(s)Central Air
- Flooring:
- Carpet Flooring
- Garage/Parking:
- Door OpenerGarageAttached Garage
- Home amenities:
- Home Accessibility Features
- Interior Features:
- Ceiling-HighWalk-In ClosetShuttersFoyerCoffered CeilingPantryDouble Vanity
- Kitchen:
- DishwasherMicrowave OvenGas CooktopKitchen IslandGas OvenKitchen RangeElectric Oven
- Laundry facilities:
- Laundry Facilities On Main LevelUtility/Laundry Room
- Property amenities:
- FireplacePorch
- Rooms:
- Bonus RoomPrimary Bedroom On MainKitchenFamily RoomLiving RoomPrimary Bedroom Downstairs
- Security system:
- Smoke DetectorCarbon Monoxide Detector

Get a consultation with our New Homes Expert
- See how your home builds wealth
- Plan your home-buying roadmap
- Discover hidden gems
Utility information
- Heating:
- Water Heater, Central Heating, Gas Heating
- Sewer:
- Public Sewer
- Utilities:
- Electricity Available, Natural Gas Available, Phone Available, Cable Available, Sewer Available, Water Available
- Water source:
- Public
Neighborhood
Home address
Schools in Newton County School District
GreatSchools’ Summary Rating calculation is based on 4 of the school’s themed ratings, including test scores, student/academic progress, college readiness, and equity. This information should only be used as a reference. Jome is not affiliated with GreatSchools and does not endorse or guarantee this information. Please reach out to schools directly to verify all information and enrollment eligibility. Data provided by GreatSchools.org © 2025
Places of interest
Getting around
Air quality
Noise level
A Soundscore™ rating is a number between 50 (very loud) and 100 (very quiet) that tells you how loud a location is due to environmental noise.
Natural hazards risk
Provided by FEMA

Considering this home?
Our expert will guide your tour, in-person or virtual
Need more information?
Text or call (888) 545-5198
Financials
Estimated monthly payment
Let us help you find your dream home
How many bedrooms are you looking for?
Similar homes nearby
Recently added communities in this area
Nearby communities in Covington
New homes in nearby cities
More New Homes in Covington, GA
Coldwell Banker Realty, MLS 7748706
Some IDX listings have been excluded from this IDX display. Listings identified with the FMLS IDX logo come from FMLS and are held by brokerage firms other than the owner of this website. The listing brokerage is identified in any listing details. Information is deemed reliable but is not guaranteed. If you believe any FMLS listing contains material that infringes your copyrighted work please click here to review our DMCA policy and learn how to submit a takedown request. © 2025 First Multiple Listing Service, Inc.
Read moreLast checked Apr 17, 7:40 am
- Jome
- New homes search
- Georgia
- Atlanta Metropolitan Area
- Newton County
- Covington
- 2107 E Haven Dr Ne, Covington, GA 30014
























