














Book your tour. Save an average of $18,473. We'll handle the rest.
We collect exclusive builder offers, book your tours, and support you from start to housewarming.
- Confirmed tours
- Get matched & compare top deals
- Expert help, no pressure
- No added fees
Estimated value based on Jome data, T&C apply























































































- 3 bd
- 2.5 ba
- 1,655 sqft
6745 Leigh St, Flowery Branch, GA 30542
Why tour with Jome?
- No pressure toursTour at your own pace with no sales pressure
- Expert guidanceGet insights from our home buying experts
- Exclusive accessSee homes and deals not available elsewhere
Jome is featured in
- Townhouse
- $198.79/sqft
- $165/monthly HOA
- 0.06-acre lot
Home description
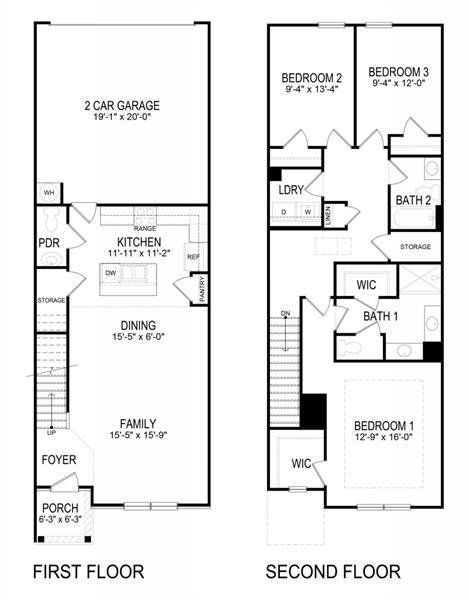
Welcome to the beautiful new community in Flowery Branch, GA, Waypoint that has your new home at 6745 Leigh Street. The stunning Amesbury plan is a 3 bedroom, 2.5 bathroom home with a 2 car garage which blends style and functionality. From the covered front porch, you step into an open floor play layout for gathering with family and friends. The exquisite kitchen has stainless steel appliances, white quartz counter tops, subway tile back splash an center island. A half bathroom and access to the 2 car garage are situated off the kitchen. On the second level, 2 additional bedrooms and a full bathroom. Across the landing is the luxurious primary suite. Homeowners will enjoy two walk-in closets, walk-in shower and separate his/hers vanities. The large laundry room is also conveniently located on the second floor. Come out to Waypoint to get your personal tour of 6745 Leigh Street and make this town home yours.
D.R. Horton Realty of Georgia Inc, MLS 7625665
May also be listed on the D.R. Horton website
Information last verified by Jome: Today at 2:15 AM (March 10, 2026)
Home highlights
Popular North Georgia lake offering boating, fishing, and lakeside living near metro Atlanta and mountain getaways.
Book your tour. Save an average of $18,473. We'll handle the rest.
We collect exclusive builder offers, book your tours, and support you from start to housewarming.
- Confirmed tours
- Get matched & compare top deals
- Expert help, no pressure
- No added fees
Estimated value based on Jome data, T&C apply
Home details
- Property status:
- Pending/Under contract
- Lot size (acres):
- 0.06
- Size:
- 1,655 sqft
- Stories:
- 2
- Beds:
- 3
- Baths:
- 2
- Half baths:
- 1
- Garage spaces:
- 2
- Fence:
- No Fence
Construction details
- Builder Name:
- D.R. Horton
- Year Built:
- 2025
- Roof:
- Composition Roofing, Shingle Roofing
Home features & finishes
- Construction Materials:
- BrickStone
- Cooling:
- Central Air
- Flooring:
- Vinyl FlooringCarpet Flooring
- Foundation Details:
- Slab
- Garage/Parking:
- GarageRear Entry Garage/ParkingAttached Garage
- Interior Features:
- Ceiling-HighWalk-In ClosetCrown MoldingFoyerPantryBlindsBreakfast BarDouble Vanity
- Kitchen:
- DishwasherMicrowave OvenDisposalKitchen IslandKitchen Range
- Laundry facilities:
- Laundry Facilities On Upper LevelUtility/Laundry Room
- Property amenities:
- SodBarLandscapingBathtub in primaryCabinetsPatioSmart Home SystemPorch
- Rooms:
- AtticKitchenPowder RoomDining RoomFamily RoomOpen Concept FloorplanPrimary Bedroom Upstairs
- Security system:
- Smoke DetectorCarbon Monoxide Detector

Get a consultation with our New Homes Expert
- See how your home builds wealth
- Plan your home-buying roadmap
- Discover hidden gems
Utility information
- Heating:
- Electric Heating, Heat Pump, Zoned Heating, Water Heater
- Utilities:
- Electricity Available, Underground Utilities, Phone Available, Cable Available, Sewer Available, Water Available

Community details
Waypoint
by D.R. Horton, Flowery Branch, GA
- 4 homes
- 4 plans
- 1,638 - 1,877 sqft
View Waypoint details
Community amenities
- Playground
- Park Nearby
- Sidewalks Available
- Walking, Jogging, Hike Or Bike Trails
- Shopping Nearby
More homes in Waypoint
- Home at address 6660 Parsons St, Flowery Branch, GA 30542

SUDBURY 24' TOWNHOME
$349,990
- 3 bd
- 2.5 ba
- 1,875 sqft
6660 Parsons St, Flowery Branch, GA 30542
- Home at address 6664 Parsons St, Flowery Branch, GA 30542

SUDBURY 24' TOWNHOME
$359,990
- 3 bd
- 2.5 ba
- 1,877 sqft
6664 Parsons St, Flowery Branch, GA 30542
- Home at address 6672 Parsons St, Flowery Branch, GA 30542

SUDBURY 24' TOWNHOME
$359,990
- 3 bd
- 2.5 ba
- 1,877 sqft
6672 Parsons St, Flowery Branch, GA 30542
- Home at address 6656 Parsons St, Flowery Branch, GA 30542

Salisbury 24' Townhome
$367,990
- 3 bd
- 2.5 ba
- 1,857 sqft
6656 Parsons St, Flowery Branch, GA 30542
Floor plans in Waypoint
About the builder - D.R. Horton

- 1,174communities on Jome
- 10,080homes on Jome
Neighborhood
Home address
- City:
- Flowery Branch
- County:
- Hall
- Zip Code:
- 30542
Schools in Hall County School District
- Grades PK-KGPrivatethe goddard school0.2 mi5989 spout springs rdna
GreatSchools’ Summary Rating calculation is based on 4 of the school’s themed ratings, including test scores, student/academic progress, college readiness, and equity. This information should only be used as a reference. Jome is not affiliated with GreatSchools and does not endorse or guarantee this information. Please reach out to schools directly to verify all information and enrollment eligibility. Data provided by GreatSchools.org © 2025
Places of interest
Getting around
Air quality
Noise level
A Soundscoreâ„¢ rating is a number between 50 (very loud) and 100 (very quiet) that tells you how loud a location is due to environmental noise.

Considering this home?
Our expert will guide your tour, in-person or virtual
Need more information?
Text or call (888) 488-9243
Financials
Estimated monthly payment
Let us help you find your dream home
How many bedrooms are you looking for?
Similar homes nearby
Recently added communities in this area
Nearby communities in Flowery Branch
New homes in nearby cities
More New Homes in Flowery Branch, GA
D.R. Horton Realty of Georgia Inc, MLS 7625665
Some IDX listings have been excluded from this IDX display. Listings identified with the FMLS IDX logo come from FMLS and are held by brokerage firms other than the owner of this website. The listing brokerage is identified in any listing details. Information is deemed reliable but is not guaranteed. If you believe any FMLS listing contains material that infringes your copyrighted work please click here to review our DMCA policy and learn how to submit a takedown request. © 2025 First Multiple Listing Service, Inc.
Read moreLast checked Mar 10, 7:40 am
- Jome
- New homes search
- Georgia
- Atlanta Metropolitan Area
- Hall County
- Flowery Branch
- Waypoint
- 6745 Leigh St, Flowery Branch, GA 30542




























