














Book your tour. Save an average of $18,473. We'll handle the rest.
- Confirmed tours
- Get matched & compare top deals
- Expert help, no pressure
- No added fees
Estimated value based on Jome data, T&C apply





























































- 3 bd
- 2.5 ba
- 1,875 sqft
6660 Parsons St, Flowery Branch, GA 30542
Why tour with Jome?
- No pressure toursTour at your own pace with no sales pressure
- Expert guidanceGet insights from our home buying experts
- Exclusive accessSee homes and deals not available elsewhere
Jome is featured in
- Townhouse
- Under construction
- $202.13/sqft
- $165/monthly HOA
Home description
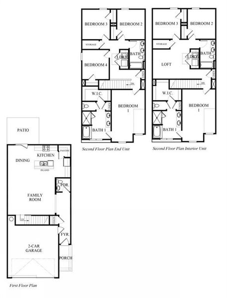
Welcome to 6660 Parsons Street at Waypoint, the hottest new community in Flowery Branch, GA. Conveniently located near I-985, Lake Lanier Island Resort, Chateau Elan Winery, and Mall of Ga. The Sudbury is a two-story plan featuring 3 bedrooms and 2.5 bathrooms with a 2-car garage. As you step into the home, a long foyer welcomes you and leads into the open-concept main living area. The large family room is the perfect place for family and friends to gather. The family room flows into the well-appointed kitchen with a center island, quartz countertops, subway tile backsplash, white shaker-style cabinetry, and stainless-steel appliances. A dining area directly off the kitchen provides space for a dining table and opens onto the back deck or patio. There is also a half bathroom tucked away on the first floor. Up the stairs you'll turn from the landing into the primary suite. This spacious bedroom is complimented by the en suite bathroom featuring a separate tub and shower, dual vanity, water closet, linen closet, and a roomy walk-in closet. Across the landing you'll be led into a loft area that's perfect for a game room or second living space. 2 secondary bedrooms, the laundry room, and an additional bathroom, also with dual vanity, round out the upper floor. Schedule an appointment to tour this today and make 6660 Parsons Street your home!
D.R. Horton Realty of Georgia Inc, MLS 7683703
May also be listed on the D.R. Horton website
Information last verified by Jome: Today at 2:04 AM (January 19, 2026)
Home highlights
Popular North Georgia lake offering boating, fishing, and lakeside living near metro Atlanta and mountain getaways.
Book your tour. Save an average of $18,473. We'll handle the rest.
We collect exclusive builder offers, book your tours, and support you from start to housewarming.
- Confirmed tours
- Get matched & compare top deals
- Expert help, no pressure
- No added fees
Estimated value based on Jome data, T&C apply
Home details
- Property status:
- Under construction
- Lot size (acres):
- 0.05
- Size:
- 1,875 sqft
- Stories:
- 2
- Beds:
- 3
- Baths:
- 2
- Half baths:
- 1
- Garage spaces:
- 2
- Fence:
- No Fence

Floor plan details
Sudbury 24' Townhome
- 3 bd
- 2.5 ba
- 1,877 sqft
View Sudbury 24' Townhome details
Construction details
- Builder Name:
- D.R. Horton
- Year Built:
- 2025
- Roof:
- Composition Roofing, Shingle Roofing
Home features & finishes
- Construction Materials:
- CementStone
- Cooling:
- Central Air
- Flooring:
- Vinyl FlooringCarpet Flooring
- Foundation Details:
- Slab
- Garage/Parking:
- GarageFront Entry Garage/ParkingAttached Garage
- Interior Features:
- Ceiling-HighWalk-In ClosetCrown MoldingFoyerPantryBlindsStorageBreakfast BarSeparate ShowerDouble Vanity
- Kitchen:
- DishwasherMicrowave OvenDisposalKitchen IslandKitchen Range
- Laundry facilities:
- Laundry Facilities On Upper LevelUtility/Laundry Room
- Property amenities:
- SodBarBackyardSoaking TubLandscapingBathtub in primaryCabinetsPatioSmart Home SystemPorch
- Rooms:
- AtticKitchenPowder RoomDining RoomFamily RoomOpen Concept FloorplanPrimary Bedroom Upstairs
- Security system:
- Smoke DetectorCarbon Monoxide Detector

Get a consultation with our New Homes Expert
- See how your home builds wealth
- Plan your home-buying roadmap
- Discover hidden gems
Utility information
- Heating:
- Electric Heating, Heat Pump, Zoned Heating, Water Heater
- Utilities:
- Electricity Available, Underground Utilities, Phone Available, Cable Available, Sewer Available, Water Available

Community details
Waypoint
by D.R. Horton, Flowery Branch, GA
- 7 homes
- 4 plans
- 1,638 - 1,877 sqft
View Waypoint details
Community amenities
- Playground
- Park Nearby
- Sidewalks Available
- Walking, Jogging, Hike Or Bike Trails
- Shopping Nearby
More homes in Waypoint
- Home at address 6745 Leigh St, Flowery Branch, GA 30542

AMESBURY
$328,997
- 3 bd
- 2.5 ba
- 1,655 sqft
6745 Leigh St, Flowery Branch, GA 30542
- Home at address 6737 Leigh St, Flowery Branch, GA 30542

AMESBURY
$329,997
- 3 bd
- 2.5 ba
- 1,655 sqft
6737 Leigh St, Flowery Branch, GA 30542
- Home at address 6736 Leigh St, Flowery Branch, GA 30542

Addington
$349,990
- 3 bd
- 2.5 ba
- 1,638 sqft
6736 Leigh St, Flowery Branch, GA 30542
- Home at address 6728 Leigh St, Flowery Branch, GA 30542

ADDINGTON
$349,990
- 3 bd
- 2.5 ba
- 1,638 sqft
6728 Leigh St, Flowery Branch, GA 30542
- Home at address 6664 Parsons St, Flowery Branch, GA 30542

SUDBURY 24' TOWNHOME
$378,990
- 3 bd
- 2.5 ba
- 1,877 sqft
6664 Parsons St, Flowery Branch, GA 30542
- Home at address 6672 Parsons St, Flowery Branch, GA 30542

SUDBURY 24' TOWNHOME
$381,990
- 3 bd
- 2.5 ba
- 1,877 sqft
6672 Parsons St, Flowery Branch, GA 30542
Floor plans in Waypoint
About the builder - D.R. Horton

- 1,201communities on Jome
- 9,103homes on Jome
Neighborhood
Home address
- City:
- Flowery Branch
- County:
- Hall
- Zip Code:
- 30542
Schools in Hall County School District
- Grades PK-KGPrivatethe goddard school0.2 mi5989 spout springs rdna
GreatSchools’ Summary Rating calculation is based on 4 of the school’s themed ratings, including test scores, student/academic progress, college readiness, and equity. This information should only be used as a reference. Jome is not affiliated with GreatSchools and does not endorse or guarantee this information. Please reach out to schools directly to verify all information and enrollment eligibility. Data provided by GreatSchools.org © 2025
Places of interest
Getting around
Air quality
Noise level
A Soundscoreâ„¢ rating is a number between 50 (very loud) and 100 (very quiet) that tells you how loud a location is due to environmental noise.

Considering this home?
Our expert will guide your tour, in-person or virtual
Need more information?
Text or call (888) 486-2818
Financials
Estimated monthly payment
Let us help you find your dream home
How many bedrooms are you looking for?
Similar homes nearby
Recently added communities in this area
Nearby communities in Flowery Branch
New homes in nearby cities
More New Homes in Flowery Branch, GA
D.R. Horton Realty of Georgia Inc, MLS 7683703
Some IDX listings have been excluded from this IDX display. Listings identified with the FMLS IDX logo come from FMLS and are held by brokerage firms other than the owner of this website. The listing brokerage is identified in any listing details. Information is deemed reliable but is not guaranteed. If you believe any FMLS listing contains material that infringes your copyrighted work please click here to review our DMCA policy and learn how to submit a takedown request. © 2025 First Multiple Listing Service, Inc.
Read moreLast checked Jan 19, 7:40 am
- Jome
- New homes search
- Georgia
- Atlanta Metropolitan Area
- Hall County
- Flowery Branch
- Waypoint
- 6660 Parsons St, Flowery Branch, GA 30542


























