














Book your tour. Save an average of $18,473. We'll handle the rest.
- Confirmed tours
- Get matched & compare top deals
- Expert help, no pressure
- No added fees
Estimated value based on Jome data, T&C apply























- 3 bd
- 2.5 ba
- 1,655 sqft
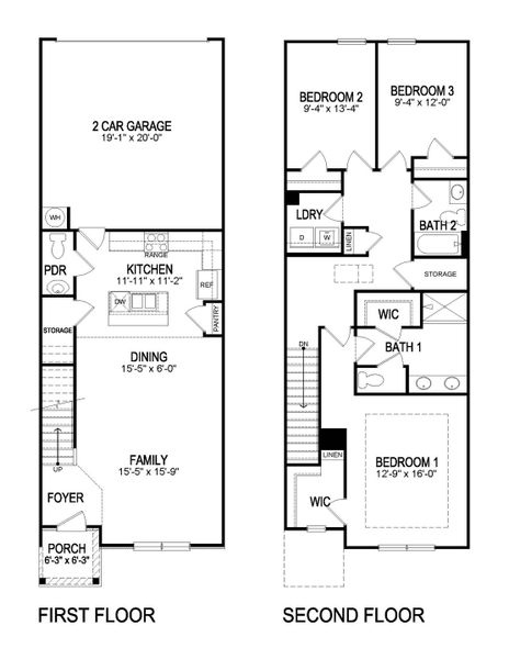
AMESBURY plan in Waypoint by D.R. Horton
Visit the community to experience this floor plan
Why tour with Jome?
- No pressure toursTour at your own pace with no sales pressure
- Expert guidanceGet insights from our home buying experts
- Exclusive accessSee homes and deals not available elsewhere
Jome is featured in
Plan description
May also be listed on the D.R. Horton website
Information last verified by Jome: Today at 1:41 AM (December 19, 2025)
Plan highlights
Book your tour. Save an average of $18,473. We'll handle the rest.
We collect exclusive builder offers, book your tours, and support you from start to housewarming.
- Confirmed tours
- Get matched & compare top deals
- Expert help, no pressure
- No added fees
Estimated value based on Jome data, T&C apply
Plan details
- Name:
- AMESBURY
- Property status:
- Floor plan
- Size:
- 1,655 sqft
- Stories:
- 2
- Beds:
- 3
- Baths:
- 2.5
- Garage spaces:
- 2
Plan features & finishes
- Garage/Parking:
- GarageAttached Garage
- Interior Features:
- Ceiling-HighWalk-In ClosetFoyerPantryBlinds
- Laundry facilities:
- Utility/Laundry Room
- Property amenities:
- SodBathtub in primaryPatioSmart Home SystemPorch
- Rooms:
- KitchenPowder RoomDining RoomFamily RoomOpen Concept FloorplanPrimary Bedroom Upstairs

Community details
Waypoint
by D.R. Horton, Flowery Branch, GA
- 6 homes
- 4 plans
- 1,638 - 1,877 sqft
View Waypoint details
Want to know more about what's around here?
The AMESBURY floor plan is part of Waypoint, a new home community by D.R. Horton, located in Flowery Branch, GA. Visit the Waypoint community page for full neighborhood insights, including nearby schools, shopping, walk & bike-scores, commuting, air quality & natural hazards.

Homes built from this plan
Available homes in Waypoint
More floor plans in Waypoint

Considering this plan?
Our expert will guide your tour, in-person or virtual
Need more information?
Text or call (888) 486-2818
Financials
Estimated monthly payment
Similar homes nearby
Recently added communities in this area
Nearby communities in Flowery Branch
New homes in nearby cities
More New Homes in Flowery Branch, GA
- Jome
- New homes search
- Georgia
- Atlanta Metropolitan Area
- Hall County
- Flowery Branch
- Waypoint
- 6626 Corryton St, Flowery Branch, GA 30542



































