



Book your tour. Save an average of $18,473. We'll handle the rest.
We collect exclusive builder offers, book your tours, and support you from start to housewarming.
- Confirmed tours
- Get matched & compare top deals
- Expert help, no pressure
- No added fees
Estimated value based on Jome data, T&C apply
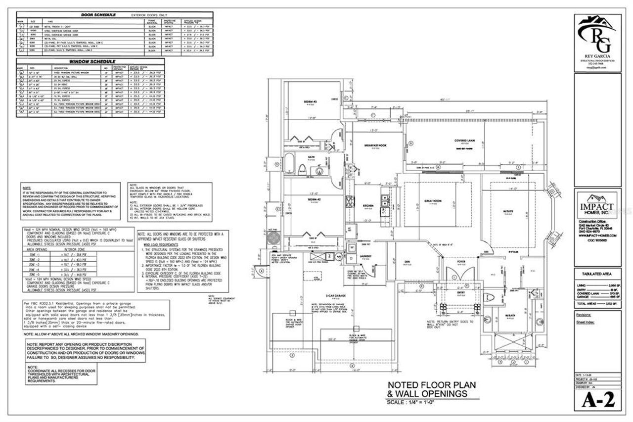
- 3 bd
- 2 ba
- 2,065 sqft
395 San Cristobal Ave, Punta Gorda, FL 33983
Why tour with Jome?
- No pressure toursTour at your own pace with no sales pressure
- Expert guidanceGet insights from our home buying experts
- Exclusive accessSee homes and deals not available elsewhere
Jome is featured in
- Single-Family
- Ready by November 2027
- $240.68/sqft
- $210/annual HOA
Home description
Brand-new custom home to be built in the highly desirable community of Deep Creek offering 3 bedrooms, 2 bathrooms, and 2,065 square feet of thoughtfully designed living space plus a 3-car garage and versatile flex room. This open-concept floor plan is ideal for modern Florida living with seamless flow between the kitchen, dining, and great room areas. Interior features include quartz countertops, wood cabinetry, stainless steel appliances, and 20x20 porcelain tile throughout for a clean, cohesive, and low-maintenance finish. Built with quality and efficiency in mind, this home includes full engineered plans and permit fees, impact-rated windows and sliders, R30 batt insulation, and a durable 3D shingle roof. Water and sewer connection fees are included. The flex room provides the perfect space for a home office, den, fitness room, or guest area. Buyers have the opportunity to personalize select finishes and upgrade options, including a 3-car garage or private pool, allowing you to tailor the home to your lifestyle. Deep Creek is a deed-restricted community with low HOA fees and features a public golf course, sidewalks, greenbelts, parks, and playground. Conveniently located near shopping, dining, I-75, and historic downtown Punta Gorda, residents enjoy easy access to waterfront parks, Fishermen’s Village, walking and biking trails, and a nearby public boat ramp providing access to Charlotte Harbor and the Gulf. The purchase price includes the lot, providing a complete new construction package. Final pricing subject to builder contract. HOA approval of exterior architectural plans is required; buyers to contact HOA directly for details and requirements prior to construction.
RE/MAX HARBOR REALTY, MLS C7520985
Information last verified by Jome: Yesterday at 9:38 AM (April 12, 2026)
Home highlights
Book your tour. Save an average of $18,473. We'll handle the rest.
We collect exclusive builder offers, book your tours, and support you from start to housewarming.
- Confirmed tours
- Get matched & compare top deals
- Expert help, no pressure
- No added fees
Estimated value based on Jome data, T&C apply
Home details
- Property status:
- Under construction
- Lot size (acres):
- 0.22
- Size:
- 2,065 sqft
- Stories:
- 1
- Beds:
- 3
- Baths:
- 2
- Garage spaces:
- 3
- Facing direction:
- East
Construction details
- Completion Date:
- November, 2027
- Year Built:
- 2027
- Roof:
- Shingle Roofing
Home features & finishes
- Construction Materials:
- StuccoBlock
- Cooling:
- Central Air
- Flooring:
- Tile Flooring
- Foundation Details:
- Slab
- Garage/Parking:
- GarageAttached Garage
- Home amenities:
- InternetGreen Construction
- Interior Features:
- Ceiling-HighCeiling-VaultedWalk-In ClosetSliding Doors
- Kitchen:
- DishwasherMicrowave OvenRefrigeratorKitchen Range
- Lighting:
- Exterior LightingStreet Lights
- Pets:
- Pets Allowed
- Property amenities:
- SidewalkStorage BuildingCabinets
- Rooms:
- Primary Bedroom On MainKitchenOpen Concept FloorplanPrimary Bedroom Downstairs

Get a consultation with our New Homes Expert
- See how your home builds wealth
- Plan your home-buying roadmap
- Discover hidden gems
Utility information
- Heating:
- Thermostat, Water Heater, Central Heating
- Sewer:
- Public Sewer
- Utilities:
- Electricity Available, Cable Available, Sewer Available, Water Available
- Water source:
- Public
Community amenities
- Playground
- Tennis Courts
- Park Nearby
- Sidewalks Available
- Waterfront View
Neighborhood
Home address
- City:
- Punta Gorda
- County:
- Charlotte
- Zip Code:
- 33983
Schools in Charlotte County School District
- Grades PK-KGPrivatefaith preparatory school2.2 mi12100 sw academy drna
GreatSchools’ Summary Rating calculation is based on 4 of the school’s themed ratings, including test scores, student/academic progress, college readiness, and equity. This information should only be used as a reference. Jome is not affiliated with GreatSchools and does not endorse or guarantee this information. Please reach out to schools directly to verify all information and enrollment eligibility. Data provided by GreatSchools.org © 2025
Places of interest
Getting around
Air quality
Noise level
A Soundscore™ rating is a number between 50 (very loud) and 100 (very quiet) that tells you how loud a location is due to environmental noise.
Natural hazards risk
Provided by FEMA

Considering this home?
Our expert will guide your tour, in-person or virtual
Need more information?
Text or call (888) 545-5198
Financials
Estimated monthly payment
Let us help you find your dream home
How many bedrooms are you looking for?
Similar homes nearby
Recently added communities in this area
Nearby communities in Punta Gorda
New homes in nearby cities
More New Homes in Punta Gorda, FL
RE/MAX HARBOR REALTY, MLS C7520985
Based on information submitted to the MLS GRID as of 10/21/2024 2:31 PM CDT. All data is obtained from various sources and may not have been verified by broker or MLS GRID. Supplied Open House Information is subject to change without notice. All information should be independently reviewed and verified for accuracy. Properties may or may not be listed by the office/agent presenting the information. Some IDX listings have been excluded from this website. Properties displayed may be listed or sold by various participants in the MLS. IDX information is provided exclusively for personal, non-commercial use, and may not be used for any purpose other than to identify prospective properties consumers may be interested in purchasing. Information is deemed reliable but not guaranteed. Use of the MLS GRID Data may be subject to an end user license agreement prescribed by the Member Participant’s applicable MLS if any and as amended from time to time. The Digital Millennium Copyright Act of 1998, 17 U.S.C. § 512 (the “DMCA”) provides recourse for copyright owners who believe that material appearing on the Internet infringes their rights under U.S. copyright law. If you believe in good faith that any content or material made available in connection with our website or services infringes your copyright, you (or your agent) may send us a notice requesting that the content or material be removed, or access to it blocked. Notices must be sent in writing by email to DMCAnotice@MLSGrid.com. The DMCA requires that your notice of alleged copyright infringement include the following information: (1) description of the copyrighted work that is the subject of claimed infringement; (2) description of the alleged infringing content and information sufficient to permit us to locate the content; (3) contact information for you, including your address, telephone number and email address; (4) a statement by you that you have a good faith belief that the content in the manner complained of is not authorized by the copyright owner, or its agent, or by the operation of any law; (5) a statement by you, signed under penalty of perjury, that the information in the notification is accurate and that you have the authority to enforce the copyrights that are claimed to be infringed; and (6) a physical or electronic signature of the copyright owner or a person authorized to act on the copyright owner’s behalf. Failure to include all of the above information may result in the delay of the processing of your complaint. Listing Information presented by local MLS brokerage: NewHomesMate LLC, DBA Jome (888) 545-5198
Read moreLast checked Apr 13, 3:10 am
- Jome
- New homes search
- Florida
- Charlotte County
- Punta Gorda
- 395 San Cristobal Ave, Punta Gorda, FL 33983



























