









Book your tour. Save an average of $18,473. We'll handle the rest.
We collect exclusive builder offers, book your tours, and support you from start to housewarming.
- Confirmed tours
- Get matched & compare top deals
- Expert help, no pressure
- No added fees
Estimated value based on Jome data, T&C apply












- 5 bd
- 3 ba
- 2,434 sqft
995 Connolly Ln Ne, Palm Bay, FL 32905
Why tour with Jome?
- No pressure toursTour at your own pace with no sales pressure
- Expert guidanceGet insights from our home buying experts
- Exclusive accessSee homes and deals not available elsewhere
Jome is featured in
- Single-Family
- Ready by May 2026
- $196.38/sqft
- $182.5/quarterly HOA
Home description
Located along Florida’s Space Coast, you are minutes from nearby beaches such as Melbourne Beach, Indialantic Beach, Satellite Beach, and Indian Harbour Beach, as well as many outdoor recreation areas like Turkey Creek Sanctuary, Fred Lee Park, and Andretti Thrill Park. Conveniently located near major highways (I-95, FL-192, and US-1) and 78 miles from Orlando attractions, Country Club Estates offers the perfect blend of coastal living and easy access to Central Florida. Commuting will be a breeze with proximity to major employers, including just 12 miles to L3Harris Technologies & Northrop Grumman, 17 miles from Patrick Space Force Base and 8 miles to Viera.
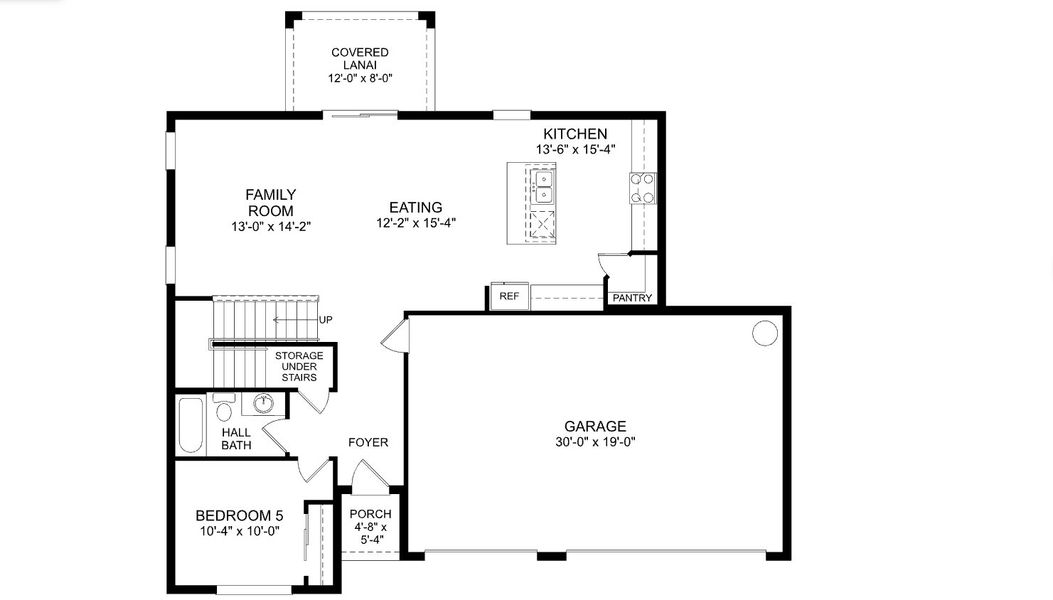
The Linden offers the perfect amount of space, complete with smart storage perfect for all buyers alike. Two stand out features upon entering the home are the large under-stair storage area, as well as a flex room that can be used as an optional fifth bedroom. Past the stairs is the large open living area stretching for nearly 40 feet; including the great room, dining room, and kitchen. The kitchen is complete with a massive island and a walk-in pantry. Completing the first floor is a large lanai extending much of the width of the home. Upstairs, a large loft provides endless opportunities for entertainment and storage. A large laundry room includes an optional sink, perfect for additional cleaning needs. Three large bedrooms share a bathroom, complete with a double vanity and a toilet behind a closed door. Much of the top floor is dedicated to the primary suite. The bedroom itself offers plenty of room, but the real attractions here are the massive walk-in closet.
SM FLORIDA BROKERAGE LLC, MLS O6379832
May also be listed on the Stanley Martin Homes website
Information last verified by Jome: Today at 3:11 AM (April 13, 2026)
Book your tour. Save an average of $18,473. We'll handle the rest.
We collect exclusive builder offers, book your tours, and support you from start to housewarming.
- Confirmed tours
- Get matched & compare top deals
- Expert help, no pressure
- No added fees
Estimated value based on Jome data, T&C apply
Home details
- Property status:
- Under construction
- Lot size (acres):
- 0.17
- Size:
- 2,434 sqft
- Stories:
- 2
- Beds:
- 5
- Baths:
- 3
- Garage spaces:
- 3
- Facing direction:
- West
Construction details
- Builder Name:
- Stanley Martin Homes
- Completion Date:
- May, 2026
- Year Built:
- 2026
- Roof:
- Shingle Roofing
Home features & finishes
- Construction Materials:
- StuccoBlockVinyl SidingStone
- Cooling:
- Central Air
- Flooring:
- Ceramic FlooringVinyl FlooringCarpet FlooringTile Flooring
- Foundation Details:
- Slab
- Garage/Parking:
- GarageCovered Garage/ParkingGarage StorageAttached Garage
- Home amenities:
- ENERGY STAR Certified
- Interior Features:
- Walk-In ClosetFull Bath on MainFoyerPantrySliding DoorsStorageLoft
- Kitchen:
- DishwasherMicrowave OvenDisposalKitchen IslandKitchen Range
- Laundry facilities:
- Laundry Facilities On Upper LevelDryerWasherUtility/Laundry Room
- Lighting:
- Exterior Lighting
- Pets:
- Pets Allowed
- Property amenities:
- SidewalkLandscapingLanaiIrrigationPatioPorch
- Rooms:
- KitchenDining RoomFamily RoomLiving RoomOpen Concept FloorplanPrimary Bedroom Upstairs
- Security system:
- Smoke Detector

Get a consultation with our New Homes Expert
- See how your home builds wealth
- Plan your home-buying roadmap
- Discover hidden gems
Utility information
- Heating:
- Electric Heating, Thermostat, Central Heating
- Sewer:
- Public Sewer
- Utilities:
- Electricity Available, Underground Utilities, Phone Available, Cable Available, Water Available
- Water source:
- Public

Community details
Country Club Estates
by Stanley Martin Homes, Palm Bay, FL
- 13 homes
- 8 plans
- 1,604 - 2,856 sqft
View Country Club Estates details
Community amenities
- Woods View
More homes in Country Club Estates
- Home at address 1085 Connolly Ln Ne, Palm Bay, FL 32905

The Chester
$495,500
- 5 bd
- 4.5 ba
- 2,856 sqft
1085 Connolly Ln Ne, Palm Bay, FL 32905
- Home at address 1155 Connolly Ln Ne, Palm Bay, FL 32905

The Chester
$509,500
- 5 bd
- 4.5 ba
- 2,856 sqft
1155 Connolly Ln Ne, Palm Bay, FL 32905
- Home at address 1005 Connolly Ln Ne, Palm Bay, FL 32905

Chester
$516,500
- 5 bd
- 4.5 ba
- 2,856 sqft
1005 Connolly Ln Ne, Palm Bay, FL 32905
Floor plans in Country Club Estates
About the builder - Stanley Martin Homes
Neighborhood
Home address
Schools in Brevard County School District
- Grades PK-12Privatelifeline academy1.1 mi1080 port malabar blvd nena
- Grades M-MPublicsouth area head start1.4 mi1430 knecht rd nena
GreatSchools’ Summary Rating calculation is based on 4 of the school’s themed ratings, including test scores, student/academic progress, college readiness, and equity. This information should only be used as a reference. Jome is not affiliated with GreatSchools and does not endorse or guarantee this information. Please reach out to schools directly to verify all information and enrollment eligibility. Data provided by GreatSchools.org © 2025
Places of interest
Getting around
Air quality
Noise level
A Soundscore™ rating is a number between 50 (very loud) and 100 (very quiet) that tells you how loud a location is due to environmental noise.

Considering this home?
Our expert will guide your tour, in-person or virtual
Need more information?
Text or call (888) 545-5198
Financials
Estimated monthly payment
Let us help you find your dream home
How many bedrooms are you looking for?
Similar homes nearby
Recently added communities in this area
Nearby communities in Palm Bay
New homes in nearby cities
More New Homes in Palm Bay, FL
SM FLORIDA BROKERAGE LLC, MLS O6379832
Based on information submitted to the MLS GRID as of 10/21/2024 2:31 PM CDT. All data is obtained from various sources and may not have been verified by broker or MLS GRID. Supplied Open House Information is subject to change without notice. All information should be independently reviewed and verified for accuracy. Properties may or may not be listed by the office/agent presenting the information. Some IDX listings have been excluded from this website. Properties displayed may be listed or sold by various participants in the MLS. IDX information is provided exclusively for personal, non-commercial use, and may not be used for any purpose other than to identify prospective properties consumers may be interested in purchasing. Information is deemed reliable but not guaranteed. Use of the MLS GRID Data may be subject to an end user license agreement prescribed by the Member Participant’s applicable MLS if any and as amended from time to time. The Digital Millennium Copyright Act of 1998, 17 U.S.C. § 512 (the “DMCA”) provides recourse for copyright owners who believe that material appearing on the Internet infringes their rights under U.S. copyright law. If you believe in good faith that any content or material made available in connection with our website or services infringes your copyright, you (or your agent) may send us a notice requesting that the content or material be removed, or access to it blocked. Notices must be sent in writing by email to DMCAnotice@MLSGrid.com. The DMCA requires that your notice of alleged copyright infringement include the following information: (1) description of the copyrighted work that is the subject of claimed infringement; (2) description of the alleged infringing content and information sufficient to permit us to locate the content; (3) contact information for you, including your address, telephone number and email address; (4) a statement by you that you have a good faith belief that the content in the manner complained of is not authorized by the copyright owner, or its agent, or by the operation of any law; (5) a statement by you, signed under penalty of perjury, that the information in the notification is accurate and that you have the authority to enforce the copyrights that are claimed to be infringed; and (6) a physical or electronic signature of the copyright owner or a person authorized to act on the copyright owner’s behalf. Failure to include all of the above information may result in the delay of the processing of your complaint. Listing Information presented by local MLS brokerage: NewHomesMate LLC, DBA Jome (888) 545-5198
Read moreLast checked Apr 13, 3:10 am
- Jome
- New homes search
- Florida
- Space Coast
- Brevard County
- Palm Bay
- Country Club Estates
- 995 Connolly Ln Ne, Palm Bay, FL 32905





























