













Book your tour. Save an average of $18,473. We'll handle the rest.
- Confirmed tours
- Get matched & compare top deals
- Expert help, no pressure
- No added fees
Estimated value based on Jome data, T&C apply





















- 4 bd
- 3 ba
- 2,032 sqft
8074 Saint Kitts Cir, Englewood, FL 34224
Why tour with Jome?
- No pressure toursTour at your own pace with no sales pressure
- Expert guidanceGet insights from our home buying experts
- Exclusive accessSee homes and deals not available elsewhere
Jome is featured in
- Single-Family
- Quick move-in
- $174.51/sqft
- $897/quarterly HOA
Home description
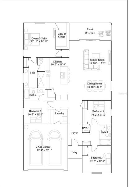
Maintenance Free Living 4BR/3BA Lakefront Gated Home in Island Lakes at Coco Bay (Englewood), Live the Florida lifestyle in this move-in-ready, oversized corner lot, single-story home in Englewood’s premier gated coastal community. Located in an X-flood zone with impact windows, offering peace of mind and low insurance costs. Features include a bright open-concept layout, shaker cabinetry, quartz countertops, neutral tile flooring, large kitchen island, walk-in pantry, and a spacious great room opening to a screened paver lanai with tranquil lake views. The private primary suite offers a large walk-in shower and oversized closet, while Bedroom 2 includes an en-suite bath, ideal for guests. A 2-car garage and full appliance package (refrigerator, washer & dryer) make this home truly move-in ready. Enjoy resort-style amenities: community pool, clubhouse, fitness center, pickleball, playground, high-speed internet, and lawn care—all included with the HOA. Just 6 miles to the beach, 7 miles to Boca Grande and within minutes of shopping and restaurants.
FATHOM REALTY FL LLC, MLS A4674259
May also be listed on the Lennar website
Information last verified by Jome: Today at 10:32 AM (December 6, 2025)
Home highlights
Book your tour. Save an average of $18,473. We'll handle the rest.
We collect exclusive builder offers, book your tours, and support you from start to housewarming.
- Confirmed tours
- Get matched & compare top deals
- Expert help, no pressure
- No added fees
Estimated value based on Jome data, T&C apply
Home details
- Property status:
- Move-in ready
- Lot size (acres):
- 0.18
- Size:
- 2,032 sqft
- Stories:
- 1
- Beds:
- 4
- Baths:
- 3
- Garage spaces:
- 2
- Facing direction:
- East
Construction details
- Builder Name:
- Lennar
- Completion Date:
- September, 2025
- Year Built:
- 2025
- Roof:
- Shingle Roofing
Home features & finishes
- Appliances:
- Trash Compactor
- Construction Materials:
- Block
- Cooling:
- Central Air
- Flooring:
- Tile Flooring
- Foundation Details:
- Slab
- Garage/Parking:
- GarageAttached Garage
- Home amenities:
- Internet
- Interior Features:
- Window TreatmentsWalk-In ClosetFoyerSliding Doors
- Kitchen:
- DishwasherMicrowave OvenDisposalKitchen Range
- Laundry facilities:
- DryerWasherUtility/Laundry Room
- Lighting:
- Exterior LightingStreet Lights
- Pets:
- Cat(s) Only AllowedDog(s) Only Allowed
- Property amenities:
- Lanai
- Rooms:
- Primary Bedroom On MainKitchenDining RoomFamily RoomLiving RoomOpen Concept FloorplanPrimary Bedroom Downstairs
Utility information
- Heating:
- Thermostat, Water Heater, Central Heating
- Utilities:
- Electricity Available, Underground Utilities, Cable Available, Water Available

Community details
Island Lakes at Coco Bay: Executive Homes
by Lennar, Englewood, FL
- 6 homes
- 6 plans
- 1,635 - 2,201 sqft
View Island Lakes at Coco Bay: Executive Homes details
Community amenities
- Playground
- Fitness Center/Exercise Area
- Club House
- Tennis Courts
- Gated Community
- Community Pool
- Park Nearby
- Sidewalks Available
- Waterfront View
- Racquetball Court
More homes in Island Lakes at Coco Bay: Executive Homes
Floor plans in Island Lakes at Coco Bay: Executive Homes
About the builder - Lennar
Neighborhood
Home address
Schools in Charlotte County School District
GreatSchools’ Summary Rating calculation is based on 4 of the school’s themed ratings, including test scores, student/academic progress, college readiness, and equity. This information should only be used as a reference. Jome is not affiliated with GreatSchools and does not endorse or guarantee this information. Please reach out to schools directly to verify all information and enrollment eligibility. Data provided by GreatSchools.org © 2025
Places of interest
Getting around
Air quality
Noise level
A Soundscore™ rating is a number between 50 (very loud) and 100 (very quiet) that tells you how loud a location is due to environmental noise.
Natural hazards risk
Climate hazards can impact homes and communities, with risks varying by location. These scores reflect the potential impact of natural disasters and climate-related risks on Charlotte County
Provided by FEMA

Considering this home?
Our expert will guide your tour, in-person or virtual
Need more information?
Text or call (888) 486-2818
Financials
Estimated monthly payment
Similar homes nearby
Recently added communities in this area
Nearby communities in Englewood
New homes in nearby cities
More New Homes in Englewood, FL
FATHOM REALTY FL LLC, MLS A4674259
Based on information submitted to the MLS GRID as of 10/21/2024 2:31 PM CDT. All data is obtained from various sources and may not have been verified by broker or MLS GRID. Supplied Open House Information is subject to change without notice. All information should be independently reviewed and verified for accuracy. Properties may or may not be listed by the office/agent presenting the information. Some IDX listings have been excluded from this website. Properties displayed may be listed or sold by various participants in the MLS. IDX information is provided exclusively for personal, non-commercial use, and may not be used for any purpose other than to identify prospective properties consumers may be interested in purchasing. Information is deemed reliable but not guaranteed. Use of the MLS GRID Data may be subject to an end user license agreement prescribed by the Member Participant’s applicable MLS if any and as amended from time to time. The Digital Millennium Copyright Act of 1998, 17 U.S.C. § 512 (the “DMCA”) provides recourse for copyright owners who believe that material appearing on the Internet infringes their rights under U.S. copyright law. If you believe in good faith that any content or material made available in connection with our website or services infringes your copyright, you (or your agent) may send us a notice requesting that the content or material be removed, or access to it blocked. Notices must be sent in writing by email to DMCAnotice@MLSGrid.com. The DMCA requires that your notice of alleged copyright infringement include the following information: (1) description of the copyrighted work that is the subject of claimed infringement; (2) description of the alleged infringing content and information sufficient to permit us to locate the content; (3) contact information for you, including your address, telephone number and email address; (4) a statement by you that you have a good faith belief that the content in the manner complained of is not authorized by the copyright owner, or its agent, or by the operation of any law; (5) a statement by you, signed under penalty of perjury, that the information in the notification is accurate and that you have the authority to enforce the copyrights that are claimed to be infringed; and (6) a physical or electronic signature of the copyright owner or a person authorized to act on the copyright owner’s behalf. Failure to include all of the above information may result in the delay of the processing of your complaint. Listing Information presented by local MLS brokerage: NewHomesMate LLC, DBA Jome (888) 486-2818
Read moreLast checked Dec 6, 9:10 am
- Home
- New homes
- Florida
- Charlotte County
- Englewood
- Island Lakes at Coco Bay: Executive Homes
- 8074 Saint Kitts Cir, Englewood, FL 34224



























