


















































- 5 bd
- 3 ba
- 2,145 sqft
220 Dama Del Mar Wy, Panama City Beach, FL 32407
- Single-Family
- $238.18/sqft
- 123 days on Jome
New Homes for Sale Near 220 Dama Del Mar Wy, Panama City Beach, FL 32407
About this Home
About this home
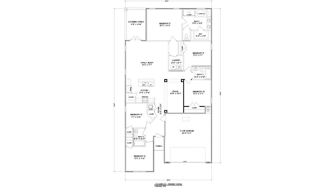
Welcome to 220 Dama Del Mar Way, a new home at Caballeros Estates at Hombre, located in Panama City Beach, Florida.This home is under construction and combines a comfortable living space with modern finishes. It is the perfect home for a primary residence or a luxurious second home. It is thoughtfully designed floor plan with five bedrooms and three full bathrooms, and a spacious two-car garage.
As you enter this home you will find a bright, open-concept living space, where natural light floods through windows, highlighting the home's contemporary charm. Entertain with ease in the expansive living area and appointed dining room, where the large kitchen island serves as the centerpiece, perfect for hosting gatherings or enjoying casual family meals. The kitchen is designed with functionality and modern conveniences with quartz countertops, sleek soft-close Shaker-style cabinets, stainless-steel appliances that include a stove, microwave and dishwasher as well as a large center island and a spacious corner pantry.
Retreat to the privacy of the primary bedroom that features an ensuite bathroom with a soak tub, a separate standing shower, a dual sink vanity with quartz countertops and lower cabinetry for storage. This home has four additional bedrooms, and two shared bathrooms located in separate areas giving the feel of a split bedroom design. EVP flooring throughout the home provides for a seamless transition between rooms.
Embrace the opportunity to create lasting memories in this idyllic community.
May also be listed on the D.R. Horton website
Information last verified by Jome: Wednesday at 1:03 AM (December 31, 2025)
Home details
- Property status:
- Sold
- Size:
- 2,145 sqft
- Stories:
- 1
- Beds:
- 5
- Baths:
- 3
- Garage spaces:
- 2
Construction details
- Builder Name:
- D.R. Horton
Home features & finishes
- Garage/Parking:
- GarageAttached Garage
- Interior Features:
- Walk-In ClosetFoyerPantry
- Kitchen:
- Quartz countertopKitchen Island
- Laundry facilities:
- Utility/Laundry Room
- Property amenities:
- Porch
- Rooms:
- Primary Bedroom On MainKitchenDining RoomFamily RoomOpen Concept FloorplanPrimary Bedroom Downstairs

Community details
Caballeros Estates At Hombre
by D.R. Horton, Panama City Beach, FL
- 14 homes
- 4 plans
- 1,689 - 2,145 sqft
View Caballeros Estates At Hombre details
More homes in Caballeros Estates At Hombre
- Home at address 225 Dama Del Mar Wy, Panama City Beach, FL 32407

$469,014
Move-in ready- 5 bd
- 3 ba
- 2,145 sqft
225 Dama Del Mar Wy, Panama City Beach, FL 32407
- Home at address 231 Dama Del Mar Wy, Panama City Beach, FL 32407

$486,356
Move-in ready- 5 bd
- 3 ba
- 2,145 sqft
231 Dama Del Mar Wy, Panama City Beach, FL 32407
- Home at address 221 Dama Del Mar Wy, Panama City Beach, FL 32407

$489,176
Move-in ready- 5 bd
- 3 ba
- 2,145 sqft
221 Dama Del Mar Wy, Panama City Beach, FL 32407
- Home at address 235 Dama Del Mar Wy, Panama City Beach, FL 32407

$515,400
Move-in ready- 5 bd
- 3 ba
- 2,145 sqft
235 Dama Del Mar Wy, Panama City Beach, FL 32407
Floor plans in Caballeros Estates At Hombre
About the builder - D.R. Horton

- 1,171communities on Jome
- 10,336homes on Jome
Neighborhood
Home address
- City:
- Panama City Beach
- County:
- Bay
- Zip Code:
- 32407
Schools in Bay County School District
GreatSchools’ Summary Rating calculation is based on 4 of the school’s themed ratings, including test scores, student/academic progress, college readiness, and equity. This information should only be used as a reference. Jome is not affiliated with GreatSchools and does not endorse or guarantee this information. Please reach out to schools directly to verify all information and enrollment eligibility. Data provided by GreatSchools.org © 2025
Places of interest
Getting around
2 nearby routes: 2 bus, 0 rail, 0 otherAir quality
Noise level
A Soundscore™ rating is a number between 50 (very loud) and 100 (very quiet) that tells you how loud a location is due to environmental noise.
Financials
Nearby communities in Panama City Beach
Homes in Panama City Beach by D.R. Horton
Recently added communities in this area
Other Builders in Panama City Beach, FL
Nearby sold homes
New homes in nearby cities
More New Homes in Panama City Beach, FL
- Jome
- New homes search
- Florida
- Bay County
- Panama City Beach
- Caballeros Estates At Hombre
- 220 Dama Del Mar Wy, Panama City Beach, FL 32407

































































