













































- 4 bd
- 2 ba
- 1,799 sqft
224 Dama Del Mar Wy, Panama City Beach, FL 32407
- Single-Family
- $259.26/sqft
- 123 days on Jome
New Homes for Sale Near 224 Dama Del Mar Wy, Panama City Beach, FL 32407
About this Home
About this home
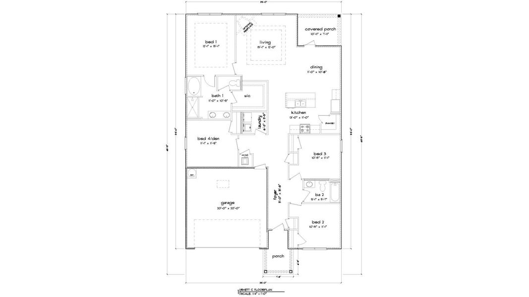
Welcome to 224 Dama Del Mar Way, a new home at Caballeros Estates at Hombre in Panama City Beach, Florida. This single-family floor plan is ready for move in and has four bedrooms, two full bathrooms and a single car garage.
As you enter this home you will find a bright entry with EVP flooring throughout the home. The foyer leads to the spacious living area that is designed for comfortable living. In the open concept living area you will find the kitchen with a center island that has space for seating. The kitchen has quartz countertops and white cabinetry for all your storage needs. A corner pantry allows space for your dry goods and small appliance storage. An appliance package is included with a stove, microwave and dishwasher.
The primary bedroom is located off the living area it features EVP flooring, trey ceilings with a ceiling fan and an ensuite bathroom. The primary bath has a dual sink vanity with quartz countertops and lower storage drawers and cabinetry. There is a separate shower and soak tub as well as a large closet for your wardrobe needs.
Each guest bedroom has EVP flooring and ample closet space. A shared bathroom has a vanity with quartz countertop and lower cabinetry for storage. Outside this home you will find a landscaped entry, 30-year dimensional shingles, and Hardie® exterior.
May also be listed on the D.R. Horton website
Information last verified by Jome: Thursday at 3:17 AM (February 5, 2026)
Home details
- Property status:
- Sold
- Size:
- 1,799 sqft
- Stories:
- 1
- Beds:
- 4
- Baths:
- 2
- Garage spaces:
- 2
Construction details
- Builder Name:
- D.R. Horton
Home features & finishes
- Garage/Parking:
- GarageAttached Garage
- Interior Features:
- Walk-In ClosetShower and Tub in Primary BathFoyerPantry
- Kitchen:
- Quartz countertopKitchen Island
- Laundry facilities:
- Utility/Laundry Room
- Property amenities:
- Porch
- Rooms:
- Primary Bedroom On MainKitchenDining RoomLiving RoomOpen Concept FloorplanPrimary Bedroom Downstairs

Community details
Caballeros Estates At Hombre
by D.R. Horton, Panama City Beach, FL
- 14 homes
- 4 plans
- 1,689 - 2,145 sqft
View Caballeros Estates At Hombre details
More homes in Caballeros Estates At Hombre
- Home at address 212 Dama Del Mar Wy, Panama City Beach, FL 32407

$409,278
Move-in ready- 4 bd
- 2 ba
- 1,799 sqft
212 Dama Del Mar Wy, Panama City Beach, FL 32407
- Home at address 223 Dama Del Mar Wy, Panama City Beach, FL 32407

$434,434
Move-in ready- 4 bd
- 2 ba
- 1,799 sqft
223 Dama Del Mar Wy, Panama City Beach, FL 32407
- Home at address 236 Dama Del Mar Wy, Panama City Beach, FL 32407

$448,756
Move-in ready- 4 bd
- 2 ba
- 1,799 sqft
236 Dama Del Mar Wy, Panama City Beach, FL 32407
- Home at address 233 Dama Del Mar Wy, Panama City Beach, FL 32407

$450,636
Move-in ready- 4 bd
- 2 ba
- 1,799 sqft
233 Dama Del Mar Wy, Panama City Beach, FL 32407
- Home at address 227 Dama Del Mar Wy, Panama City Beach, FL 32407

$450,636
Move-in ready- 4 bd
- 2 ba
- 1,799 sqft
227 Dama Del Mar Wy, Panama City Beach, FL 32407
- Home at address 229 Dama Del Mar Wy, Panama City Beach, FL 32407

$467,556
Move-in ready- 4 bd
- 2 ba
- 2,044 sqft
229 Dama Del Mar Wy, Panama City Beach, FL 32407
Floor plans in Caballeros Estates At Hombre
About the builder - D.R. Horton

- 1,171communities on Jome
- 10,336homes on Jome
Neighborhood
Home address
- City:
- Panama City Beach
- County:
- Bay
- Zip Code:
- 32407
Schools in Bay County School District
GreatSchools’ Summary Rating calculation is based on 4 of the school’s themed ratings, including test scores, student/academic progress, college readiness, and equity. This information should only be used as a reference. Jome is not affiliated with GreatSchools and does not endorse or guarantee this information. Please reach out to schools directly to verify all information and enrollment eligibility. Data provided by GreatSchools.org © 2025
Places of interest
Getting around
2 nearby routes: 2 bus, 0 rail, 0 otherAir quality
Noise level
A Soundscore™ rating is a number between 50 (very loud) and 100 (very quiet) that tells you how loud a location is due to environmental noise.
Financials
Nearby communities in Panama City Beach
Homes in Panama City Beach by D.R. Horton
Recently added communities in this area
Other Builders in Panama City Beach, FL
Nearby sold homes
New homes in nearby cities
More New Homes in Panama City Beach, FL
- Jome
- New homes search
- Florida
- Bay County
- Panama City Beach
- Caballeros Estates At Hombre
- 224 Dama Del Mar Wy, Panama City Beach, FL 32407



































































