









Book your tour. Save an average of $18,473. We'll handle the rest.
We collect exclusive builder offers, book your tours, and support you from start to housewarming.
- Confirmed tours
- Get matched & compare top deals
- Expert help, no pressure
- No added fees
Estimated value based on Jome data, T&C apply
























- 3 bd
- 2.5 ba
- 1,459 sqft
252 Phillips Bluff Ave, Panama City Beach, FL 32407
Why tour with Jome?
- No pressure toursTour at your own pace with no sales pressure
- Expert guidanceGet insights from our home buying experts
- Exclusive accessSee homes and deals not available elsewhere
Jome is featured in
- Single-Family
- Quick move-in
- $199.66/sqft
- 6 days on Jome
Home description
About this home
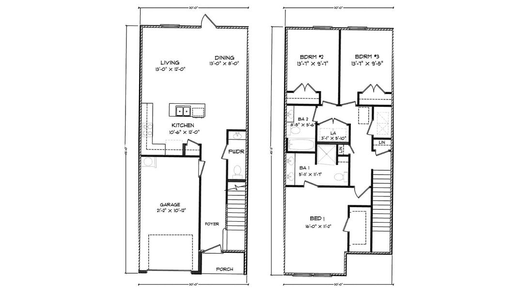
Welcome to 252 Phillips Bluff Avenue, a new home at Colonial East Townhomes in Panama City Beach. This townhome is an interior unit of a six-unit building that is under construction. This floor plan has 3 bedrooms, 2.5 bathrooms with a bright foyer leading to the expansive open-concept kitchen, living, and dining area, designed for entertaining and everyday living. The kitchen is open and spacious with a center island and overlooks the main living area.
The first floor is heart of this home, while the privacy of the second level holds all bedrooms, ensuring a quiet retreat. The primary bedroom has a generous size closet and a private bathroom with dual sink vanity, and ample linen storage, and a large shower. Additional bedrooms share a hall bath, creating a comfortable space. This townhome has EVP flooring throughout the main level and carpet on the stairs and upstairs hallways. The kitchen and bathrooms have white cabinetry that complement the quartz countertops, and an appliance package is included with a stove, microwave and dishwasher.
A Smart Home Technology Package comes standard, featuring a Qolsys IQ touch panel for thermostat and lighting control, ensuring security and convenience with keyless entry KwikSet deadbolt. Exterior features of Colonial East townhomes are equally impressive, with Hardie® siding, composite shingle roofing with a 30-year warranty, and thoughtful lighting at the garage, front entry, and back patio. A landscaped front entry adds curb appeal and welcomes you to your very own slice of Florida paradise. Call us today
May also be listed on the D.R. Horton website
Information last verified by Jome: Today at 4:41 AM (April 16, 2026)
Book your tour. Save an average of $18,473. We'll handle the rest.
We collect exclusive builder offers, book your tours, and support you from start to housewarming.
- Confirmed tours
- Get matched & compare top deals
- Expert help, no pressure
- No added fees
Estimated value based on Jome data, T&C apply
Home details
- Property status:
- Move-in ready
- Size:
- 1,459 sqft
- Stories:
- 2
- Beds:
- 3
- Baths:
- 2.5
- Garage spaces:
- 1

Floor plan details
Palm Interior
- 3 bd
- 2.5 ba
- 1,459 sqft
View Palm Interior details
Construction details
- Builder Name:
- D.R. Horton
Home features & finishes
- Flooring:
- Carpet Flooring
- Garage/Parking:
- GarageAttached Garage
- Interior Features:
- Walk-In ClosetFoyerPantry
- Kitchen:
- Stainless Steel AppliancesQuartz countertopKitchen Island
- Laundry facilities:
- Utility/Laundry Room
- Property amenities:
- Porch
- Rooms:
- KitchenPowder RoomDining RoomLiving RoomOpen Concept FloorplanPrimary Bedroom Upstairs

Get a consultation with our New Homes Expert
- See how your home builds wealth
- Plan your home-buying roadmap
- Discover hidden gems

Community details
Colonial East Townhomes
by D.R. Horton, Panama City Beach, FL
- 7 homes
- 2 plans
- 1,459 - 1,470 sqft
View Colonial East Townhomes details
More homes in Colonial East Townhomes
- Home at address 270 Phillips Bluff Ave, Panama City Beach, FL 32407

Palm Interior
$289,900
- 3 bd
- 2.5 ba
- 1,459 sqft
270 Phillips Bluff Ave, Panama City Beach, FL 32407
- Home at address 248 Phillips Bluff Ave, Panama City Beach, FL 32407

Palm Exterior
$305,406
- 3 bd
- 2.5 ba
- 1,470 sqft
248 Phillips Bluff Ave, Panama City Beach, FL 32407
- Home at address 271 Phillips Bluff Ave, Panama City Beach, FL 32407

Palm Interior
$305,603
- 3 bd
- 2.5 ba
- 1,459 sqft
271 Phillips Bluff Ave, Panama City Beach, FL 32407
- Home at address 266 Phillips Bluff Ave, Panama City Beach, FL 32407

Palm Interior
$313,085
- 3 bd
- 2.5 ba
- 1,459 sqft
266 Phillips Bluff Ave, Panama City Beach, FL 32407
- Home at address 268 Phillips Bluff Ave, Panama City Beach, FL 32407

Palm Interior
$313,085
- 3 bd
- 2.5 ba
- 1,459 sqft
268 Phillips Bluff Ave, Panama City Beach, FL 32407
- Home at address 265 Phillips Bluff Ave, Panama City Beach, FL 32407

Palm Exterior
$325,153
- 3 bd
- 2.5 ba
- 1,470 sqft
265 Phillips Bluff Ave, Panama City Beach, FL 32407
Floor plans in Colonial East Townhomes
About the builder - D.R. Horton

- 1,154communities on Jome
- 10,579homes on Jome
Neighborhood
Home address
- City:
- Panama City Beach
- County:
- Bay
- Zip Code:
- 32407
Schools in Bay County School District
GreatSchools’ Summary Rating calculation is based on 4 of the school’s themed ratings, including test scores, student/academic progress, college readiness, and equity. This information should only be used as a reference. Jome is not affiliated with GreatSchools and does not endorse or guarantee this information. Please reach out to schools directly to verify all information and enrollment eligibility. Data provided by GreatSchools.org © 2025
Places of interest
Getting around
Air quality
Noise level
A Soundscore™ rating is a number between 50 (very loud) and 100 (very quiet) that tells you how loud a location is due to environmental noise.

Considering this home?
Our expert will guide your tour, in-person or virtual
Need more information?
Text or call (888) 545-5198
Financials
Estimated monthly payment
Let us help you find your dream home
How many bedrooms are you looking for?
Similar homes nearby
Recently added communities in this area
Nearby communities in Panama City Beach
New homes in nearby cities
More New Homes in Panama City Beach, FL
- Jome
- New homes search
- Florida
- Bay County
- Panama City Beach
- Colonial East Townhomes
- 252 Phillips Bluff Ave, Panama City Beach, FL 32407


























