














Book your tour. Save an average of $18,473. We'll handle the rest.
- Confirmed tours
- Get matched & compare top deals
- Expert help, no pressure
- No added fees
Estimated value based on Jome data, T&C apply































- 3 bd
- 2 ba
- 1,550 sqft
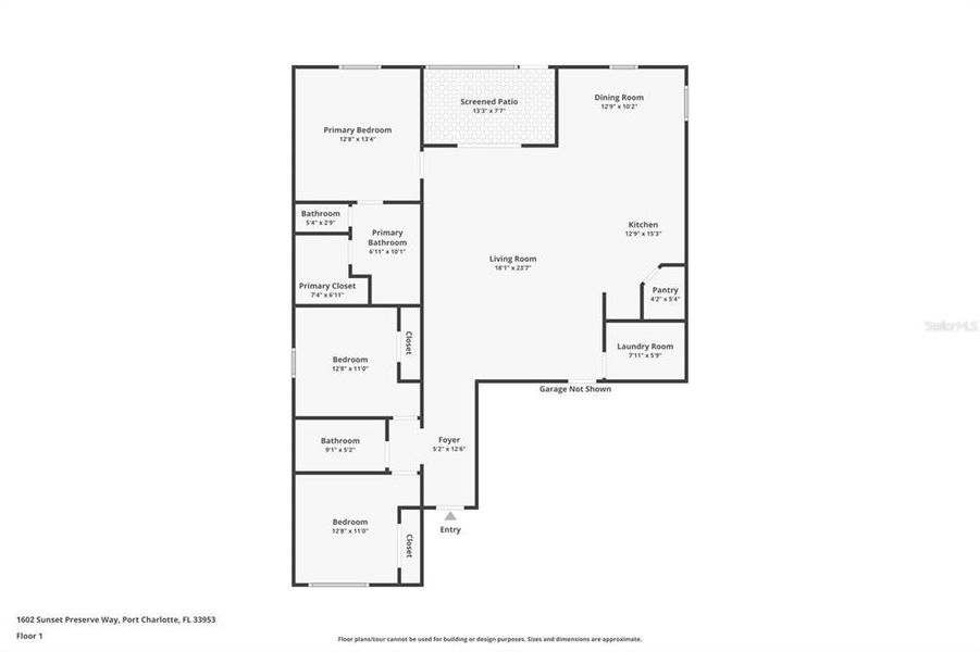
1602 Sunset Preserve Wy, Port Charlotte, FL 33953
Why tour with Jome?
- No pressure toursTour at your own pace with no sales pressure
- Expert guidanceGet insights from our home buying experts
- Exclusive accessSee homes and deals not available elsewhere
Jome is featured in
- Single-Family
- Quick move-in
- $225.15/sqft
- $104/monthly HOA
Home description
Welcome to effortless coastal living in the heart of Southwest Florida. This beautifully upgraded Palm Model by Christopher Alan Homes is move-in ready and filled with charm, offering the perfect blend of comfort, style, and peace of mind.
Step inside through the glass front door and feel right at home in the bright, open living space filled with natural light. The layout flows seamlessly from the inviting living room to the dining area and into a stunning kitchen designed for both beauty and function. The kitchen features a large island with rattan pendant lighting, a gorgeous tile backsplash, stainless steel appliances, and a show-stopping WALK-IN PANTRY complete with cabinetry and butcher block countertops — a dream for storage and organization.
The private primary suite offers a peaceful retreat, featuring a spacious CUSTOM CLOSET SYSTEM with built-in drawers and shelving, along with a luxurious ensuite bath with dual quartz vanities and a walk-in tile shower with glass enclosure. The guest bedrooms are equally inviting and separated by a stylish full bathroom with quartz finishes.
Step outside to your screened lanai and enjoy views of the fenced backyard with NEW SOD AND LANDSCAPING, providing the perfect space to relax or entertain. The home also includes a finished laundry room, epoxy-coated garage floors, and is built with IMPACT WINDOWS, DOORS, AND GARAGE DOOR for superior safety and energy efficiency. Best of all, it’s located in an X FLOOD ZONE, offering added security and lower insurance costs.
Set within the desirable West Port community, you’ll enjoy more than 450 acres of amenities including a brand-new aquatic center, soccer fields, an 18-hole disc golf course, playgrounds, and miles of scenic walking and biking trails — all just minutes from shopping, dining, healthcare, Charlotte Sports Park, and the Gulf beaches.
PARADISE EXCLUSIVE INC, MLS D6144123
Information last verified by Jome: Yesterday at 9:56 AM (January 19, 2026)
Home highlights
Book your tour. Save an average of $18,473. We'll handle the rest.
We collect exclusive builder offers, book your tours, and support you from start to housewarming.
- Confirmed tours
- Get matched & compare top deals
- Expert help, no pressure
- No added fees
Estimated value based on Jome data, T&C apply
Home details
- Property status:
- Move-in ready
- Lot size (acres):
- 0.15
- Size:
- 1,550 sqft
- Stories:
- 1
- Beds:
- 3
- Baths:
- 2
- Garage spaces:
- 2
- Facing direction:
- East
Construction details
- Roof:
- Shingle Roofing
Home features & finishes
- Appliances:
- Exhaust Fan
- Construction Materials:
- StuccoBlock
- Cooling:
- Ceiling Fan(s)Central Air
- Flooring:
- Carpet FlooringTile Flooring
- Foundation Details:
- SlabBlock
- Garage/Parking:
- GarageAttached Garage
- Home amenities:
- Internet
- Interior Features:
- Ceiling-HighWindow TreatmentsWalk-In ClosetSliding Doors
- Kitchen:
- DishwasherMicrowave OvenRefrigeratorDisposalKitchen Range
- Laundry facilities:
- DryerWasherUtility/Laundry Room
- Pets:
- Pets Allowed
- Property amenities:
- SidewalkLandscaping
- Rooms:
- Primary Bedroom On MainDining RoomFamily RoomLiving RoomOpen Concept FloorplanPrimary Bedroom Downstairs

Get a consultation with our New Homes Expert
- See how your home builds wealth
- Plan your home-buying roadmap
- Discover hidden gems
Utility information
- Heating:
- Thermostat, Central Heating
- Utilities:
- Electricity Available, Cable Available, Water Available
Community amenities
- Playground
- Sidewalks Available
Neighborhood
Home address
- City:
- Port Charlotte
- County:
- Charlotte
- Zip Code:
- 33953
Schools in Charlotte County School District
GreatSchools’ Summary Rating calculation is based on 4 of the school’s themed ratings, including test scores, student/academic progress, college readiness, and equity. This information should only be used as a reference. Jome is not affiliated with GreatSchools and does not endorse or guarantee this information. Please reach out to schools directly to verify all information and enrollment eligibility. Data provided by GreatSchools.org © 2025
Places of interest
Getting around
Air quality
Natural hazards risk
Provided by FEMA

Considering this home?
Our expert will guide your tour, in-person or virtual
Need more information?
Text or call (888) 486-2818
Financials
Estimated monthly payment
Let us help you find your dream home
How many bedrooms are you looking for?
Similar homes nearby
Recently added communities in this area
Nearby communities in Port Charlotte
New homes in nearby cities
More New Homes in Port Charlotte, FL
PARADISE EXCLUSIVE INC, MLS D6144123
Based on information submitted to the MLS GRID as of 10/21/2024 2:31 PM CDT. All data is obtained from various sources and may not have been verified by broker or MLS GRID. Supplied Open House Information is subject to change without notice. All information should be independently reviewed and verified for accuracy. Properties may or may not be listed by the office/agent presenting the information. Some IDX listings have been excluded from this website. Properties displayed may be listed or sold by various participants in the MLS. IDX information is provided exclusively for personal, non-commercial use, and may not be used for any purpose other than to identify prospective properties consumers may be interested in purchasing. Information is deemed reliable but not guaranteed. Use of the MLS GRID Data may be subject to an end user license agreement prescribed by the Member Participant’s applicable MLS if any and as amended from time to time. The Digital Millennium Copyright Act of 1998, 17 U.S.C. § 512 (the “DMCA”) provides recourse for copyright owners who believe that material appearing on the Internet infringes their rights under U.S. copyright law. If you believe in good faith that any content or material made available in connection with our website or services infringes your copyright, you (or your agent) may send us a notice requesting that the content or material be removed, or access to it blocked. Notices must be sent in writing by email to DMCAnotice@MLSGrid.com. The DMCA requires that your notice of alleged copyright infringement include the following information: (1) description of the copyrighted work that is the subject of claimed infringement; (2) description of the alleged infringing content and information sufficient to permit us to locate the content; (3) contact information for you, including your address, telephone number and email address; (4) a statement by you that you have a good faith belief that the content in the manner complained of is not authorized by the copyright owner, or its agent, or by the operation of any law; (5) a statement by you, signed under penalty of perjury, that the information in the notification is accurate and that you have the authority to enforce the copyrights that are claimed to be infringed; and (6) a physical or electronic signature of the copyright owner or a person authorized to act on the copyright owner’s behalf. Failure to include all of the above information may result in the delay of the processing of your complaint. Listing Information presented by local MLS brokerage: NewHomesMate LLC, DBA Jome (888) 486-2818
Read moreLast checked Jan 20, 3:10 am
- Jome
- New homes search
- Florida
- Charlotte County
- Port Charlotte
- 1602 Sunset Preserve Wy, Port Charlotte, FL 33953


























