



Book your tour. Save an average of $18,473. We'll handle the rest.
- Confirmed tours
- Get matched & compare top deals
- Expert help, no pressure
- No added fees
Estimated value based on Jome data, T&C apply
- 4 bd
- 2.5 ba
- 2,802 sqft
3651 Wild Persimmon Wy, Winter Garden, FL 34787
Why tour with Jome?
- No pressure toursTour at your own pace with no sales pressure
- Expert guidanceGet insights from our home buying experts
- Exclusive accessSee homes and deals not available elsewhere
Jome is featured in
- Single-Family
- Ready by September 2026
- $238.04/sqft
- $150/monthly HOA
Home description
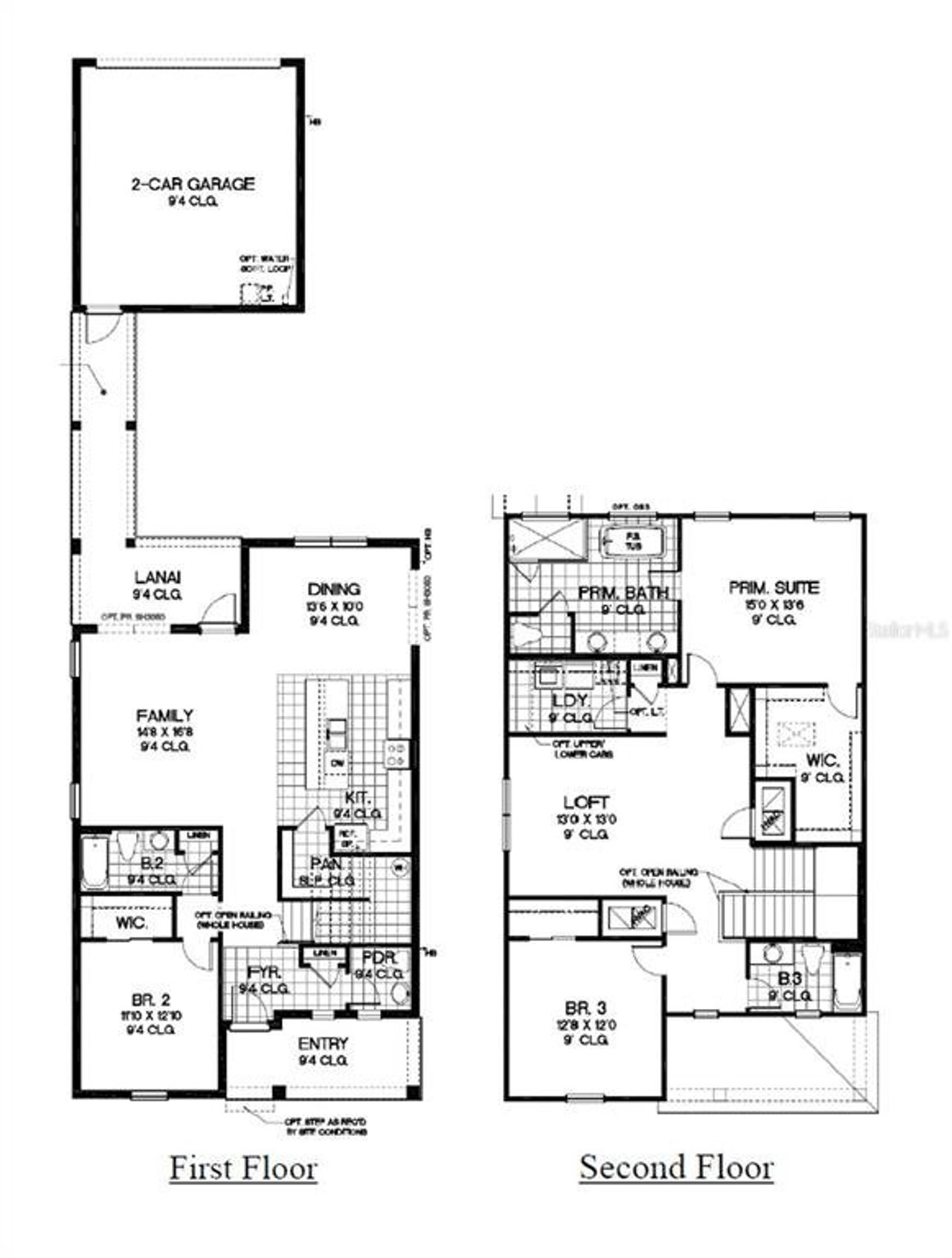
Opportunity in Avalon Woods! Discover the newest community by Dream Finders Homes in highly sought-after Hamlin, Winter Garden. Welcome to the Davis, a thoughtfully designed 4-bedroom, 2.5-bathroom bungalow with 2,807 sq. ft. of living space. This brand-new home offers charm, functionality, and modern comfort all in one. The inviting front porch sets the tone, while inside you’ll find abundant natural light thanks to added windows throughout. A downstairs primary bedroom and full bath on the first floor providing privacy from the secondary bedrooms upstairs. The home’s layout flows seamlessly, featuring a spacious upstairs loft, a covered breezeway and private courtyard, perfect for outdoor gatherings or a quiet retreat. Nestled in the brand-new Avalon Woods community in Hamlin/Winter Garden, you’ll enjoy proximity to top-rated schools, shopping, dining, Hwy 429, and just minutes from Disney.
OLYMPUS EXECUTIVE REALTY INC, MLS G5102275
May also be listed on the Dream Finders Homes website
Information last verified by Jome: Yesterday at 10:06 AM (December 5, 2025)
Home highlights
World-famous Orlando resort with four theme parks, immersive entertainment, and family living nearby.
Book your tour. Save an average of $18,473. We'll handle the rest.
We collect exclusive builder offers, book your tours, and support you from start to housewarming.
- Confirmed tours
- Get matched & compare top deals
- Expert help, no pressure
- No added fees
Estimated value based on Jome data, T&C apply
Home details
- Property status:
- Under construction
- Lot size (acres):
- 0.11
- Size:
- 2,802 sqft
- Stories:
- 2
- Beds:
- 4
- Baths:
- 2
- Half baths:
- 1
- Garage spaces:
- 2
- Facing direction:
- East
Construction details
- Builder Name:
- Dream Finders Homes
- Completion Date:
- September, 2026
- Year Built:
- 2026
- Roof:
- Shingle Roofing
Home features & finishes
- Appliances:
- Exhaust Fan
- Construction Materials:
- StuccoWood FrameBlock
- Cooling:
- Central Air
- Flooring:
- Carpet FlooringTile Flooring
- Foundation Details:
- Slab
- Garage/Parking:
- GarageAttached Garage
- Interior Features:
- Walk-In ClosetSliding Doors
- Kitchen:
- DishwasherMicrowave OvenDisposal
- Laundry facilities:
- Utility/Laundry Room
- Pets:
- Pets Allowed
- Rooms:
- Open Concept FloorplanPrimary Bedroom Upstairs
- Security system:
- Smoke Detector
Utility information
- Heating:
- Thermostat, Central Heating
- Utilities:
- Electricity Available, Underground Utilities, Cable Available, Sewer Available, Water Available

Community details
Avalon Woods
by Dream Finders Homes, Winter Garden, FL
- 13 homes
- 15 plans
- 1,772 - 4,024 sqft
View Avalon Woods details
Community amenities
- Playground
- Sidewalks Available
More homes in Avalon Woods
Floor plans in Avalon Woods
About the builder - Dream Finders Homes
Neighborhood
Home address
- City:
- Winter Garden
- County:
- Orange
- Zip Code:
- 34787
Schools in Orange County School District
- Grades PK-KGPrivatethe goddard school winter garden2.3 mi2007 avalon rdna
GreatSchools’ Summary Rating calculation is based on 4 of the school’s themed ratings, including test scores, student/academic progress, college readiness, and equity. This information should only be used as a reference. Jome is not affiliated with GreatSchools and does not endorse or guarantee this information. Please reach out to schools directly to verify all information and enrollment eligibility. Data provided by GreatSchools.org © 2025
Places of interest
Getting around
Natural hazards risk
Climate hazards can impact homes and communities, with risks varying by location. These scores reflect the potential impact of natural disasters and climate-related risks on Orange County
Provided by FEMA

Considering this home?
Our expert will guide your tour, in-person or virtual
Need more information?
Text or call (888) 486-2818
Financials
Estimated monthly payment
Similar homes nearby
Recently added communities in this area
Nearby communities in Winter Garden
New homes in nearby cities
More New Homes in Winter Garden, FL
OLYMPUS EXECUTIVE REALTY INC, MLS G5102275
Based on information submitted to the MLS GRID as of 10/21/2024 2:31 PM CDT. All data is obtained from various sources and may not have been verified by broker or MLS GRID. Supplied Open House Information is subject to change without notice. All information should be independently reviewed and verified for accuracy. Properties may or may not be listed by the office/agent presenting the information. Some IDX listings have been excluded from this website. Properties displayed may be listed or sold by various participants in the MLS. IDX information is provided exclusively for personal, non-commercial use, and may not be used for any purpose other than to identify prospective properties consumers may be interested in purchasing. Information is deemed reliable but not guaranteed. Use of the MLS GRID Data may be subject to an end user license agreement prescribed by the Member Participant’s applicable MLS if any and as amended from time to time. The Digital Millennium Copyright Act of 1998, 17 U.S.C. § 512 (the “DMCA”) provides recourse for copyright owners who believe that material appearing on the Internet infringes their rights under U.S. copyright law. If you believe in good faith that any content or material made available in connection with our website or services infringes your copyright, you (or your agent) may send us a notice requesting that the content or material be removed, or access to it blocked. Notices must be sent in writing by email to DMCAnotice@MLSGrid.com. The DMCA requires that your notice of alleged copyright infringement include the following information: (1) description of the copyrighted work that is the subject of claimed infringement; (2) description of the alleged infringing content and information sufficient to permit us to locate the content; (3) contact information for you, including your address, telephone number and email address; (4) a statement by you that you have a good faith belief that the content in the manner complained of is not authorized by the copyright owner, or its agent, or by the operation of any law; (5) a statement by you, signed under penalty of perjury, that the information in the notification is accurate and that you have the authority to enforce the copyrights that are claimed to be infringed; and (6) a physical or electronic signature of the copyright owner or a person authorized to act on the copyright owner’s behalf. Failure to include all of the above information may result in the delay of the processing of your complaint. Listing Information presented by local MLS brokerage: NewHomesMate LLC, DBA Jome (888) 486-2818
Read moreLast checked Dec 5, 9:10 pm
- Home
- New homes
- Florida
- Greater Orlando Area
- Orange County
- Winter Garden
- Avalon Woods
- 3651 Wild Persimmon Wy, Winter Garden, FL 34787











































