














Book your tour. Save an average of $18,473. We'll handle the rest.
We collect exclusive builder offers, book your tours, and support you from start to housewarming.
- Confirmed tours
- Get matched & compare top deals
- Expert help, no pressure
- No added fees
Estimated value based on Jome data, T&C apply








































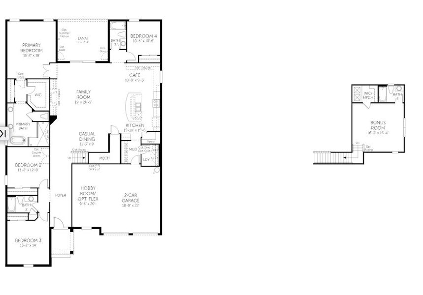
- 4 bd
- 4 ba
- 3,108 sqft
Arlington With Bonus - 60' Homesites plan in Avalon Woods by Dream Finders Homes
Visit the community to experience this floor plan
Why tour with Jome?
- No pressure toursTour at your own pace with no sales pressure
- Expert guidanceGet insights from our home buying experts
- Exclusive accessSee homes and deals not available elsewhere
Jome is featured in
Plan description
May also be listed on the Dream Finders Homes website
Information last verified by Jome: Today at 5:18 AM (March 1, 2026)
Plan details
- Name:
- Arlington With Bonus - 60' Homesites
- Property status:
- Floor plan
- Collection:
- Avalon Woods 60'
- Lot width (feet):
- 60
- Size:
- 3,108 sqft
- Stories:
- 1
- Beds:
- 4
- Baths:
- 4
- Garage spaces:
- 2
Plan features & finishes
- Garage/Parking:
- GarageAttached Garage
- Interior Features:
- Walk-In ClosetFoyerPantry
- Laundry facilities:
- Utility/Laundry Room
- Property amenities:
- Lanai
- Rooms:
- Bonus RoomPrimary Bedroom On MainKitchenMudroomDining RoomFamily RoomBreakfast AreaOpen Concept FloorplanPrimary Bedroom Downstairs
- Upgrade Options:
- Flex RoomGourmet KitchenSliding Glass DoorsAlternate Primary BathAlternate ShowerExtra BathroomExtra BedroomExtended Lanai

Get a consultation with our New Homes Expert
- See how your home builds wealth
- Plan your home-buying roadmap
- Discover hidden gems
See the full plan layout
Download the floor plan PDF with room dimensions and home design details.

Instant download, no cost

Community details
Avalon Woods
by Dream Finders Homes, Winter Garden, FL
- 16 homes
- 16 plans
- 1,772 - 4,024 sqft
View Avalon Woods details
Want to know more about what's around here?
The Arlington With Bonus - 60' Homesites floor plan is part of Avalon Woods, a new home community by Dream Finders Homes, located in Winter Garden, FL. Visit the Avalon Woods community page for full neighborhood insights, including nearby schools, shopping, walk & bike-scores, commuting, air quality & natural hazards.

Homes built from this plan
Available homes in Avalon Woods
- Home at address 5937 Flower Cherry Bnd, Winter Garden, FL 34787

Anna Maria - 50' Homesites
Avalon Woods 50'
$674,475
- 4 bd
- 2.5 ba
- 2,235 sqft
5937 Flower Cherry Bnd, Winter Garden, FL 34787
- Home at address 5948 Flowering Cherry Bnd, Winter Garden, FL 34787

Carter
Avalon Woods 40'
$685,434
- 4 bd
- 3.5 ba
- 2,515 sqft
5948 Flowering Cherry Bnd, Winter Garden, FL 34787
- Home at address 5943 Flower Cherry Bnd, Winter Garden, FL 34787

Anna Maria With Bonus - 50' Homesites
Avalon Woods 50'
$746,650
- 4 bd
- 3.5 ba
- 2,688 sqft
5943 Flower Cherry Bnd, Winter Garden, FL 34787
- Home at address 15075 Tea Tree Dr, Winter Garden, FL 34787

Biscayne - 50' Homesites
Avalon Woods 50'
$773,260
- 4 bd
- 3 ba
- 3,038 sqft
15075 Tea Tree Dr, Winter Garden, FL 34787
- Home at address 15893 Flowering Cherry Bnd, Winter Garden, FL 34787

Tidewater - 60' Homesites
Avalon Woods 60'
$789,515
- 5 bd
- 3 ba
- 2,879 sqft
15893 Flowering Cherry Bnd, Winter Garden, FL 34787
- Home at address 15111 Tea Tree Dr, Winter Garden, FL 34787

Anna Maria With Bonus
Avalon Woods 50'
$837,397
- 4 bd
- 3.5 ba
- 2,688 sqft
15111 Tea Tree Dr, Winter Garden, FL 34787
More floor plans in Avalon Woods
- View details for Carter - 40' Homesites

Carter - 40' Homesites
Avalon Woods 40'
$605,990+- 4 bd
- 3.5 ba
- 2,515 sqft
- View details for Davis - 40' Homesites

Davis - 40' Homesites
Avalon Woods 40'
$631,990+- 4 bd
- 2.5 ba
- 2,802 sqft

Considering this plan?
Our expert will guide your tour, in-person or virtual
Need more information?
Text or call (888) 488-9243
Financials
Estimated monthly payment
Let us help you find your dream home
How many bedrooms are you looking for?



































