



- 4 bd
- 3 ba
- 2,020 sqft
502 Saunders St, Sebastian, FL 32958
- Single-Family
- $217.82/sqft
- $250/quarterly HOA
- 216 days on Jome
New Homes for Sale Near 502 Saunders St, Sebastian, FL 32958
About this Home
About this home
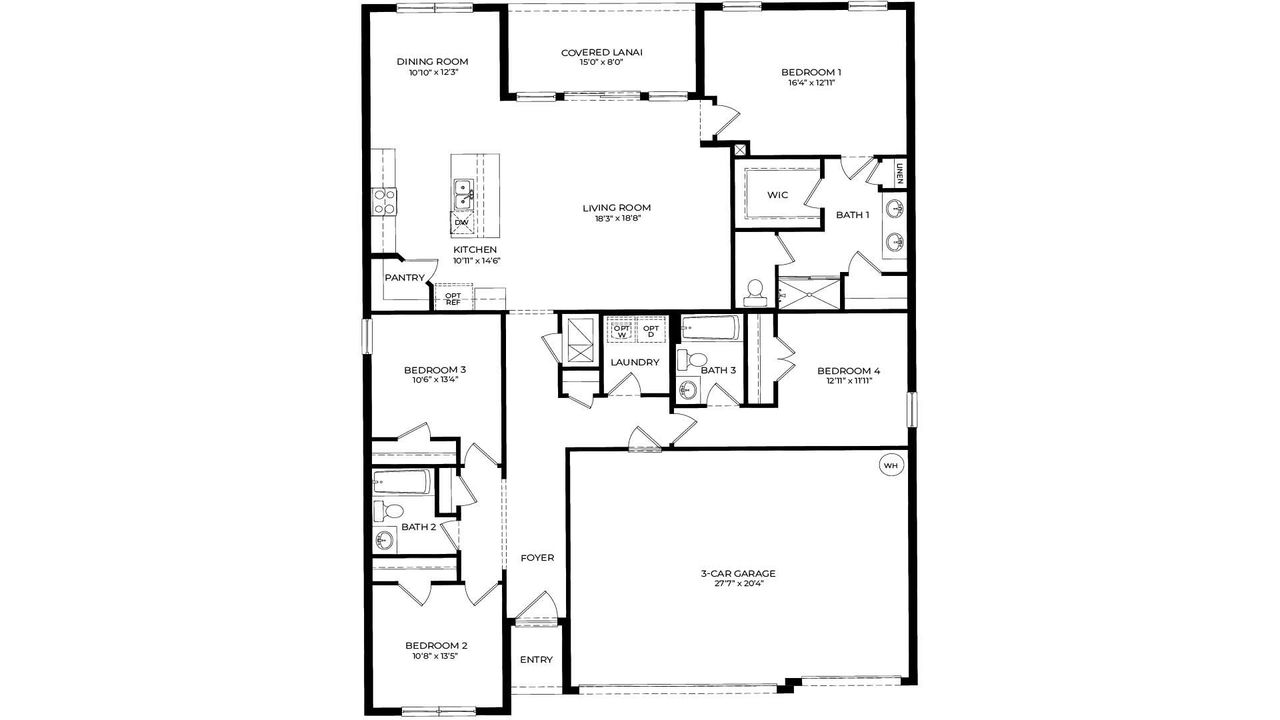
This all-concrete block constructed, one-story layout optimizes living space with an open concept. As you enter the foyer you are greeted with two guest bedrooms and a shared guest bathroom. Across the hallway you will find the laundry room, linen closet, and a third guest bedroom complete with ensuite full bathroom. The well-appointed kitchen overlooks the living area, dining room, and covered lanai.
Entertaining is a breeze, as this popular single-family home features a spacious quartz kitchen island, dining area and a spacious pantry for extra storage.
Bedroom one, located off the living space in the back of the home for privacy. The bedroom one bathroom impresses with double bowl vanity, and spacious shower/tub space as well as a spacious walk-in closet. Like all homes in Sebastian Highlands, the Madison includes a Home is Connected smart home technology package which allows you to control your home with your smart device while near or away.
May also be listed on the D.R. Horton website
Information last verified by Jome: Thursday at 2:11 AM (February 19, 2026)
Home details
- Property status:
- Sold
- Size:
- 2,020 sqft
- Stories:
- 1
- Beds:
- 4
- Baths:
- 3
- Garage spaces:
- 3
Construction details
- Builder Name:
- D.R. Horton
Home features & finishes
- Garage/Parking:
- Garage
- Rooms:
- Primary Bedroom On MainPrimary Bedroom Downstairs

Community details
Sebastian/Vero Beach Highlands
by D.R. Horton, Sebastian, FL
- 7 homes
- 4 plans
- 1,828 - 2,836 sqft
View Sebastian/Vero Beach Highlands details
More homes in Sebastian/Vero Beach Highlands
- Home at address 1072 Roseland Rd, Sebastian, FL 32958
Savings$359,900
Move-in ready- 4 bd
- 2 ba
- 1,851 sqft
1072 Roseland Rd, Sebastian, FL 32958
- Home at address 707 Barber St, Sebastian, FL 32958
Savings$385,950
Move-in ready- 4 bd
- 2 ba
- 1,828 sqft
707 Barber St, Sebastian, FL 32958
- Home at address 926 Crown St, Sebastian, FL 32958
Savings$452,715
Move-in ready- 4 bd
- 3 ba
- 2,020 sqft
926 Crown St, Sebastian, FL 32958
- Home at address 409 Ash St, Sebastian, FL 32958
Savings$452,715
Move-in ready- 4 bd
- 3 ba
- 2,020 sqft
409 Ash St, Sebastian, FL 32958
- Home at address 793 George St, Sebastian, FL 32958
Savings$454,715
Move-in ready- 4 bd
- 3 ba
- 2,020 sqft
793 George St, Sebastian, FL 32958
- Home at address 207 Main St, Sebastian, FL 32958
Savings$454,715
Move-in ready- 4 bd
- 3 ba
- 2,020 sqft
207 Main St, Sebastian, FL 32958
Floor plans in Sebastian/Vero Beach Highlands
About the builder - D.R. Horton

- 1,164communities on Jome
- 10,414homes on Jome
Neighborhood
Home address
- City:
- Sebastian
- County:
- Indian River
- Zip Code:
- 32958
Schools in Indian River County School District
GreatSchools’ Summary Rating calculation is based on 4 of the school’s themed ratings, including test scores, student/academic progress, college readiness, and equity. This information should only be used as a reference. Jome is not affiliated with GreatSchools and does not endorse or guarantee this information. Please reach out to schools directly to verify all information and enrollment eligibility. Data provided by GreatSchools.org © 2025
Places of interest
Getting around
Air quality
Noise level
A Soundscore™ rating is a number between 50 (very loud) and 100 (very quiet) that tells you how loud a location is due to environmental noise.
Financials
Nearby communities in Sebastian
Homes in Sebastian by D.R. Horton
Recently added communities in this area
Other Builders in Sebastian, FL
Nearby sold homes
New homes in nearby cities
More New Homes in Sebastian, FL
- Jome
- New homes search
- Florida
- Treasure Coast
- Indian River County
- Sebastian
- Sebastian/Vero Beach Highlands
- 502 Saunders St, Sebastian, FL 32958





















































