














Book your tour. Save an average of $18,473. We'll handle the rest.
- Confirmed tours
- Get matched & compare top deals
- Expert help, no pressure
- No added fees
Estimated value based on Jome data, T&C apply
























- 4 bd
- 3 ba
- 2,756 sqft
5117 Rosado Run, Lakewood Ranch, FL 34211
Why tour with Jome?
- No pressure toursTour at your own pace with no sales pressure
- Expert guidanceGet insights from our home buying experts
- Exclusive accessSee homes and deals not available elsewhere
Jome is featured in
- Single-Family
- $176.71/sqft
- $270/monthly HOA
- West facing
Home description
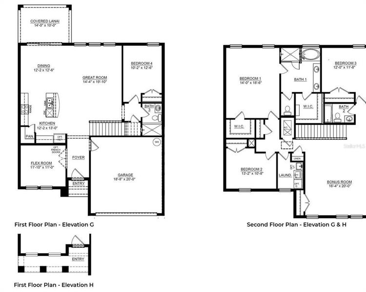
MOVE IN READY! REDTAG SALE: Receive up to $25,000 towards Flex Cash & Closing Costs and special interest rates with the use of our preferred lender - Now until January 25th. Self-guided tour available on this quick move-in home every day from 7am-9pm. Stop by to tour on your own time. Don't miss your chance - only a few homes left in this community! This all-concrete block constructed home features a well-appointed kitchen which overlooks the living and dining areas and flows outdoors to a covered lanai. A flex space at the front of the home, and a guest room and full bath off the living area complete the first floor. Upstairs, the large Bedroom 1 is complete with Bathroom 1. Two additional bedrooms, a second full bath, and laundry room surround a spacious bonus room, perfect for work or for play. This home comes with installed range, microwave, and built-in dishwasher. Pictures, photographs, colors, features, and sizes are for illustration purposes only and will vary from the homes as built. Home and community information including pricing, included features, terms, availability and amenities are subject to change and prior sale at any time without notice or obligation. Room Feature: Linen Closet In Bath (Primary Bedroom).
D.R. HORTON REALTY OF SARASOTA, MLS A4657491
May also be listed on the D.R. Horton website
Information last verified by Jome: Yesterday at 9:59 AM (January 12, 2026)
Home highlights
MacDill AFB offers secure housing, top-rated schools, and abundant amenities in vibrant South Tampa.
Book your tour. Save an average of $18,473. We'll handle the rest.
We collect exclusive builder offers, book your tours, and support you from start to housewarming.
- Confirmed tours
- Get matched & compare top deals
- Expert help, no pressure
- No added fees
Estimated value based on Jome data, T&C apply
Home details
- Property status:
- Pending/Under contract
- Lot size (acres):
- 0.15
- Size:
- 2,756 sqft
- Stories:
- 2
- Beds:
- 4
- Baths:
- 3
- Garage spaces:
- 2
- Facing direction:
- West
Construction details
- Builder Name:
- D.R. Horton
- Completion Date:
- October, 2025
- Year Built:
- 2025
- Roof:
- Shingle Roofing
Home features & finishes
- Appliances:
- Sprinkler System
- Construction Materials:
- StuccoBlock
- Cooling:
- Central Air
- Flooring:
- Vinyl FlooringCarpet Flooring
- Foundation Details:
- Slab
- Garage/Parking:
- GarageAttached Garage
- Interior Features:
- Walk-In ClosetSliding Doors
- Kitchen:
- DishwasherMicrowave OvenDisposalKitchen Range
- Laundry facilities:
- Utility/Laundry Room
- Pets:
- Pets Allowed
- Property amenities:
- SidewalkSmart Home System
- Rooms:
- Family RoomOpen Concept Floorplan
Utility information
- Heating:
- Electric Heating, Heat Pump, Water Heater, Central Heating
- Utilities:
- Electricity Available, Phone Available, Cable Available, Water Available

Community details
Solera at Lakewood Ranch at Lakewood Ranch
by D.R. Horton, Lakewood Ranch, FL
- 9 homes
- 12 plans
- 1,672 - 3,975 sqft
View Solera at Lakewood Ranch details
Community amenities
- Playground
- Community Pool
More homes in Solera at Lakewood Ranch
- Home at address 18407 Canopy Pl, Lakewood Ranch, FL 34211

Hayden
$449,000
- 5 bd
- 3 ba
- 2,605 sqft
18407 Canopy Pl, Lakewood Ranch, FL 34211
- Home at address 17759 Cantarina Cv, Bradenton, FL 34211

Home
$449,900
- 4 bd
- 2.5 ba
- 2,045 sqft
17759 Cantarina Cv, Bradenton, FL 34211
- Home at address 18415 Canopy Pl, Lakewood Ranch, FL 34211

Hayden
$479,990
- 5 bd
- 3 ba
- 2,605 sqft
18415 Canopy Pl, Lakewood Ranch, FL 34211
- Home at address 5125 Rosado Run, Lakewood Ranch, FL 34211

Coral
$524,990
- 4 bd
- 3 ba
- 2,756 sqft
5125 Rosado Run, Lakewood Ranch, FL 34211
- Home at address 18106 Metado Dr, Bradenton, FL 34211

Hemingway
$527,990
- 5 bd
- 3 ba
- 2,934 sqft
18106 Metado Dr, Bradenton, FL 34211
- Home at address 5113 Rosado Run, Bradenton, FL 34211

Hemingway
$539,990
- 5 bd
- 3 ba
- 2,934 sqft
5113 Rosado Run, Bradenton, FL 34211
Floor plans in Solera at Lakewood Ranch
About the builder - D.R. Horton

- 1,198communities on Jome
- 8,990homes on Jome
Neighborhood
Home address
- City:
- Lakewood Ranch
- County:
- Manatee
- Zip Code:
- 34211
Schools in Manatee County School District
GreatSchools’ Summary Rating calculation is based on 4 of the school’s themed ratings, including test scores, student/academic progress, college readiness, and equity. This information should only be used as a reference. Jome is not affiliated with GreatSchools and does not endorse or guarantee this information. Please reach out to schools directly to verify all information and enrollment eligibility. Data provided by GreatSchools.org © 2025
Places of interest
Getting around
Air quality

Considering this home?
Our expert will guide your tour, in-person or virtual
Need more information?
Text or call (888) 486-2818
Financials
Estimated monthly payment
Similar homes nearby
Recently added communities in this area
Nearby communities in Lakewood Ranch
New homes in nearby cities
More New Homes in Lakewood Ranch, FL
D.R. HORTON REALTY OF SARASOTA, MLS A4657491
Based on information submitted to the MLS GRID as of 10/21/2024 2:31 PM CDT. All data is obtained from various sources and may not have been verified by broker or MLS GRID. Supplied Open House Information is subject to change without notice. All information should be independently reviewed and verified for accuracy. Properties may or may not be listed by the office/agent presenting the information. Some IDX listings have been excluded from this website. Properties displayed may be listed or sold by various participants in the MLS. IDX information is provided exclusively for personal, non-commercial use, and may not be used for any purpose other than to identify prospective properties consumers may be interested in purchasing. Information is deemed reliable but not guaranteed. Use of the MLS GRID Data may be subject to an end user license agreement prescribed by the Member Participant’s applicable MLS if any and as amended from time to time. The Digital Millennium Copyright Act of 1998, 17 U.S.C. § 512 (the “DMCA”) provides recourse for copyright owners who believe that material appearing on the Internet infringes their rights under U.S. copyright law. If you believe in good faith that any content or material made available in connection with our website or services infringes your copyright, you (or your agent) may send us a notice requesting that the content or material be removed, or access to it blocked. Notices must be sent in writing by email to DMCAnotice@MLSGrid.com. The DMCA requires that your notice of alleged copyright infringement include the following information: (1) description of the copyrighted work that is the subject of claimed infringement; (2) description of the alleged infringing content and information sufficient to permit us to locate the content; (3) contact information for you, including your address, telephone number and email address; (4) a statement by you that you have a good faith belief that the content in the manner complained of is not authorized by the copyright owner, or its agent, or by the operation of any law; (5) a statement by you, signed under penalty of perjury, that the information in the notification is accurate and that you have the authority to enforce the copyrights that are claimed to be infringed; and (6) a physical or electronic signature of the copyright owner or a person authorized to act on the copyright owner’s behalf. Failure to include all of the above information may result in the delay of the processing of your complaint. Listing Information presented by local MLS brokerage: NewHomesMate LLC, DBA Jome (888) 486-2818
Read moreLast checked Jan 13, 3:10 am
- Jome
- New homes search
- Florida
- Tampa Bay Area
- Manatee County
- Lakewood Ranch
- Solera at Lakewood Ranch
- 5117 Rosado Run, Lakewood Ranch, FL 34211



































