














Book your tour. Save an average of $18,473. We'll handle the rest.
- Confirmed tours
- Get matched & compare top deals
- Expert help, no pressure
- No added fees
Estimated value based on Jome data, T&C apply










































- 3 bd
- 2.5 ba
- 2,665 sqft
1214 Gulf Blvd, Englewood, FL 34223
Why tour with Jome?
- No pressure toursTour at your own pace with no sales pressure
- Expert guidanceGet insights from our home buying experts
- Exclusive accessSee homes and deals not available elsewhere
Jome is featured in
- Single-Family
- Quick move-in
- $675.42/sqft
- East facing
Home description
Poised along the pristine shores of South Manasota Key, this brand-new 2025 residence embodies both luxury and opportunity. Just a short stroll from two exclusive beach easements, the home offers rare nightly rental eligibility, presenting not only an enviable lifestyle but also exceptional investment appeal. Rising from a remarkable 16-foot baseline elevation, its design ensures peace of mind as much as it delivers elegance—an architectural gem blending resilience with refined coastal living. Encompassing 2,665 square feet across three bedrooms and two and a half baths, it is complemented by a heated saltwater pool and spa, creating a sanctuary where modern indulgence meets timeless Florida beauty.
AC, ROOF, WATER HEATER, POOL PUMP, POOL HEATER, AC UNITS, PLUMBING, ELECTRICAL, HURRICANE IMPACT WINDOWS AND SLIDERS, TWO LAUNDRY CLOSETS = all brand new 2025.
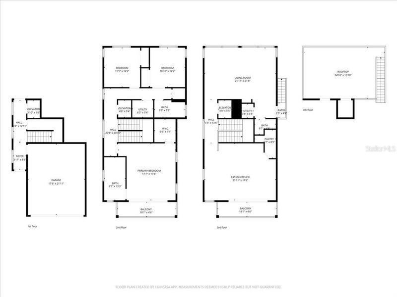
FLOORPLAN: 1ST FLOOR as you walk in has a hallway, 2-car garage, elevator, plus an under stairwell storage closet, and a breezeway out into the pool and pool deck areas. 2ND FLOOR houses all of the bedrooms and the laundry closet. 3RD FLOOR has the kitchen, living and 1/2 bath. 4TH is the rooftop
Crafted with all-concrete construction, hurricane-impact windows and sliders, and a sleek metal roof, this coastal haven exudes strength and sophistication. Inside, luminous living spaces with 10-foot ceilings and expansive windows frame sweeping Gulf and Bay vistas, while rich hickory staircases lend warmth to the contemporary design. The chef’s kitchen balances style and function with custom dark pine cabinetry, dramatic waterfall marble countertops, and a premium Café appliance suite enhanced by WiFi and Bluetooth connectivity. An 8x6 butler’s pantry adds ease and elegance to entertaining.
The second-floor primary suite offers a tranquil retreat, complete with a private balcony for sunrise views, a spacious walk-in closet, and a spa-inspired ensuite featuring quartz finishes, a glass-enclosed shower, and backlit mirrors. Two additional bedrooms share a beautifully appointed full bath, and a laundry closet provides everyday convenience.
Seamlessly integrating indoor and outdoor living, the residence features a private elevator connecting every level—from the garage to the 48-foot rooftop terrace. There, panoramic views of the Gulf of Mexico and Lemon Bay unfold in breathtaking succession, perfect for savoring sunsets, Gulf breezes, and starlit evenings. At ground level, a covered lounge gives way to the sparkling heated saltwater pool and spa, ideal for year-round relaxation.
As appealing financially as it is aesthetically, this home delivers the rare trifecta of high nightly rental potential, low-maintenance concrete and impact construction, and minimal operating costs—offering the promise of an outstanding return on investment. Whether leveraged as a lucrative vacation rental, cherished as a family retreat where lifelong memories are made, or embraced as a full-time coastal residence, it represents a legacy property designed to enrich both lifestyle and portfolio.
Situated within minutes of vibrant restaurants, lively nightlife, and premier marinas, this home is as connected as it is serene. Whether beachcombing at Englewood Beach, dining at The Waverly, or setting sail from nearby Stump Pass, the best of coastal living is always within reach. Strong, stylish, and strategically designed, this property is more than a home—it is a lifestyle investment unlike any other.
CORCORAN DWELLINGS REALTY, MLS A4666420
Information last verified by Jome: Today at 10:05 AM (December 20, 2025)
Home highlights
Book your tour. Save an average of $18,473. We'll handle the rest.
We collect exclusive builder offers, book your tours, and support you from start to housewarming.
- Confirmed tours
- Get matched & compare top deals
- Expert help, no pressure
- No added fees
Estimated value based on Jome data, T&C apply
Home details
- Property status:
- Move-in ready
- Lot size (acres):
- 0.11
- Size:
- 2,665 sqft
- Stories:
- 3+
- Beds:
- 3
- Baths:
- 2
- Half baths:
- 1
- Garage spaces:
- 2
- Fence:
- Vinyl Fence
- Facing direction:
- East
Construction details
- Year Built:
- 2025
- Roof:
- Metal Roofing
Home features & finishes
- Appliances:
- Exhaust FanIce Maker
- Construction Materials:
- BlockConcrete
- Cooling:
- Central Air
- Flooring:
- Tile FlooringHardwood Flooring
- Garage/Parking:
- Door OpenerGarageCovered Garage/ParkingAttached Garage
- Home amenities:
- Internet
- Interior Features:
- Ceiling-HighWalk-In ClosetSliding DoorsStorage
- Kitchen:
- Wine RefrigeratorDishwasherMicrowave OvenOvenRefrigeratorDisposalBuilt-In OvenCook Top
- Laundry facilities:
- Laundry Facilities In Closet
- Lighting:
- Exterior LightingLightingStreet Lights
- Pets:
- Pets AllowedCat(s) Only AllowedDog(s) Only Allowed
- Property amenities:
- BalconyPoolDeckStorage BuildingLandscapingCabinetsElevatorPorch
- Rooms:
- Dining RoomFamily RoomPrimary Bedroom Upstairs

Get a consultation with our New Homes Expert
- See how your home builds wealth
- Plan your home-buying roadmap
- Discover hidden gems
Utility information
- Heating:
- Electric Heating, Thermostat, Central Heating
- Utilities:
- Electricity Available, Other, Cable Available, Water Available
Community amenities
- Woods View
- Waterfront View
Neighborhood
Home address
Schools in Charlotte County School District
- Grades KG-05Privateredeemer lutheran school3.7 mi6970 mineola rdna
GreatSchools’ Summary Rating calculation is based on 4 of the school’s themed ratings, including test scores, student/academic progress, college readiness, and equity. This information should only be used as a reference. Jome is not affiliated with GreatSchools and does not endorse or guarantee this information. Please reach out to schools directly to verify all information and enrollment eligibility. Data provided by GreatSchools.org © 2025
Places of interest
Getting around
Air quality
Natural hazards risk
Climate hazards can impact homes and communities, with risks varying by location. These scores reflect the potential impact of natural disasters and climate-related risks on Charlotte County
Provided by FEMA

Considering this home?
Our expert will guide your tour, in-person or virtual
Need more information?
Text or call (888) 486-2818
Financials
Let us help you find your dream home
How many bedrooms are you looking for?
Similar homes nearby
Recently added communities in this area
Nearby communities in Englewood
New homes in nearby cities
More New Homes in Englewood, FL
CORCORAN DWELLINGS REALTY, MLS A4666420
Based on information submitted to the MLS GRID as of 10/21/2024 2:31 PM CDT. All data is obtained from various sources and may not have been verified by broker or MLS GRID. Supplied Open House Information is subject to change without notice. All information should be independently reviewed and verified for accuracy. Properties may or may not be listed by the office/agent presenting the information. Some IDX listings have been excluded from this website. Properties displayed may be listed or sold by various participants in the MLS. IDX information is provided exclusively for personal, non-commercial use, and may not be used for any purpose other than to identify prospective properties consumers may be interested in purchasing. Information is deemed reliable but not guaranteed. Use of the MLS GRID Data may be subject to an end user license agreement prescribed by the Member Participant’s applicable MLS if any and as amended from time to time. The Digital Millennium Copyright Act of 1998, 17 U.S.C. § 512 (the “DMCA”) provides recourse for copyright owners who believe that material appearing on the Internet infringes their rights under U.S. copyright law. If you believe in good faith that any content or material made available in connection with our website or services infringes your copyright, you (or your agent) may send us a notice requesting that the content or material be removed, or access to it blocked. Notices must be sent in writing by email to DMCAnotice@MLSGrid.com. The DMCA requires that your notice of alleged copyright infringement include the following information: (1) description of the copyrighted work that is the subject of claimed infringement; (2) description of the alleged infringing content and information sufficient to permit us to locate the content; (3) contact information for you, including your address, telephone number and email address; (4) a statement by you that you have a good faith belief that the content in the manner complained of is not authorized by the copyright owner, or its agent, or by the operation of any law; (5) a statement by you, signed under penalty of perjury, that the information in the notification is accurate and that you have the authority to enforce the copyrights that are claimed to be infringed; and (6) a physical or electronic signature of the copyright owner or a person authorized to act on the copyright owner’s behalf. Failure to include all of the above information may result in the delay of the processing of your complaint. Listing Information presented by local MLS brokerage: NewHomesMate LLC, DBA Jome (888) 486-2818
Read moreLast checked Dec 20, 3:10 pm
- Jome
- New homes search
- Florida
- Charlotte County
- Englewood
- 1214 Gulf Blvd, Englewood, FL 34223
























