






































- 3 bd
- 2.5 ba
- 1,470 sqft
280 Phillips Bluff Ave, Panama City Beach, FL 32407
- Townhouse
- $224.42/sqft
- 295 days on Jome
New Homes for Sale Near 280 Phillips Bluff Ave, Panama City Beach, FL 32407
About this Home
About this home
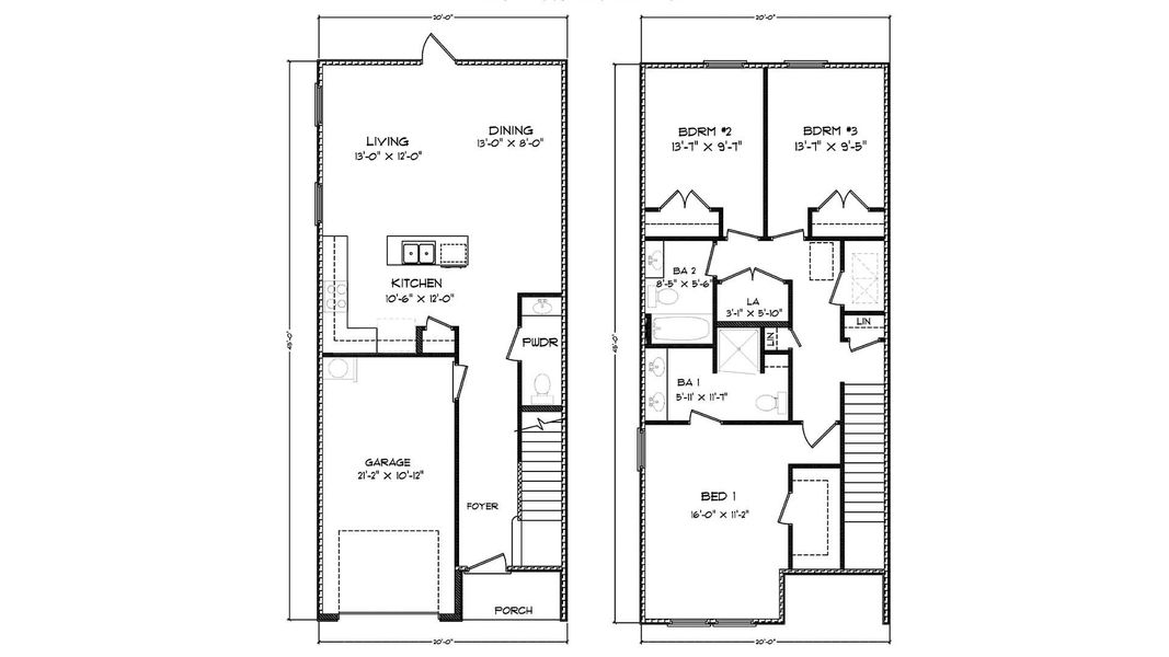
Welcome 280 Phillips Bluff Avenue, a new home at Colonial East Townhomes in Panama City Beach Florida. This exterior unit townhome offers a welcoming space that has 3 bedrooms, 2.5 bathrooms, and a convenient single car garage. The bright entry leads to an open kitchen, living, and dining area that is designed for comfort and everyday living. The kitchen serves as the culinary center with a spacious center island, beautiful white cabinetry, granite countertops, and a premium stainless steel appliance package including a smooth top stove, microwave and dishwasher. Beautiful windows surround the living area allowing for natural light. Interior features of this home include EVP flooring throughout the common areas and stairs, the upstairs has plush carpet, quartz countertops in the kitchen and an appliance package that includes stainless smooth top stove, microwave and dishwasher.
The first floor is the heart of the home, while the privacy of the second level has all bedrooms, ensuring a quiet retreat. The main suite features a generous closet, an oversized shower, dual sink vanity, and a linen storage area in the private bath. Two additional bedrooms share a hall bath with shower tub combo that create a comfortable space for family or guests.
This townhome is equipped with a Smart Home Technology Package featuring a Qolsys IQ touch panel for thermostat and lighting control, ensuring security and convenience. A landscaped front entry adds curb appeal and welcomes you to your very own slice of Florida paradise awaits. Call today
May also be listed on the D.R. Horton website
Information last verified by Jome: Wednesday at 1:50 AM (December 17, 2025)
Home details
- Property status:
- Sold
- Size:
- 1,470 sqft
- Stories:
- 2
- Beds:
- 3
- Baths:
- 2.5
- Garage spaces:
- 1

Floor plan details
Palm Exterior
- 3 bd
- 2.5 ba
- 1,470 sqft
View Palm Exterior details
Construction details
- Builder Name:
- D.R. Horton
Home features & finishes
- Garage/Parking:
- GarageAttached Garage
- Interior Features:
- Walk-In ClosetFoyerPantry
- Kitchen:
- Kitchen Island
- Laundry facilities:
- Utility/Laundry Room
- Property amenities:
- Porch
- Rooms:
- KitchenPowder RoomDining RoomLiving RoomOpen Concept FloorplanPrimary Bedroom Upstairs

Community details
Colonial East Townhomes
by D.R. Horton, Panama City Beach, FL
- 4 homes
- 2 plans
- 1,459 - 1,470 sqft
View Colonial East Townhomes details
More homes in Colonial East Townhomes
- Home at address 286 Phillips Bluff Ave, Panama City Beach, FL 32407

$294,900
Move-in ready- 3 bd
- 2.5 ba
- 1,459 sqft
286 Phillips Bluff Ave, Panama City Beach, FL 32407
- Home at address 270 Phillips Bluff Ave, Panama City Beach, FL 32407

$307,900
Move-in ready- 3 bd
- 2.5 ba
- 1,459 sqft
270 Phillips Bluff Ave, Panama City Beach, FL 32407
- Home at address 266 Phillips Bluff Ave, Panama City Beach, FL 32407

$307,900
Move-in ready- 3 bd
- 2.5 ba
- 1,459 sqft
266 Phillips Bluff Ave, Panama City Beach, FL 32407
- Home at address 268 Phillips Bluff Ave, Panama City Beach, FL 32407

$307,900
Move-in ready- 3 bd
- 2.5 ba
- 1,459 sqft
268 Phillips Bluff Ave, Panama City Beach, FL 32407
Floor plans in Colonial East Townhomes
About the builder - D.R. Horton

- 1,164communities on Jome
- 10,414homes on Jome
Neighborhood
Home address
- City:
- Panama City Beach
- County:
- Bay
- Zip Code:
- 32407
Schools in Bay County School District
GreatSchools’ Summary Rating calculation is based on 4 of the school’s themed ratings, including test scores, student/academic progress, college readiness, and equity. This information should only be used as a reference. Jome is not affiliated with GreatSchools and does not endorse or guarantee this information. Please reach out to schools directly to verify all information and enrollment eligibility. Data provided by GreatSchools.org © 2025
Places of interest
Getting around
Air quality
Noise level
A Soundscore™ rating is a number between 50 (very loud) and 100 (very quiet) that tells you how loud a location is due to environmental noise.
Financials
Nearby communities in Panama City Beach
Homes in Panama City Beach by D.R. Horton
Recently added communities in this area
Other Builders in Panama City Beach, FL
Nearby sold homes
New homes in nearby cities
More New Homes in Panama City Beach, FL
- Jome
- New homes search
- Florida
- Bay County
- Panama City Beach
- Colonial East Townhomes
- 280 Phillips Bluff Ave, Panama City Beach, FL 32407

































































