














Book your tour. Save an average of $18,473. We'll handle the rest.
- Confirmed tours
- Get matched & compare top deals
- Expert help, no pressure
- No added fees
Estimated value based on Jome data, T&C apply













Why tour with Jome?
- No pressure toursTour at your own pace with no sales pressure
- Expert guidanceGet insights from our home buying experts
- Exclusive accessSee homes and deals not available elsewhere
Jome is featured in
- Single-Family
- $191.84/sqft
- South facing
- 0.23-acre lot
Home description
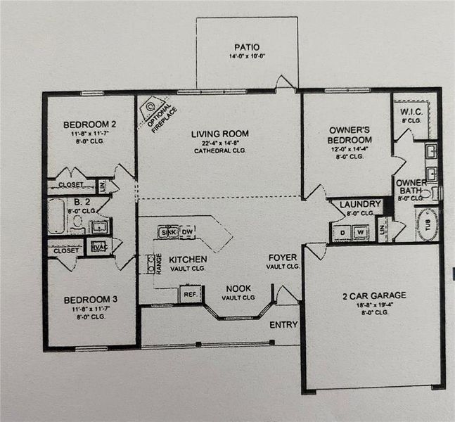
Under Construction. Don't miss out on this exceptional beautiful home. Step into the lap of luxury with this magnificent 1540 Sq. Ft. residence boasting 3 bedrooms, 2 bathrooms, 2 Car garage. As you enter, you'll be captivated by the seamless flow of the open - concept great room and kitchen, adorned with 10' ceilings. Revel in the beauty of the ceramic plank tile flooring throughout the main areas, completed by the elegant granite countertops. The attention to detail is evident with features like 5 1/4-inch baseboards, 5 panel doors, brushed nickel levered door handles, LED recessed lighting, double pane, insulated tilt-in sash windows, and array of other thoughtful touches.
Don't miss out on this opportunity to make this property your own. A 1-year builder warranty, 2-year limited warranty, and a 10-year structural warranty are included. The seller pays majority of the closing costs with the use of our preferred lenders.
Prices subject to change without notice
ADAMS HOME REALTY INC, MLS A4620563
May also be listed on the Adams Homes website
Information last verified by Jome: Yesterday at 9:59 AM (January 11, 2026)
Book your tour. Save an average of $18,473. We'll handle the rest.
We collect exclusive builder offers, book your tours, and support you from start to housewarming.
- Confirmed tours
- Get matched & compare top deals
- Expert help, no pressure
- No added fees
Estimated value based on Jome data, T&C apply
Home details
- Property status:
- Pending/Under contract
- Lot size (acres):
- 0.23
- Size:
- 1,540 sqft
- Stories:
- 1
- Beds:
- 3
- Baths:
- 2
- Garage spaces:
- 2
- Facing direction:
- South
Construction details
- Builder Name:
- Adams Homes
- Year Built:
- 2024
- Roof:
- Shingle Roofing
Home features & finishes
- Construction Materials:
- StuccoBlock
- Cooling:
- Central Air
- Flooring:
- Ceramic FlooringCarpet FlooringTile Flooring
- Foundation Details:
- Slab
- Garage/Parking:
- GarageAttached Garage
- Interior Features:
- Walk-In ClosetShutters
- Kitchen:
- DishwasherMicrowave OvenKitchen Range
- Laundry facilities:
- DryerWasherUtility/Laundry Room
- Rooms:
- Primary Bedroom On MainKitchenPrimary Bedroom Downstairs

Get a consultation with our New Homes Expert
- See how your home builds wealth
- Plan your home-buying roadmap
- Discover hidden gems
Utility information
- Heating:
- Electric Heating, Water Heater
- Utilities:
- Electricity Available, Cable Available, Water Available

Community details
North Port
by Adams Homes, North Port, FL
- 31 homes
- 10 plans
- 1,499 - 3,000 sqft
View North Port details
More homes in North Port
- Home at address 7387 Petal Rd, North Port, FL 34291

Plan 1540
$313,900
- 3 bd
- 2 ba
- 1,540 sqft
7387 Petal Rd, North Port, FL 34291
- Home at address 3165 Stockton Ave, North Port, FL 34286

Home
$315,000
- 3 bd
- 2 ba
- 1,499 sqft
3165 Stockton Ave, North Port, FL 34286
- Home at address 4843 Laskey Ave, North Port, FL 34288

Plan 1860
$322,084
- 3 bd
- 2 ba
- 1,852 sqft
4843 Laskey Ave, North Port, FL 34288
- Home at address 4510 Dakota Ter, North Port, FL 34286

1820
$332,100
- 3 bd
- 2 ba
- 1,860 sqft
4510 Dakota Ter, North Port, FL 34286
- Home at address 3616 Melissa Ter, North Port, FL 34291

2010
$334,282
- 3 bd
- 2 ba
- 2,010 sqft
3616 Melissa Ter, North Port, FL 34291
- Home at address 5923 Giffen Ave, North Port, FL 34291

Plan 1860
$335,500
- 3 bd
- 2 ba
- 1,860 sqft
5923 Giffen Ave, North Port, FL 34291
Floor plans in North Port
About the builder - Adams Homes

- 157communities on Jome
- 1,241homes on Jome
Neighborhood
Home address
- City:
- North Port
- County:
- Sarasota
- Zip Code:
- 34288
Schools in Sarasota County School District
GreatSchools’ Summary Rating calculation is based on 4 of the school’s themed ratings, including test scores, student/academic progress, college readiness, and equity. This information should only be used as a reference. Jome is not affiliated with GreatSchools and does not endorse or guarantee this information. Please reach out to schools directly to verify all information and enrollment eligibility. Data provided by GreatSchools.org © 2025
Places of interest
Getting around
Air quality
Noise level
A Soundscore™ rating is a number between 50 (very loud) and 100 (very quiet) that tells you how loud a location is due to environmental noise.

Considering this home?
Our expert will guide your tour, in-person or virtual
Need more information?
Text or call (888) 486-2818
Financials
Estimated monthly payment
Let us help you find your dream home
How many bedrooms are you looking for?
Similar homes nearby
Recently added communities in this area
Nearby communities in North Port
New homes in nearby cities
More New Homes in North Port, FL
ADAMS HOME REALTY INC, MLS A4620563
Based on information submitted to the MLS GRID as of 10/21/2024 2:31 PM CDT. All data is obtained from various sources and may not have been verified by broker or MLS GRID. Supplied Open House Information is subject to change without notice. All information should be independently reviewed and verified for accuracy. Properties may or may not be listed by the office/agent presenting the information. Some IDX listings have been excluded from this website. Properties displayed may be listed or sold by various participants in the MLS. IDX information is provided exclusively for personal, non-commercial use, and may not be used for any purpose other than to identify prospective properties consumers may be interested in purchasing. Information is deemed reliable but not guaranteed. Use of the MLS GRID Data may be subject to an end user license agreement prescribed by the Member Participant’s applicable MLS if any and as amended from time to time. The Digital Millennium Copyright Act of 1998, 17 U.S.C. § 512 (the “DMCA”) provides recourse for copyright owners who believe that material appearing on the Internet infringes their rights under U.S. copyright law. If you believe in good faith that any content or material made available in connection with our website or services infringes your copyright, you (or your agent) may send us a notice requesting that the content or material be removed, or access to it blocked. Notices must be sent in writing by email to DMCAnotice@MLSGrid.com. The DMCA requires that your notice of alleged copyright infringement include the following information: (1) description of the copyrighted work that is the subject of claimed infringement; (2) description of the alleged infringing content and information sufficient to permit us to locate the content; (3) contact information for you, including your address, telephone number and email address; (4) a statement by you that you have a good faith belief that the content in the manner complained of is not authorized by the copyright owner, or its agent, or by the operation of any law; (5) a statement by you, signed under penalty of perjury, that the information in the notification is accurate and that you have the authority to enforce the copyrights that are claimed to be infringed; and (6) a physical or electronic signature of the copyright owner or a person authorized to act on the copyright owner’s behalf. Failure to include all of the above information may result in the delay of the processing of your complaint. Listing Information presented by local MLS brokerage: NewHomesMate LLC, DBA Jome (888) 486-2818
Read moreLast checked Jan 12, 3:10 am
- Jome
- New homes search
- Florida
- Sarasota County
- North Port
- North Port
- 4865 Manila Ave, North Port, FL 34288




































