









Book your tour. Save an average of $18,473. We'll handle the rest.
We collect exclusive builder offers, book your tours, and support you from start to housewarming.
- Confirmed tours
- Get matched & compare top deals
- Expert help, no pressure
- No added fees
Estimated value based on Jome data, T&C apply






























- 2 bd
- 1.5 ba
- 1,092 sqft
13415 E 103Rd Ave, Commerce City, CO 80022
Why tour with Jome?
- No pressure toursTour at your own pace with no sales pressure
- Expert guidanceGet insights from our home buying experts
- Exclusive accessSee homes and deals not available elsewhere
Jome is featured in
- Single-Family
- Quick move-in
- $354.85/sqft
- $1,326/annual HOA
Home description
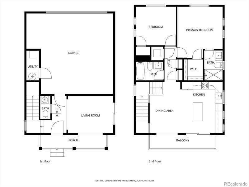
Welcome to this stylish, nearly new home offering the perfect blend of flexibility, affordability, and low-maintenance living. With 1,092 square feet of thoughtfully designed space, this one-year-old home is move-in ready. Built with energy efficiency and modern living in mind, this home includes quartz countertops, energy efficient appliances, a smart thermostat, a heat pump and is all electric The full size 2 car garage offers extra storage. And the home faces the street and features a fully fenced yard—perfect for pets.
The versatile floor plan adapts to your lifestyle. As you enter, you’ll find a welcoming main-level living space—perfect as a cozy lounge, home office, or living room—plus a convenient half bath. Upstairs, the heart of the home opens up with a bright kitchen and flex area currently being used as a formal dining room. The seller has upgraded the space with a custom island and additional cabinetry, and is even willing to extend the island for bar-top dining—ideal for casual meals, entertaining and using the flex space as your main living area.
Step out onto the balcony and take in those Colorado mountain views on a clear day—your own little escape.
The upper level features two comfortable bedrooms, the primary bedroom with a 3/4 bath and walk in closet
and the secondary bedroom, full bathroom, and the convenience of in-unit laundry—all designed to make everyday living easy. This home faces the street and features a fully fenced yard—perfect for pets.
Located in the vibrant Reunion community, you’ll love the lifestyle just as much as the home. Enjoy 10 miles of scenic trails, 150 acres of expansive open space, lakes, 2 pools, a state-of-the-art recreation center, and Buffalo Run Golf Course. Don’t forget the community events that run year-round. Fun! Grocery shopping, coffee shops, breweries and restaurants close by. Super easy access to DIA and E-470, this location keeps you connected while giving you room to breathe.
MB Leading Light RE Solutions, MLS REC3985204
May also be listed on the Oakwood Homes Co website
Information last verified by Jome: Today at 4:09 AM (April 3, 2026)
Home highlights
Restored prairie ecosystem near Denver with mountain views, bison herds, and miles of peaceful nature trails.
Book your tour. Save an average of $18,473. We'll handle the rest.
We collect exclusive builder offers, book your tours, and support you from start to housewarming.
- Confirmed tours
- Get matched & compare top deals
- Expert help, no pressure
- No added fees
Estimated value based on Jome data, T&C apply
Home details
- Property status:
- Move-in ready
- Lot size (acres):
- 0.05
- Size:
- 1,092 sqft
- Stories:
- 2
- Beds:
- 2
- Baths:
- 1
- Half baths:
- 1
- Garage spaces:
- 2
- Facing direction:
- South
Construction details
- Builder Name:
- Oakwood Homes Co
- Year Built:
- 2024
- Roof:
- Composition Roofing
Home features & finishes
- Construction Materials:
- Vinyl SidingFrame
- Cooling:
- Central Air
- Flooring:
- Vinyl FlooringCarpet Flooring
- Foundation Details:
- Slab
- Garage/Parking:
- GarageAttached Garage
- Home amenities:
- Green Construction
- Interior Features:
- Ceiling-HighWalk-In Closet
- Kitchen:
- DishwasherMicrowave OvenOvenRefrigeratorDisposalQuartz countertopKitchen IslandKitchen Range
- Laundry facilities:
- Laundry Facilities In UnitDryer
- Pets:
- Cat(s) Only AllowedDog(s) Only Allowed
- Property amenities:
- BasementBalconyYardSmart Home SystemPorch
- Security system:
- Smoke DetectorCarbon Monoxide Detector
Room details
Kitchen
Dining Room
Living Room

Get a consultation with our New Homes Expert
- See how your home builds wealth
- Plan your home-buying roadmap
- Discover hidden gems
Utility information
- Heating:
- Heat Pump
- Utilities:
- Electricity Available, HVAC
Community amenities
- Mountain(s) View
About the builder - Oakwood Homes Co
Neighborhood
Home address
- City:
- Commerce City
- County:
- Adams
- Zip Code:
- 80022
Schools in School District 27J
GreatSchools’ Summary Rating calculation is based on 4 of the school’s themed ratings, including test scores, student/academic progress, college readiness, and equity. This information should only be used as a reference. Jome is not affiliated with GreatSchools and does not endorse or guarantee this information. Please reach out to schools directly to verify all information and enrollment eligibility. Data provided by GreatSchools.org © 2025
Places of interest
Getting around
1 nearby routes: 1 bus, 0 rail, 0 otherAir quality
Noise level
A Soundscore™ rating is a number between 50 (very loud) and 100 (very quiet) that tells you how loud a location is due to environmental noise.
Natural hazards risk
Provided by FEMA

Considering this home?
Our expert will guide your tour, in-person or virtual
Need more information?
Text or call (888) 545-5198
Financials
Estimated monthly payment
Let us help you find your dream home
How many bedrooms are you looking for?
Similar homes nearby
Recently added communities in this area
Nearby communities in Commerce City
New homes in nearby cities
More New Homes in Commerce City, CO
MB Leading Light RE Solutions, MLS REC3985204
The content relating to real estate for sale in this Web site comes in part from the Internet Data eXchange (“IDX”) program of METROLIST, INC., DBA RECOLORADO® Real estate listings held by brokers other than NewHomesMate LLC, DBA Jome are marked with the IDX Logo. This information is being provided for the consumers’ personal, non-commercial use and may not be used for any other purpose. All information subject to change and should be independently verified. This publication is designed to provide information with regard to the subject matter covered. It is displayed with the understanding that the publisher and authors are not engaged in rendering real estate, legal, accounting, tax, or other professional services and that the publisher and authors are not offering such advice in this publication. If real estate, legal, or other expert assistance is required, the services of a competent, professional person should be sought. The information contained in this publication is subject to change without notice. METROLIST, INC., DBA RECOLORADO MAKES NO WARRANTY OF ANY KIND WITH REGARD TO THIS MATERIAL, INCLUDING, BUT NOT LIMITED TO, THE IMPLIED WARRANTIES OF MERCHANTABILITY AND FITNESS FOR A PARTICULAR PURPOSE. METROLIST, INC., DBA RECOLORADO SHALL NOT BE LIABLE FOR ERRORS CONTAINED HEREIN OR FOR ANY DAMAGES IN CONNECTION WITH THE FURNISHING, PERFORMANCE, OR USE OF THIS MATERIAL. PUBLISHER'S NOTICE: All real estate advertised herein is subject to the Federal Fair Housing Act and the Colorado Fair Housing Act, which Acts make it illegal to make or publish any advertisement that indicates any preference, limitation, or discrimination based on race, color, religion, sex, handicap, familial status, or national origin. METROLIST, INC., DBA RECOLORADO will not knowingly accept any advertising for real estate that is in violation of the law. All persons are hereby informed that all dwellings advertised are available on an equal opportunity basis. © 2025 METROLIST, INC., DBA RECOLORADO® - All Rights Reserved. 6455 S. Yosemite St., Suite 500, Greenwood Village, CO 80111 USA. ALL RIGHTS RESERVED WORLDWIDE. No part of this publication may be reproduced, adapted, translated, stored in a retrieval system or transmitted in any form or by any means, electronic, mechanical, photocopying, recording, or otherwise, without the prior written permission of the publisher. The information contained herein including but not limited to all text, photographs, digital images, virtual tours, may be seeded and monitored for protection and tracking.
Read moreLast checked Apr 3, 4:00 am
- Jome
- New homes search
- Colorado
- Denver Metropolitan Area
- Adams County
- Commerce City
- 13415 E 103Rd Ave, Commerce City, CO 80022




























