














Book your tour. Save an average of $18,473. We'll handle the rest.
We collect exclusive builder offers, book your tours, and support you from start to housewarming.
- Confirmed tours
- Get matched & compare top deals
- Expert help, no pressure
- No added fees
Estimated value based on Jome data, T&C apply
























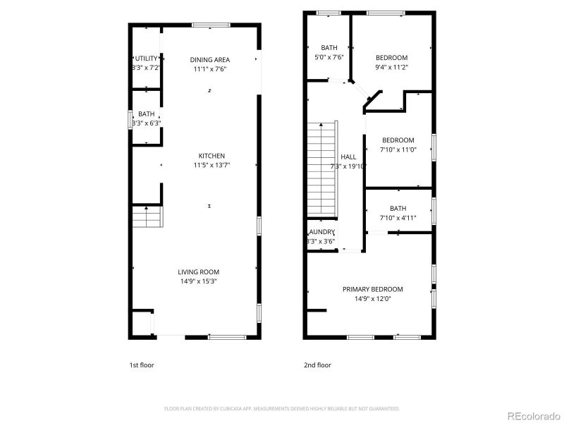
- 3 bd
- 2.5 ba
- 1,151 sqft
5057 N Yampa St, Denver, CO 80249
Why tour with Jome?
- No pressure toursTour at your own pace with no sales pressure
- Expert guidanceGet insights from our home buying experts
- Exclusive accessSee homes and deals not available elsewhere
Jome is featured in
- Single-Family
- Quick move-in
- $334.49/sqft
- $900/annual HOA
Home description
Welcome home to this beautiful newer construction 3-bedroom, 3-bathroom single-family home offering space, style, and convenience for under $400,000. Built less than two years ago, this home is the largest floorplan in the collection and features an open, bright layout designed for modern living. The primary suite includes a private en suite bathroom, and all bedrooms are well-sized with plenty of space.
The main level showcases a gourmet kitchen with all appliances included, plus a washer and dryer, making this truly move-in ready. Enjoy wood flooring throughout, recessed lighting, air conditioning, and abundant natural light that creates a warm and inviting atmosphere. The home also offers excellent storage, including a crawlspace, and includes one deeded parking space and a covered garage, along with a private yard perfect for relaxing or entertaining.
Upstairs and downstairs living spaces provide flexibility for families, first-time buyers, or students looking for a comfortable and functional home.
Located in a prime and highly convenient area, this home is just blocks from light rail, restaurants, shopping, grocery stores, major highways, walking trails, parks, recreation centers, and an amphitheater with a lake. The location truly offers the best of accessibility and lifestyle.
The home also includes solar panels with a lease to be assumed by the buyer, offering energy efficiency and potential savings—especially beneficial for buyers with electric vehicles or those looking to reduce utility costs.
This spotless, move-in ready home is competitively priced with nearby properties and offers incredible value for a 3-bedroom, 3-bath home with a garage and yard under $400K.
Don’t miss your opportunity to own one of the best values in the area.
Keller Williams Realty Downtown LLC, MLS REC9423359
Information last verified by Jome: Today at 4:13 AM (March 6, 2026)
Book your tour. Save an average of $18,473. We'll handle the rest.
We collect exclusive builder offers, book your tours, and support you from start to housewarming.
- Confirmed tours
- Get matched & compare top deals
- Expert help, no pressure
- No added fees
Estimated value based on Jome data, T&C apply
Home details
- Property status:
- Move-in ready
- Neighborhood:
- Gateway - Green Valley Ranch
- Lot size (acres):
- 0.05
- Size:
- 1,151 sqft
- Stories:
- 2
- Beds:
- 3
- Baths:
- 2
- Half baths:
- 1
- Garage spaces:
- 1
Construction details
- Year Built:
- 2024
Home features & finishes
- Construction Materials:
- Frame
- Garage/Parking:
- Garage
- Kitchen:
- DishwasherMicrowave OvenOvenRefrigerator
- Laundry facilities:
- DryerWasher
- Property amenities:
- Porch

Get a consultation with our New Homes Expert
- See how your home builds wealth
- Plan your home-buying roadmap
- Discover hidden gems
Utility information
- Heating:
- Solar Heating
Neighborhood
Home address
- Neighborhood:
- Gateway - Green Valley Ranch
- City:
- Denver
Schools in Denver County School District 1
GreatSchools’ Summary Rating calculation is based on 4 of the school’s themed ratings, including test scores, student/academic progress, college readiness, and equity. This information should only be used as a reference. Jome is not affiliated with GreatSchools and does not endorse or guarantee this information. Please reach out to schools directly to verify all information and enrollment eligibility. Data provided by GreatSchools.org © 2025
Places of interest
Getting around
2 nearby routes: 2 bus, 0 rail, 0 otherAir quality
Noise level
A Soundscore™ rating is a number between 50 (very loud) and 100 (very quiet) that tells you how loud a location is due to environmental noise.
Natural hazards risk
Provided by FEMA

Considering this home?
Our expert will guide your tour, in-person or virtual
Need more information?
Text or call (888) 488-9243
Financials
Estimated monthly payment
Let us help you find your dream home
How many bedrooms are you looking for?
Similar homes nearby
Recently added communities in this area
Nearby communities in Denver
New homes in nearby cities
More New Homes in Denver, CO
Keller Williams Realty Downtown LLC, MLS REC9423359
The content relating to real estate for sale in this Web site comes in part from the Internet Data eXchange (“IDX”) program of METROLIST, INC., DBA RECOLORADO® Real estate listings held by brokers other than NewHomesMate LLC, DBA Jome are marked with the IDX Logo. This information is being provided for the consumers’ personal, non-commercial use and may not be used for any other purpose. All information subject to change and should be independently verified. This publication is designed to provide information with regard to the subject matter covered. It is displayed with the understanding that the publisher and authors are not engaged in rendering real estate, legal, accounting, tax, or other professional services and that the publisher and authors are not offering such advice in this publication. If real estate, legal, or other expert assistance is required, the services of a competent, professional person should be sought. The information contained in this publication is subject to change without notice. METROLIST, INC., DBA RECOLORADO MAKES NO WARRANTY OF ANY KIND WITH REGARD TO THIS MATERIAL, INCLUDING, BUT NOT LIMITED TO, THE IMPLIED WARRANTIES OF MERCHANTABILITY AND FITNESS FOR A PARTICULAR PURPOSE. METROLIST, INC., DBA RECOLORADO SHALL NOT BE LIABLE FOR ERRORS CONTAINED HEREIN OR FOR ANY DAMAGES IN CONNECTION WITH THE FURNISHING, PERFORMANCE, OR USE OF THIS MATERIAL. PUBLISHER'S NOTICE: All real estate advertised herein is subject to the Federal Fair Housing Act and the Colorado Fair Housing Act, which Acts make it illegal to make or publish any advertisement that indicates any preference, limitation, or discrimination based on race, color, religion, sex, handicap, familial status, or national origin. METROLIST, INC., DBA RECOLORADO will not knowingly accept any advertising for real estate that is in violation of the law. All persons are hereby informed that all dwellings advertised are available on an equal opportunity basis. © 2025 METROLIST, INC., DBA RECOLORADO® - All Rights Reserved. 6455 S. Yosemite St., Suite 500, Greenwood Village, CO 80111 USA. ALL RIGHTS RESERVED WORLDWIDE. No part of this publication may be reproduced, adapted, translated, stored in a retrieval system or transmitted in any form or by any means, electronic, mechanical, photocopying, recording, or otherwise, without the prior written permission of the publisher. The information contained herein including but not limited to all text, photographs, digital images, virtual tours, may be seeded and monitored for protection and tracking.
Read moreLast checked Mar 6, 4:00 am
- Jome
- New homes search
- Colorado
- Denver Metropolitan Area
- Denver County
- Denver
- 5057 N Yampa St, Denver, CO 80249



























