









- 4 bd
- 1.5 ba
- 2,581 sqft
16781 E Kettle Ave, Centennial, CO 80016
- Single-Family
- $281.33/sqft
- $528/annual HOA
- 0.06-acre lot
New Homes for Sale Near 16781 E Kettle Ave, Centennial, CO 80016
About this Home
Contact builder today about Special Financing for this home - terms and conditions apply
Anticipated Completion May 2026!
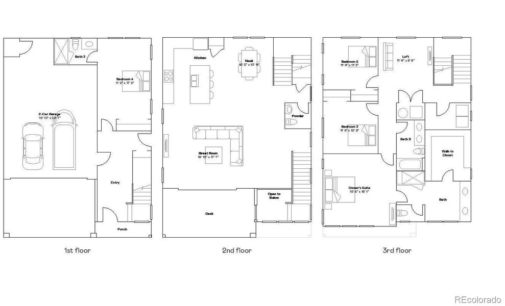
Gorgeous Overlook 3-story in the brand new Vermilion community is Northeast facing and features 4 beds (3 upper / 1 lower), 3.5 baths, loft, great room, kitchen, 2.5 car garage and crawlspace. Gorgeous finishes and upgrades throughout including Quartz package, luxury vinyl plank flooring, stainless steel appliances, spacious balcony and more. The builder provides the latest in energy efficiency and state of the art technology with several fabulous floorplans to choose from. Energy efficiency, and technology/connectivity seamlessly blended with luxury to make your new house a home. Vermilion Creek offers single family homes for every lifestyle. Close to dining, shopping, entertainment and other amenities. Photos are model only and subject to change. Finishes subject to change. Private Fencing included with this home. Adjacent to community green area. Enjoy easy access to Tagawa Gardens, nearby Trails and Cherry Creek schools.
May also be listed on the Lennar website
Information last verified by Jome: Thursday at 10:11 AM (April 9, 2026)
Home details
- Property status:
- Sold
- Collection:
- Vermilion Creek: The Skyline
- Lot size (acres):
- 0.06
- Size:
- 2,581 sqft
- Stories:
- 3+
- Beds:
- 4
- Baths:
- 1
- Half baths:
- 1
- Garage spaces:
- 2
Construction details
- Builder Name:
- Lennar
- Completion Date:
- April, 2026
- Year Built:
- 2026
- Roof:
- Composition Roofing
Home features & finishes
- Construction Materials:
- Frame
- Cooling:
- Central Air
- Flooring:
- Vinyl FlooringCarpet FlooringTile Flooring
- Garage/Parking:
- GarageAttached Garage
- Interior Features:
- Walk-In ClosetFoyerPantryBreakfast BarLoft
- Kitchen:
- DishwasherMicrowave OvenRefrigeratorDisposalKitchen Island
- Laundry facilities:
- Laundry Facilities In UnitUtility/Laundry Room
- Pets:
- Pets AllowedCat(s) Only AllowedDog(s) Only Allowed
- Property amenities:
- BasementBalconyPorch
- Rooms:
- Great RoomKitchenNookPowder RoomFamily RoomBreakfast AreaOpen Concept FloorplanPrimary Bedroom Upstairs
- Security system:
- Smoke DetectorCarbon Monoxide Detector
Room details
Bedroom 1
Great Room
Loft
Utility information
- Sewer:
- Public Sewer
- Utilities:
- Electricity Available, Natural Gas Available, Phone Available
- Water source:
- Public

Community details
Vermilion Creek
by Lennar, Centennial, CO
- 11 homes
- 18 plans
- 1,099 - 2,581 sqft
View Vermilion Creek details
More homes in Vermilion Creek
- Home at address 7693 S Mobile Wy, Centennial, CO 80016
Savings$644,000
Move-in ready- 4 bd
- 3.5 ba
- 2,270 sqft
7693 S Mobile Wy, Centennial, CO 80016
- Home at address 16775 E Kettle Ave, Centennial, CO 80016
Savings$654,700
Move-in ready- 4 bd
- 3.5 ba
- 2,356 sqft
16775 E Kettle Ave, Centennial, CO 80016
- Home at address 7713 S Mobile Wy, Centennial, CO 80016
Savings$659,400
Under construction- 4 bd
- 3.5 ba
- 2,434 sqft
7713 S Mobile Wy, Centennial, CO 80016
- Home at address 7701 S Mobile Wy, Centennial, CO 80016
Savings$660,800
Move-in ready- 4 bd
- 3.5 ba
- 2,270 sqft
7701 S Mobile Wy, Centennial, CO 80016
- Home at address 7792 S Cherokee Trl, Centennial, CO 80016
Savings$664,950
Move-in ready- 4 bd
- 3.5 ba
- 2,356 sqft
7792 S Cherokee Trl, Centennial, CO 80016
- Home at address 16793 E Kettle Ave, Centennial, CO 80016
Savings$717,900
Move-in ready- 4 bd
- 3.5 ba
- 2,581 sqft
16793 E Kettle Ave, Centennial, CO 80016
Floor plans in Vermilion Creek
About the builder - Lennar

- 1,869communities on Jome
- 7,138homes on Jome
Neighborhood
Home address
- City:
- Centennial
- County:
- Arapahoe
- Zip Code:
- 80016
Schools in Cherry Creek School District 5
GreatSchools’ Summary Rating calculation is based on 4 of the school’s themed ratings, including test scores, student/academic progress, college readiness, and equity. This information should only be used as a reference. Jome is not affiliated with GreatSchools and does not endorse or guarantee this information. Please reach out to schools directly to verify all information and enrollment eligibility. Data provided by GreatSchools.org © 2025
Places of interest
Getting around
1 nearby routes: 1 bus, 0 rail, 0 otherAir quality
Noise level
A Soundscore™ rating is a number between 50 (very loud) and 100 (very quiet) that tells you how loud a location is due to environmental noise.
Financials
Nearby communities in Centennial
Homes in Centennial by Lennar
Recently added communities in this area
Other Builders in Centennial, CO
Nearby sold homes
New homes in nearby cities
More New Homes in Centennial, CO
- Jome
- New homes search
- Colorado
- Denver Metropolitan Area
- Arapahoe County
- Centennial
- Vermilion Creek
- Vermilion Creek: The Skyline
- 16781 E Kettle Ave, Centennial, CO 80016






























































