







Book your tour. Save an average of $18,473. We'll handle the rest.
We collect exclusive builder offers, book your tours, and support you from start to housewarming.
- Confirmed tours
- Get matched & compare top deals
- Expert help, no pressure
- No added fees
Estimated value based on Jome data, T&C apply
















- 4 bd
- 3.5 ba
- 2,356 sqft
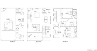
Boulevard plan in Vermilion Creek by Lennar
Visit the community to experience this floor plan
Why tour with Jome?
- No pressure toursTour at your own pace with no sales pressure
- Expert guidanceGet insights from our home buying experts
- Exclusive accessSee homes and deals not available elsewhere
Jome is featured in
Plan description
May also be listed on the Lennar website
Information last verified by Jome: Yesterday at 10:49 AM (February 16, 2026)
Plan details
- Name:
- Boulevard
- Property status:
- Floor plan
- Collection:
- Vermilion Creek: The Skyline
- Size:
- 2,356 sqft
- Stories:
- 3+
- Beds:
- 4
- Baths:
- 3.5
- Garage spaces:
- 2
Plan features & finishes
- Garage/Parking:
- GarageAttached Garage
- Interior Features:
- Walk-In ClosetFoyerPantry
- Laundry facilities:
- Utility/Laundry Room
- Property amenities:
- BalconyPorch
- Rooms:
- Great RoomKitchenNookPowder RoomFamily RoomOpen Concept FloorplanPrimary Bedroom Upstairs

Get a consultation with our New Homes Expert
- See how your home builds wealth
- Plan your home-buying roadmap
- Discover hidden gems
See the full plan layout
Download the floor plan PDF with room dimensions and home design details.

Instant download, no cost

Community details
Vermilion Creek
by Lennar, Centennial, CO
- 14 homes
- 18 plans
- 1,099 - 2,581 sqft
View Vermilion Creek details
Want to know more about what's around here?
The Boulevard floor plan is part of Vermilion Creek, a new home community by Lennar, located in Centennial, CO. Visit the Vermilion Creek community page for full neighborhood insights, including nearby schools, shopping, walk & bike-scores, commuting, air quality & natural hazards.

Homes built from this plan
Available homes in Vermilion Creek
- Home at address 7816 S Cherokee Trl, Centennial, CO 80016

Horizon
Vermilion Creek: The Skyline
$642,950
- 4 bd
- 1.5 ba
- 2,270 sqft
7816 S Cherokee Trl, Centennial, CO 80016
- Home at address 7800 S Cherokee Trl, Centennial, CO 80016

Canyon
Vermilion Creek: The Skyline
$674,400
- 4 bd
- 1.5 ba
- 2,434 sqft
7800 S Cherokee Trl, Centennial, CO 80016
- Home at address 7780 S Cherokee Trl, Centennial, CO 80016

Overlook
Vermilion Creek: The Skyline
$688,050
- 4 bd
- 1.5 ba
- 2,581 sqft
7780 S Cherokee Trl, Centennial, CO 80016
- Home at address 7843 S Cherokee Trl, Centennial, CO 80016

Pinnacle
Vermilion Creek: The Pioneer
$748,350
- 4 bd
- 1.5 ba
- 2,379 sqft
7843 S Cherokee Trl, Centennial, CO 80016
More floor plans in Vermilion Creek

Considering this plan?
Our expert will guide your tour, in-person or virtual
Need more information?
Text or call (888) 488-9243
Financials
Estimated monthly payment
Let us help you find your dream home
How many bedrooms are you looking for?
Similar homes nearby
Recently added communities in this area
Nearby communities in Centennial
New homes in nearby cities
More New Homes in Centennial, CO
- Jome
- New homes search
- Colorado
- Denver Metropolitan Area
- Arapahoe County
- Centennial
- Vermilion Creek
- Vermilion Creek: The Skyline
- 7784 S Cherokee Trl, Centennial, CO 80016



































