














Book your tour. Save an average of $18,473. We'll handle the rest.
We collect exclusive builder offers, book your tours, and support you from start to housewarming.
- Confirmed tours
- Get matched & compare top deals
- Expert help, no pressure
- No added fees
Estimated value based on Jome data, T&C apply
























- 3 bd
- 2.5 ba
- 2,013 sqft
16328 Gaylord St, Thornton, CO 80602
Why tour with Jome?
- No pressure toursTour at your own pace with no sales pressure
- Expert guidanceGet insights from our home buying experts
- Exclusive accessSee homes and deals not available elsewhere
Jome is featured in
- Duplex
- Quick move-in
- $258.81/sqft
- $2,280/annual HOA
Home description
Basement for future customization and storage!
Open concept kitchen with granite countertops and white cabinets!
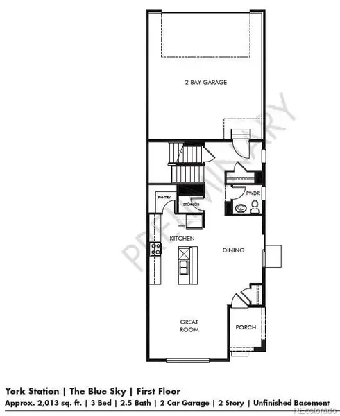
The Blue Sky floorplan offers approximately 2,013 sq. ft. of open-concept living with 3 bedrooms, 2.5 baths, and a 2-car garage. Enjoy a spacious loft for extra flexibility, and an upper-level laundry for added convenience—perfect for modern lifestyles.
The Meritage Home difference includes spray-foam insulation, advanced air filtration for year-round comfort and healthier air, and durable cementitious siding known for its strength, fire-resistance, and long-lasting performance. A Whirlpool appliance package, and full home blinds are also included for move-in convenience. Welcome home where every detail is built for comfort, efficiency, and LIFE. BUILT. BETTER.
York Station in Thornton offers a prime location near Denver with easy access to E-470, I-25, and Highway 7. Minutes from shopping, dining, and entertainment at Larkridge Shopping Center, Orchard Town Center, and Denver Premium Outlets. Quick drive times: 25 minutes to DIA, 30 to Downtown Denver, and 35 to Boulder. *This home qualifies for special incentives through builder preferred lender for a limited time. Terms and conditions apply. See sales counselor for details!
Kerrie A. Young (Independent), MLS REC1948604
May also be listed on the Meritage Homes website
Information last verified by Jome: Today at 4:01 AM (February 17, 2026)
Home highlights
Restored prairie ecosystem near Denver with mountain views, bison herds, and miles of peaceful nature trails.
Book your tour. Save an average of $18,473. We'll handle the rest.
We collect exclusive builder offers, book your tours, and support you from start to housewarming.
- Confirmed tours
- Get matched & compare top deals
- Expert help, no pressure
- No added fees
Estimated value based on Jome data, T&C apply
Home details
- Property status:
- Move-in ready
- Lot size (acres):
- 0.07
- Size:
- 2,013 sqft
- Stories:
- 2
- Beds:
- 3
- Baths:
- 2
- Half baths:
- 1
- Garage spaces:
- 2
- Facing direction:
- North
Construction details
- Builder Name:
- Meritage Homes
- Year Built:
- 2025
- Roof:
- Composition Roofing
Home features & finishes
- Appliances:
- Sprinkler System
- Construction Materials:
- CementConcreteFrameStone
- Cooling:
- Central Air
- Flooring:
- Vinyl FlooringCarpet FlooringTile Flooring
- Foundation Details:
- Slab
- Garage/Parking:
- GarageAttached Garage
- Home amenities:
- Green Construction
- Interior Features:
- Walk-In ClosetPantryWindow Coverings
- Kitchen:
- DishwasherMicrowave OvenRefrigeratorDisposalGranite countertopKitchen IslandKitchen Range
- Laundry facilities:
- DryerWasher
- Property amenities:
- BasementLandscapingYardSmart Home SystemPorch
- Rooms:
- KitchenOpen Concept Floorplan
- Security system:
- Smart Video DoorbellSmoke DetectorCarbon Monoxide Detector

Get a consultation with our New Homes Expert
- See how your home builds wealth
- Plan your home-buying roadmap
- Discover hidden gems
Utility information
- Heating:
- Heat Pump, Water Heater
- Utilities:
- Electricity Available, Internet Cable, Phone Available, Natural Gas Not Available, HVAC, Cable Available, High Speed Internet Access
About the builder - Meritage Homes

- 316communities on Jome
- 2,977homes on Jome
Neighborhood
Home address
Schools in School District 27J
- Grades KG-08Publicdiscovery magnet school2.6 mi4949 e. 147th ave.na
- Grades PK-08Privatefrassati catholic academy4.1 mi3951 cottonwood lakes blvdna
GreatSchools’ Summary Rating calculation is based on 4 of the school’s themed ratings, including test scores, student/academic progress, college readiness, and equity. This information should only be used as a reference. Jome is not affiliated with GreatSchools and does not endorse or guarantee this information. Please reach out to schools directly to verify all information and enrollment eligibility. Data provided by GreatSchools.org © 2025
Places of interest
Getting around
Air quality
Noise level
A Soundscore™ rating is a number between 50 (very loud) and 100 (very quiet) that tells you how loud a location is due to environmental noise.
Natural hazards risk
Provided by FEMA

Considering this home?
Our expert will guide your tour, in-person or virtual
Need more information?
Text or call (888) 488-9243
Financials
Estimated monthly payment
Let us help you find your dream home
How many bedrooms are you looking for?
Similar homes nearby
Recently added communities in this area
Nearby communities in Thornton
New homes in nearby cities
More New Homes in Thornton, CO
Kerrie A. Young (Independent), MLS REC1948604
The content relating to real estate for sale in this Web site comes in part from the Internet Data eXchange (“IDX”) program of METROLIST, INC., DBA RECOLORADO® Real estate listings held by brokers other than NewHomesMate LLC, DBA Jome are marked with the IDX Logo. This information is being provided for the consumers’ personal, non-commercial use and may not be used for any other purpose. All information subject to change and should be independently verified. This publication is designed to provide information with regard to the subject matter covered. It is displayed with the understanding that the publisher and authors are not engaged in rendering real estate, legal, accounting, tax, or other professional services and that the publisher and authors are not offering such advice in this publication. If real estate, legal, or other expert assistance is required, the services of a competent, professional person should be sought. The information contained in this publication is subject to change without notice. METROLIST, INC., DBA RECOLORADO MAKES NO WARRANTY OF ANY KIND WITH REGARD TO THIS MATERIAL, INCLUDING, BUT NOT LIMITED TO, THE IMPLIED WARRANTIES OF MERCHANTABILITY AND FITNESS FOR A PARTICULAR PURPOSE. METROLIST, INC., DBA RECOLORADO SHALL NOT BE LIABLE FOR ERRORS CONTAINED HEREIN OR FOR ANY DAMAGES IN CONNECTION WITH THE FURNISHING, PERFORMANCE, OR USE OF THIS MATERIAL. PUBLISHER'S NOTICE: All real estate advertised herein is subject to the Federal Fair Housing Act and the Colorado Fair Housing Act, which Acts make it illegal to make or publish any advertisement that indicates any preference, limitation, or discrimination based on race, color, religion, sex, handicap, familial status, or national origin. METROLIST, INC., DBA RECOLORADO will not knowingly accept any advertising for real estate that is in violation of the law. All persons are hereby informed that all dwellings advertised are available on an equal opportunity basis. © 2025 METROLIST, INC., DBA RECOLORADO® - All Rights Reserved. 6455 S. Yosemite St., Suite 500, Greenwood Village, CO 80111 USA. ALL RIGHTS RESERVED WORLDWIDE. No part of this publication may be reproduced, adapted, translated, stored in a retrieval system or transmitted in any form or by any means, electronic, mechanical, photocopying, recording, or otherwise, without the prior written permission of the publisher. The information contained herein including but not limited to all text, photographs, digital images, virtual tours, may be seeded and monitored for protection and tracking.
Read moreLast checked Feb 17, 4:00 am
- Jome
- New homes search
- Colorado
- Denver Metropolitan Area
- Adams County
- Thornton
- 16328 Gaylord St, Thornton, CO 80602




























