














Book your tour. Save an average of $18,473. We'll handle the rest.
We collect exclusive builder offers, book your tours, and support you from start to housewarming.
- Confirmed tours
- Get matched & compare top deals
- Expert help, no pressure
- No added fees
Estimated value based on Jome data, T&C apply























Why tour with Jome?
- No pressure toursTour at your own pace with no sales pressure
- Expert guidanceGet insights from our home buying experts
- Exclusive accessSee homes and deals not available elsewhere
Jome is featured in
- Single-Family
- Quick move-in
- $338.46/sqft
- $1,680/annual HOA
Home description
What's Special: South Facing Lot | Loft | Gourmet Kitchen
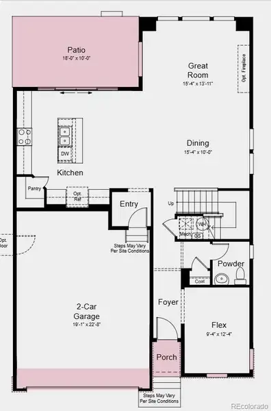
New Construction - Ready Now! Built by America's Most Trusted Homebuilder. Welcome to the Estes at 16857 W 92nd Drive in Trailstone. This popular two-story Estes home welcomes you with a bright and open entry, leading to a versatile main-floor flex room. The spacious kitchen is designed for both function and style, featuring a large pantry and eat-in island that flows seamlessly into the airy great room and dining area. Just off the great room, step outside to enjoy the Colorado sunshine with expansive covered outdoor living. Upstairs, the primary suite offers a peaceful retreat with abundant natural light, while a roomy loft, two additional bedrooms, two full baths, and a convenient laundry room complete the second floor. Thoughtfully designed with flexible spaces and a modern layout, this home is perfect for making lasting memories. Set within Trailstone—an exciting new community in Arvada just 15 miles from Boulder—this home offers incredible views of Downtown Denver, the Rocky Mountains, and Standley Lake, along with planned amenities like an outdoor pool and pickleball courts. Additional Highlights Include: 2' Garage Extension, Outdoor Living, 8' Doors on Main Level, 8' x 12' Sliding Glass Door. MLS#3003411
RE/MAX Professionals, MLS REC3003411
May also be listed on the Taylor Morrison website
Information last verified by Jome: Yesterday at 10:00 PM (March 6, 2026)
Book your tour. Save an average of $18,473. We'll handle the rest.
We collect exclusive builder offers, book your tours, and support you from start to housewarming.
- Confirmed tours
- Get matched & compare top deals
- Expert help, no pressure
- No added fees
Estimated value based on Jome data, T&C apply
Home details
- Property status:
- Move-in ready
- Lot size (acres):
- 0.12
- Size:
- 2,272 sqft
- Stories:
- 2
- Beds:
- 3
- Baths:
- 2
- Half baths:
- 1
- Garage spaces:
- 2
- Fence:
- Partial Fence
- Facing direction:
- South
Construction details
- Builder Name:
- Taylor Morrison
- Year Built:
- 2025
- Roof:
- Roof Gutter, Composition Roofing
Home features & finishes
- Appliances:
- Sprinkler System
- Construction Materials:
- Stone
- Cooling:
- Central Air
- Flooring:
- Laminate FlooringCarpet FlooringTile Flooring
- Foundation Details:
- Slab
- Garage/Parking:
- GarageAttached Garage
- Interior Features:
- Walk-In Closet
- Kitchen:
- Microwave OvenOvenDisposalConvection OvenQuartz countertopCooktop
- Laundry facilities:
- Laundry Facilities In Unit
- Pets:
- Pets AllowedCat(s) Only AllowedDog(s) Only Allowed
- Property amenities:
- Gas Log FireplaceLandscapingPatioYard
- Rooms:
- Open Concept Floorplan
- Security system:
- Smoke DetectorCarbon Monoxide Detector
Room details
Bedroom 1
Den
Great Room

Get a consultation with our New Homes Expert
- See how your home builds wealth
- Plan your home-buying roadmap
- Discover hidden gems
Utility information
- Heating:
- Water Heater
- Utilities:
- Electricity Available, Phone Available

Community details
Trailstone
by Taylor Morrison, Arvada, CO
- 42 homes
- 26 plans
- 1,221 - 3,886 sqft
View Trailstone details
More homes in Trailstone
- Home at address 17154 W 91St Ln, Arvada, CO 80007

Discovery
Trailstone Townhomes - The Westerly
$448,990
- 3 bd
- 2.5 ba
- 1,371 sqft
17154 W 91St Ln, Arvada, CO 80007
- Home at address 17132 W 91St Ln, Arvada, CO 80007

Discovery
Trailstone Townhomes - The Westerly
$498,990
- 3 bd
- 2.5 ba
- 1,371 sqft
17132 W 91St Ln, Arvada, CO 80007
- Home at address 17165 W 91St Ln, Arvada, CO 80007

Discovery
Trailstone Townhomes - The Westerly
$515,849
- 3 bd
- 2.5 ba
- 1,371 sqft
17165 W 91St Ln, Arvada, CO 80007
- Home at address 17114 W 91St Ln, Arvada, CO 80007

Frontier
Trailstone Townhomes - The Westerly
$532,299
- 3 bd
- 2.5 ba
- 1,420 sqft
17114 W 91St Ln, Arvada, CO 80007
- Home at address 17142 W 91St Ln, Arvada, CO 80007

Frontier
Trailstone Townhomes - The Westerly
$546,249
- 3 bd
- 2.5 ba
- 1,420 sqft
17142 W 91St Ln, Arvada, CO 80007
- Home at address 9034 Quartz Ct, Arvada, CO 80007

Independence
Trailstone Townhomes - The Westerly
$585,499
- 3 bd
- 2.5 ba
- 1,613 sqft
9034 Quartz Ct, Arvada, CO 80007
Floor plans in Trailstone
About the builder - Taylor Morrison

- 320communities on Jome
- 1,469homes on Jome
Neighborhood
Home address
Schools in Jefferson County School District R-1
GreatSchools’ Summary Rating calculation is based on 4 of the school’s themed ratings, including test scores, student/academic progress, college readiness, and equity. This information should only be used as a reference. Jome is not affiliated with GreatSchools and does not endorse or guarantee this information. Please reach out to schools directly to verify all information and enrollment eligibility. Data provided by GreatSchools.org © 2025
Places of interest
Getting around
Air quality
Noise level
A Soundscore™ rating is a number between 50 (very loud) and 100 (very quiet) that tells you how loud a location is due to environmental noise.

Considering this home?
Our expert will guide your tour, in-person or virtual
Need more information?
Text or call (888) 488-9243
Financials
Estimated monthly payment
Let us help you find your dream home
How many bedrooms are you looking for?
Similar homes nearby
Recently added communities in this area
Nearby communities in Arvada
New homes in nearby cities
More New Homes in Arvada, CO
RE/MAX Professionals, MLS REC3003411
The content relating to real estate for sale in this Web site comes in part from the Internet Data eXchange (“IDX”) program of METROLIST, INC., DBA RECOLORADO® Real estate listings held by brokers other than NewHomesMate LLC, DBA Jome are marked with the IDX Logo. This information is being provided for the consumers’ personal, non-commercial use and may not be used for any other purpose. All information subject to change and should be independently verified. This publication is designed to provide information with regard to the subject matter covered. It is displayed with the understanding that the publisher and authors are not engaged in rendering real estate, legal, accounting, tax, or other professional services and that the publisher and authors are not offering such advice in this publication. If real estate, legal, or other expert assistance is required, the services of a competent, professional person should be sought. The information contained in this publication is subject to change without notice. METROLIST, INC., DBA RECOLORADO MAKES NO WARRANTY OF ANY KIND WITH REGARD TO THIS MATERIAL, INCLUDING, BUT NOT LIMITED TO, THE IMPLIED WARRANTIES OF MERCHANTABILITY AND FITNESS FOR A PARTICULAR PURPOSE. METROLIST, INC., DBA RECOLORADO SHALL NOT BE LIABLE FOR ERRORS CONTAINED HEREIN OR FOR ANY DAMAGES IN CONNECTION WITH THE FURNISHING, PERFORMANCE, OR USE OF THIS MATERIAL. PUBLISHER'S NOTICE: All real estate advertised herein is subject to the Federal Fair Housing Act and the Colorado Fair Housing Act, which Acts make it illegal to make or publish any advertisement that indicates any preference, limitation, or discrimination based on race, color, religion, sex, handicap, familial status, or national origin. METROLIST, INC., DBA RECOLORADO will not knowingly accept any advertising for real estate that is in violation of the law. All persons are hereby informed that all dwellings advertised are available on an equal opportunity basis. © 2025 METROLIST, INC., DBA RECOLORADO® - All Rights Reserved. 6455 S. Yosemite St., Suite 500, Greenwood Village, CO 80111 USA. ALL RIGHTS RESERVED WORLDWIDE. No part of this publication may be reproduced, adapted, translated, stored in a retrieval system or transmitted in any form or by any means, electronic, mechanical, photocopying, recording, or otherwise, without the prior written permission of the publisher. The information contained herein including but not limited to all text, photographs, digital images, virtual tours, may be seeded and monitored for protection and tracking.
Read moreLast checked Mar 6, 10:00 pm
- Jome
- New homes search
- Colorado
- Denver Metropolitan Area
- Jefferson County
- Arvada
- Trailstone
- 16857 W 92Nd Lp, Arvada, CO 80007

































