





















- 3 bd
- 1.5 ba
- 1,803 sqft
6830 Juniper Dr, Thornton, CO 80602
- Townhouse
- $277.26/sqft
- $2,280/annual HOA
- 0.07-acre lot
New Homes for Sale Near 6830 Juniper Dr, Thornton, CO 80602
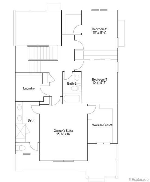
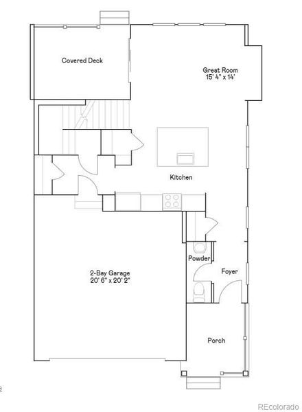
About this Home
Contact builder today about Special Financing for this home - terms and conditions applyExperience the perfect balance of style and comfort in this beautifully crafted paired home. The spacious two-story design features an open-concept main level where the kitchen flows seamlessly into the Great Room and extends to a covered deck—ideal for entertaining or enjoying quiet moments outdoors. Upstairs, three well-designed bedrooms include a private owner’s suite tailored for rest and retreat. A conveniently located laundry room adds everyday ease, while elevated finishes such as quartz countertops and luxury vinyl plank flooring bring a touch of sophistication throughout. The unfinished basement offers endless potential—whether you envision a home gym, creative studio, or media room. Located in a vibrant community, you’ll enjoy easy access to upscale shopping and dining at Denver Premium Outlets, along with abundant recreational opportunities at Trail Winds Recreation Center. This home is designed to grow with you, offering lasting comfort, modern connections, and a lifestyle you’ll truly love. Estimated completion date is November 2025.
Coldwell Banker Realty 56, MLS REC2224189
May also be listed on the Lennar website
Information last verified by Jome: Thursday at 10:00 PM (November 27, 2025)
Home details
- Property status:
- Sold
- Lot size (acres):
- 0.07
- Size:
- 1,803 sqft
- Stories:
- 2
- Beds:
- 3
- Baths:
- 1
- Half baths:
- 1
- Garage spaces:
- 2
Construction details
- Builder Name:
- Lennar
- Year Built:
- 2024
- Roof:
- Composition Roofing
Home features & finishes
- Construction Materials:
- FrameStone
- Cooling:
- Central Air
- Flooring:
- Vinyl FlooringCarpet Flooring
- Foundation Details:
- Slab
- Garage/Parking:
- GarageAttached Garage
- Interior Features:
- Walk-In ClosetFoyer
- Kitchen:
- DishwasherMicrowave OvenOvenRefrigeratorDisposalQuartz countertopKitchen Island
- Property amenities:
- BasementDeckPorch
- Rooms:
- KitchenOpen Concept Floorplan
- Security system:
- Smoke DetectorCarbon Monoxide Detector
Utility information
- Heating:
- Forced Air Heating
About the builder - Lennar

- 1,754communities on Jome
- 6,511homes on Jome
Neighborhood
Home address
Schools in School District 27J
- Grades KG-08Publicdiscovery magnet school1.2 mi4949 e. 147th ave.na
- Grades PK-08Privatefrassati catholic academy3.0 mi3951 cottonwood lakes blvdna
GreatSchools’ Summary Rating calculation is based on 4 of the school’s themed ratings, including test scores, student/academic progress, college readiness, and equity. This information should only be used as a reference. Jome is not affiliated with GreatSchools and does not endorse or guarantee this information. Please reach out to schools directly to verify all information and enrollment eligibility. Data provided by GreatSchools.org © 2025
Places of interest
Getting around
Air quality
Noise level
A Soundscore™ rating is a number between 50 (very loud) and 100 (very quiet) that tells you how loud a location is due to environmental noise.
Natural hazards risk
Provided by FEMA
Financials
Nearby communities in Thornton
Recently added communities in this area
Other Builders in Thornton, CO
Nearby sold homes
New homes in nearby cities
More New Homes in Thornton, CO
Coldwell Banker Realty 56, MLS REC2224189
The content relating to real estate for sale in this Web site comes in part from the Internet Data eXchange (“IDX”) program of METROLIST, INC., DBA RECOLORADO® Real estate listings held by brokers other than NewHomesMate LLC, DBA Jome are marked with the IDX Logo. This information is being provided for the consumers’ personal, non-commercial use and may not be used for any other purpose. All information subject to change and should be independently verified. This publication is designed to provide information with regard to the subject matter covered. It is displayed with the understanding that the publisher and authors are not engaged in rendering real estate, legal, accounting, tax, or other professional services and that the publisher and authors are not offering such advice in this publication. If real estate, legal, or other expert assistance is required, the services of a competent, professional person should be sought. The information contained in this publication is subject to change without notice. METROLIST, INC., DBA RECOLORADO MAKES NO WARRANTY OF ANY KIND WITH REGARD TO THIS MATERIAL, INCLUDING, BUT NOT LIMITED TO, THE IMPLIED WARRANTIES OF MERCHANTABILITY AND FITNESS FOR A PARTICULAR PURPOSE. METROLIST, INC., DBA RECOLORADO SHALL NOT BE LIABLE FOR ERRORS CONTAINED HEREIN OR FOR ANY DAMAGES IN CONNECTION WITH THE FURNISHING, PERFORMANCE, OR USE OF THIS MATERIAL. PUBLISHER'S NOTICE: All real estate advertised herein is subject to the Federal Fair Housing Act and the Colorado Fair Housing Act, which Acts make it illegal to make or publish any advertisement that indicates any preference, limitation, or discrimination based on race, color, religion, sex, handicap, familial status, or national origin. METROLIST, INC., DBA RECOLORADO will not knowingly accept any advertising for real estate that is in violation of the law. All persons are hereby informed that all dwellings advertised are available on an equal opportunity basis. © 2025 METROLIST, INC., DBA RECOLORADO® - All Rights Reserved. 6455 S. Yosemite St., Suite 500, Greenwood Village, CO 80111 USA. ALL RIGHTS RESERVED WORLDWIDE. No part of this publication may be reproduced, adapted, translated, stored in a retrieval system or transmitted in any form or by any means, electronic, mechanical, photocopying, recording, or otherwise, without the prior written permission of the publisher. The information contained herein including but not limited to all text, photographs, digital images, virtual tours, may be seeded and monitored for protection and tracking.
Read moreLast checked Feb 17, 4:00 am
- Jome
- New homes search
- Colorado
- Denver Metropolitan Area
- Adams County
- Thornton
- 6830 Juniper Dr, Thornton, CO 80602















































