














Book your tour. Save an average of $18,473. We'll handle the rest.
We collect exclusive builder offers, book your tours, and support you from start to housewarming.
- Confirmed tours
- Get matched & compare top deals
- Expert help, no pressure
- No added fees
Estimated value based on Jome data, T&C apply







































Why tour with Jome?
- No pressure toursTour at your own pace with no sales pressure
- Expert guidanceGet insights from our home buying experts
- Exclusive accessSee homes and deals not available elsewhere
Jome is featured in
- Single-Family
- Under construction
- $265.05/sqft
- $2,880/annual HOA
Builder deals available
Any loan type
$40,000 est. value- $20,000 flex cash
- $20,000 closing costs help
Deals may change and are not guaranteed. Some deals apply to specific homes or plans. Not a financing offer. Eligibility varies by lender. Please verify details.
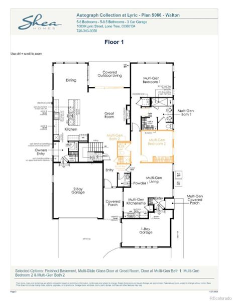
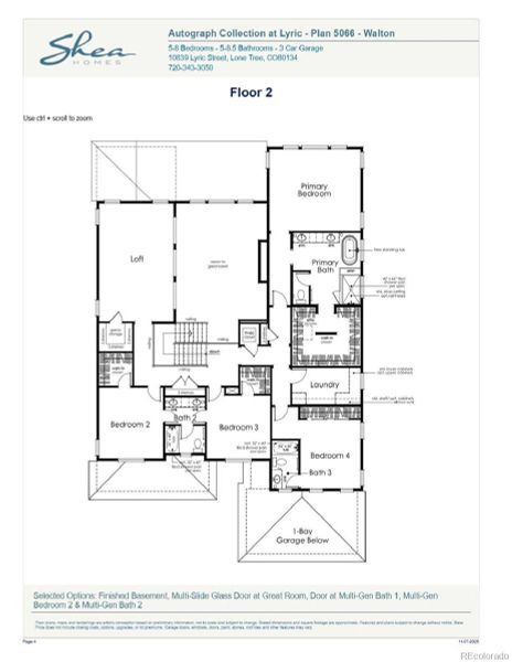
Home description
Gorgeous two story multi-gen home with walk out basement in Lyric at Ridgegate . The main home has 5 bedrooms 5.5 baths, loft, finished basement, primo II fireplace with full height tile surround, horizontal iron railing, covered deck, and 3 bay split garage., The multi-gen has a private entrance, 2 bedrooms, 1.5 baths, kitchenette, laundry closet, and living room. Design finishes include Tri West engineered wood flooring in Grand Pacific/Parasail, AZT/DT engineered stone counter tops in Citrine, Silestone counter tops in Charcoal Soapstone Polished, and Yorktowne Shaw cabinets in Irish Creme and Cappuccino. Please contact a community representative for complete details.
RE/MAX Professionals, MLS REC6629968
May also be listed on the Shea Homes website
Information last verified by Jome: Yesterday at 10:02 AM (February 27, 2026)
Home highlights
Secure, family-friendly base with top-rated Aurora schools and easy access to Denver's amenities.
Book your tour. Save an average of $18,473. We'll handle the rest.
We collect exclusive builder offers, book your tours, and support you from start to housewarming.
- Confirmed tours
- Get matched & compare top deals
- Expert help, no pressure
- No added fees
Estimated value based on Jome data, T&C apply
Home details
- Property status:
- Under construction
- Lot size (acres):
- 0.17
- Size:
- 5,976 sqft
- Stories:
- 2
- Beds:
- 7
- Baths:
- 4
- Half baths:
- 1
- Garage spaces:
- 3
- Fence:
- No Fence
- Facing direction:
- Southeast
Construction details
- Builder Name:
- Shea Homes
- Year Built:
- 2025
- Roof:
- Composition Roofing
Home features & finishes
- Construction Materials:
- FrameStoneWood Siding
- Cooling:
- Central Air
- Flooring:
- Wood FlooringCarpet FlooringTile Flooring
- Foundation Details:
- Slab
- Garage/Parking:
- GarageAttached Garage
- Interior Features:
- Ceiling-HighWalk-In ClosetPantryJack and Jill Bathroom
- Kitchen:
- DishwasherMicrowave OvenOvenRefrigeratorDisposalKitchen IslandKitchen Range
- Laundry facilities:
- Laundry Facilities In UnitDryerWasher
- Pets:
- Pets AllowedCat(s) Only AllowedDog(s) Only Allowed
- Property amenities:
- BasementDeckFireplaceYardSmart Home SystemPorch
- Rooms:
- KitchenFamily RoomOpen Concept Floorplan
- Security system:
- Smart Video DoorbellSmoke DetectorCarbon Monoxide Detector

Get a consultation with our New Homes Expert
- See how your home builds wealth
- Plan your home-buying roadmap
- Discover hidden gems
Utility information
- Heating:
- Forced Air Heating
- Utilities:
- Electricity Available, Natural Gas Available, Internet Cable, Phone Available, Cable Available, High Speed Internet Access

Community details
Autograph at Lyric
by Shea Homes, Lone Tree, CO
- 2 homes
- 6 plans
- 2,601 - 5,976 sqft
View Autograph at Lyric details
More homes in Autograph at Lyric
- Home at address 11293 Tenor Trl, Lone Tree, CO 80134

5063 Madison Elevation B - Low Slope Contemporary
$1,551,710
- 6 bd
- 5.5 ba
- 5,150 sqft
11293 Tenor Trl, Lone Tree, CO 80134
Floor plans in Autograph at Lyric
About the builder - Shea Homes
Neighborhood
Home address
Schools in Douglas County School District RE-1
GreatSchools’ Summary Rating calculation is based on 4 of the school’s themed ratings, including test scores, student/academic progress, college readiness, and equity. This information should only be used as a reference. Jome is not affiliated with GreatSchools and does not endorse or guarantee this information. Please reach out to schools directly to verify all information and enrollment eligibility. Data provided by GreatSchools.org © 2025
Places of interest
Getting around
Air quality
Noise level
A Soundscore™ rating is a number between 50 (very loud) and 100 (very quiet) that tells you how loud a location is due to environmental noise.

Considering this home?
Our expert will guide your tour, in-person or virtual
Need more information?
Text or call (888) 488-9243
Financials
Estimated monthly payment
Let us help you find your dream home
How many bedrooms are you looking for?
Similar homes nearby
Recently added communities in this area
Nearby communities in Lone Tree
New homes in nearby cities
More New Homes in Lone Tree, CO
RE/MAX Professionals, MLS REC6629968
The content relating to real estate for sale in this Web site comes in part from the Internet Data eXchange (“IDX”) program of METROLIST, INC., DBA RECOLORADO® Real estate listings held by brokers other than NewHomesMate LLC, DBA Jome are marked with the IDX Logo. This information is being provided for the consumers’ personal, non-commercial use and may not be used for any other purpose. All information subject to change and should be independently verified. This publication is designed to provide information with regard to the subject matter covered. It is displayed with the understanding that the publisher and authors are not engaged in rendering real estate, legal, accounting, tax, or other professional services and that the publisher and authors are not offering such advice in this publication. If real estate, legal, or other expert assistance is required, the services of a competent, professional person should be sought. The information contained in this publication is subject to change without notice. METROLIST, INC., DBA RECOLORADO MAKES NO WARRANTY OF ANY KIND WITH REGARD TO THIS MATERIAL, INCLUDING, BUT NOT LIMITED TO, THE IMPLIED WARRANTIES OF MERCHANTABILITY AND FITNESS FOR A PARTICULAR PURPOSE. METROLIST, INC., DBA RECOLORADO SHALL NOT BE LIABLE FOR ERRORS CONTAINED HEREIN OR FOR ANY DAMAGES IN CONNECTION WITH THE FURNISHING, PERFORMANCE, OR USE OF THIS MATERIAL. PUBLISHER'S NOTICE: All real estate advertised herein is subject to the Federal Fair Housing Act and the Colorado Fair Housing Act, which Acts make it illegal to make or publish any advertisement that indicates any preference, limitation, or discrimination based on race, color, religion, sex, handicap, familial status, or national origin. METROLIST, INC., DBA RECOLORADO will not knowingly accept any advertising for real estate that is in violation of the law. All persons are hereby informed that all dwellings advertised are available on an equal opportunity basis. © 2025 METROLIST, INC., DBA RECOLORADO® - All Rights Reserved. 6455 S. Yosemite St., Suite 500, Greenwood Village, CO 80111 USA. ALL RIGHTS RESERVED WORLDWIDE. No part of this publication may be reproduced, adapted, translated, stored in a retrieval system or transmitted in any form or by any means, electronic, mechanical, photocopying, recording, or otherwise, without the prior written permission of the publisher. The information contained herein including but not limited to all text, photographs, digital images, virtual tours, may be seeded and monitored for protection and tracking.
Read moreLast checked Feb 27, 10:00 pm
- Jome
- New homes search
- Colorado
- Denver Metropolitan Area
- Douglas County
- Lone Tree
- Autograph at Lyric
- 11283 Tenor Trl, Lone Tree, CO 80134
































