













Book your tour. Save an average of $18,473. We'll handle the rest.
- Confirmed tours
- Get matched & compare top deals
- Expert help, no pressure
- No added fees
Estimated value based on Jome data, T&C apply

























- 2 bd
- 2.5 ba
- 1,326 sqft
2225 Santini Trl, Unit C, Littleton, CO 80129
Why tour with Jome?
- No pressure toursTour at your own pace with no sales pressure
- Expert guidanceGet insights from our home buying experts
- Exclusive accessSee homes and deals not available elsewhere
Jome is featured in
- Townhouse
- Quick move-in
- $350.68/sqft
- $50/monthly HOA
Home description
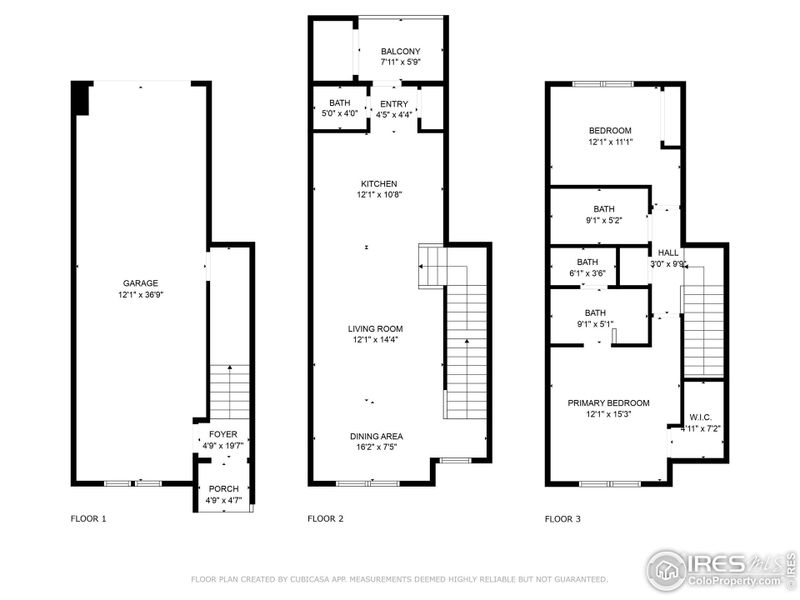
Watch the Video Tout here: https://youtu.be/JBdxBRqkEZw?si=xxVUwjb5SLuehZTC! Welcome to this bright and beautifully maintained 2-bedroom, 3-bathroom Townhome built in 2022. Featuring an open-concept main level, this home is filled with natural light and offers a clean, modern interior perfect for comfortable living and entertaining. Hang out on the balcony right off the kitchen to enjoy a morning cup of coffee or tea, or unwind with a book in the evening as the sunsets to the west. Recently added gorgeous plantation shutters elevate the space and add privacy as needed. Upstairs, you'll find a spacious primary bedroom along with a versatile second room-ideal as a guest room, home office, or additional bedroom. The oversized washer and dryer are included and can be found in the hallway in between the bedrooms for easy access. Ceiling fans have been added to the bedrooms to assist with heating/cooling and provide additional lighting. The attached 2-car tandem garage includes an extra large storage closet for all your gear and seasonal items. The roof was upgraded to a class 4 resistant roof which will provide superior harsh weather protection and can help lower your home owners insurance cost. Located just minutes from Santa Fe Drive, I-25, and C-470, commuting is a breeze whether you're heading to work or to the mountains. Outdoor enthusiasts will love the proximity to Chatfield Reservoir, scenic bike trails, and countless opportunities for hiking, biking, and dog walking. The neighborhood itself features walking paths, outdoor workout stations, and even an on-site dog park-everything you need for an active Colorado lifestyle. Shopping is just minutes away at the Aspen Grove shopping center, which features plenty of shops, restaurants and a Drafthouse style movie theater. Just a few minutes away you will find downtown Littleton which features all kinds of local shops and hosts local events. Don't miss the chance to make this newer, low-maintenance Townhome your own!
Nookhaven Homes, MLS 1048441
Information last verified by Jome: Today at 5:23 AM (January 28, 2026)
Home highlights
Beloved Denver park with lakes, trails, gardens, and a lively neighborhood vibe near historic homes.
Book your tour. Save an average of $18,473. We'll handle the rest.
We collect exclusive builder offers, book your tours, and support you from start to housewarming.
- Confirmed tours
- Get matched & compare top deals
- Expert help, no pressure
- No added fees
Estimated value based on Jome data, T&C apply
Home details
- Property status:
- Move-in ready
- Lot size (acres):
- 0.02
- Size:
- 1,326 sqft
- Stories:
- 3+
- Beds:
- 2
- Baths:
- 2
- Half baths:
- 1
- Garage spaces:
- 2
Construction details
- Roof:
- Composition Roofing
Home features & finishes
- Construction Materials:
- Vinyl SidingFrame
- Cooling:
- Central Air
- Flooring:
- Carpet FlooringHardwood Flooring
- Garage/Parking:
- GarageAttached Garage
- Interior Features:
- Walk-In ClosetPantryWindow Coverings
- Kitchen:
- DishwasherMicrowave OvenRefrigeratorDisposalGas CooktopGas OvenKitchen Range
- Laundry facilities:
- Laundry Facilities In UnitLaundry Facilities On Upper LevelDryerWasher
- Rooms:
- KitchenDining RoomOpen Concept FloorplanSeparate Living and Dining
Room details
Master Bedroom
Kitchen

Get a consultation with our New Homes Expert
- See how your home builds wealth
- Plan your home-buying roadmap
- Discover hidden gems
Utility information
- Heating:
- Forced Air Heating
- Utilities:
- Electricity Available, Natural Gas Available, Cable Available, High Speed Internet Access
Community amenities
- Park Nearby
- Walking, Jogging, Hike Or Bike Trails
Neighborhood
Home address
Schools in Douglas County School District RE-1
GreatSchools’ Summary Rating calculation is based on 4 of the school’s themed ratings, including test scores, student/academic progress, college readiness, and equity. This information should only be used as a reference. Jome is not affiliated with GreatSchools and does not endorse or guarantee this information. Please reach out to schools directly to verify all information and enrollment eligibility. Data provided by GreatSchools.org © 2025
Places of interest
Getting around
Air quality
Natural hazards risk
Provided by FEMA

Considering this home?
Our expert will guide your tour, in-person or virtual
Need more information?
Text or call (888) 486-2818
Financials
Estimated monthly payment
Let us help you find your dream home
How many bedrooms are you looking for?
Similar homes nearby
Recently added communities in this area
Nearby communities in Littleton
New homes in nearby cities
More New Homes in Littleton, CO
Nookhaven Homes, MLS 1048441
Information source: Information and Real Estate Services, LLC. Provided for limited non-commercial use only under IRES Rules © 2025 IRES, LLC. Listing information is provided exclusively for consumers' personal, non-commercial use and may not be used for any purpose other than to identify prospective properties consumers may be interested in purchasing. Information deemed reliable but not guaranteed by the MLS. Compensation information displayed on listing details is only applicable to other participants and subscribers of the source MLS.
Read moreLast checked Jan 28, 5:20 am
- Jome
- New homes search
- Colorado
- Denver Metropolitan Area
- Douglas County
- Littleton
- 2225 Santini Trl, Unit C, Littleton, CO 80129






















