







































- 3 bd
- 2.5 ba
- 2,315 sqft
1193 Highview Ln, Erie, CO 80516
- Single-Family
- $237.58/sqft
- $1,200/annual HOA
- East facing
New Homes for Sale Near 1193 Highview Ln, Erie, CO 80516
About this Home
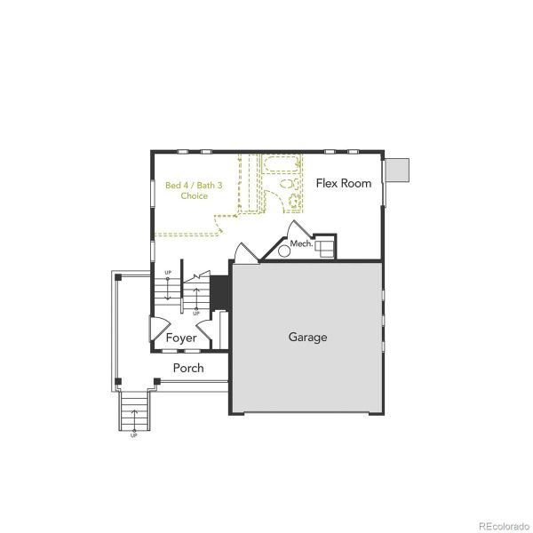
Discover The Volante Floorplan: Modern style low maintenance living at its absolute finest. Single family home with open floor plan concept, 3 bedrooms, eat in style kitchen, large decl off dining room, 2 car attached garage, full fencing, front landscaping, paver drive, cul de sac living. This home is darling with an abundance of natural lighting. Close to newest elementary school, community pool, park, trails, hiking, and more.
Keller Williams DTC, MLS REC2753817
May also be listed on the Oakwood Homes Co website
Information last verified by Jome: Saturday at 4:00 PM (January 24, 2026)
Home details
- Property status:
- Sold
- Lot size (acres):
- 0.07
- Size:
- 2,315 sqft
- Stories:
- 3+
- Beds:
- 3
- Baths:
- 2
- Half baths:
- 1
- Garage spaces:
- 2
- Facing direction:
- East
Construction details
- Builder Name:
- Oakwood Homes Co
- Year Built:
- 2025
- Roof:
- Roof Gutter, Composition Roofing
Home features & finishes
- Appliances:
- Sprinkler System
- Construction Materials:
- CementStone
- Cooling:
- Central Air
- Flooring:
- Vinyl FlooringCarpet FlooringTile Flooring
- Foundation Details:
- Concrete Perimeter
- Garage/Parking:
- GarageAttached Garage
- Home amenities:
- Green Construction
- Interior Features:
- Walk-In ClosetFoyerPantry
- Kitchen:
- DishwasherMicrowave OvenOvenDisposalSelf Cleaning OvenKitchen Island
- Laundry facilities:
- Laundry Facilities In Unit
- Property amenities:
- Cul-de-sacBasementBalconyDeckFireplaceYardSmart Home SystemPorch
- Rooms:
- KitchenOpen Concept Floorplan
- Security system:
- Smoke DetectorCarbon Monoxide Detector
Room details
Kitchen
Bedroom 1
Bonus Room
Utility information
- Heating:
- Water Heater, Forced Air Heating
- Utilities:
- Electricity Available, Natural Gas Available, Internet Cable, HVAC, Cable Available

Community details
Erie Highlands
by Oakwood Homes Co, Erie, CO
- 1 home
- 4 plans
- 1,438 - 2,239 sqft
View Erie Highlands details
More homes in Erie Highlands
- Home at address 1065 Sugarloaf Ln, Erie, CO 80516

$639,900
Move-in ready- 4 bd
- 1.5 ba
- 2,056 sqft
1065 Sugarloaf Ln, Erie, CO 80516
Floor plans in Erie Highlands
About the builder - Oakwood Homes Co
Neighborhood
Home address
Schools in St. Vrain Valley School District RE 1J
GreatSchools’ Summary Rating calculation is based on 4 of the school’s themed ratings, including test scores, student/academic progress, college readiness, and equity. This information should only be used as a reference. Jome is not affiliated with GreatSchools and does not endorse or guarantee this information. Please reach out to schools directly to verify all information and enrollment eligibility. Data provided by GreatSchools.org © 2025
Places of interest
Getting around
Air quality
Noise level
A Soundscore™ rating is a number between 50 (very loud) and 100 (very quiet) that tells you how loud a location is due to environmental noise.
Financials
Nearby communities in Erie
Homes in Erie by Oakwood Homes Co
Recently added communities in this area
Other Builders in Erie, CO
Nearby sold homes
New homes in nearby cities
More New Homes in Erie, CO
Keller Williams DTC, MLS REC2753817
The content relating to real estate for sale in this Web site comes in part from the Internet Data eXchange (“IDX”) program of METROLIST, INC., DBA RECOLORADO® Real estate listings held by brokers other than NewHomesMate LLC, DBA Jome are marked with the IDX Logo. This information is being provided for the consumers’ personal, non-commercial use and may not be used for any other purpose. All information subject to change and should be independently verified. This publication is designed to provide information with regard to the subject matter covered. It is displayed with the understanding that the publisher and authors are not engaged in rendering real estate, legal, accounting, tax, or other professional services and that the publisher and authors are not offering such advice in this publication. If real estate, legal, or other expert assistance is required, the services of a competent, professional person should be sought. The information contained in this publication is subject to change without notice. METROLIST, INC., DBA RECOLORADO MAKES NO WARRANTY OF ANY KIND WITH REGARD TO THIS MATERIAL, INCLUDING, BUT NOT LIMITED TO, THE IMPLIED WARRANTIES OF MERCHANTABILITY AND FITNESS FOR A PARTICULAR PURPOSE. METROLIST, INC., DBA RECOLORADO SHALL NOT BE LIABLE FOR ERRORS CONTAINED HEREIN OR FOR ANY DAMAGES IN CONNECTION WITH THE FURNISHING, PERFORMANCE, OR USE OF THIS MATERIAL. PUBLISHER'S NOTICE: All real estate advertised herein is subject to the Federal Fair Housing Act and the Colorado Fair Housing Act, which Acts make it illegal to make or publish any advertisement that indicates any preference, limitation, or discrimination based on race, color, religion, sex, handicap, familial status, or national origin. METROLIST, INC., DBA RECOLORADO will not knowingly accept any advertising for real estate that is in violation of the law. All persons are hereby informed that all dwellings advertised are available on an equal opportunity basis. © 2025 METROLIST, INC., DBA RECOLORADO® - All Rights Reserved. 6455 S. Yosemite St., Suite 500, Greenwood Village, CO 80111 USA. ALL RIGHTS RESERVED WORLDWIDE. No part of this publication may be reproduced, adapted, translated, stored in a retrieval system or transmitted in any form or by any means, electronic, mechanical, photocopying, recording, or otherwise, without the prior written permission of the publisher. The information contained herein including but not limited to all text, photographs, digital images, virtual tours, may be seeded and monitored for protection and tracking.
Read moreLast checked Feb 17, 4:00 am
- Jome
- New homes search
- Colorado
- Denver Metropolitan Area
- Weld County
- Erie
- Erie Highlands
- 1193 Highview Ln, Erie, CO 80516






























































