











- 2 bd
- 2.5 ba
- 1,468 sqft
13560 E 111Th Pl, Commerce City, CO 80022
- Single-Family
- $275.2/sqft
- No HOA fee
- 302 days on Jome
New Homes for Sale Near 13560 E 111Th Pl, Commerce City, CO 80022
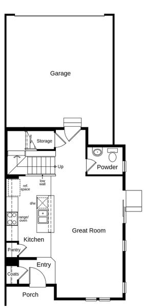
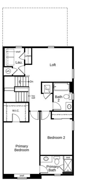
About this Home
Discover the ideal balance of comfort and functionality in this modern, two-story home, which showcases an open floor plan with spacious great room. Whip up culinary delights in the well-appointed kitchen, which boasts an island. Upstairs, a versatile loft is perfect for a home office or playroom. Enjoy the convenience of a dedicated laundry room. Unwind in the primary bedroom, which features a walk-in closet and luxurious connecting bath that offers a shower with seat. A crawl space provides additional room for storage.
May also be listed on the KB Home website
Information last verified by Jome: Tuesday at 1:09 AM (February 17, 2026)
Home details
- Property status:
- Sold
- Size:
- 1,468 sqft
- Stories:
- 2
- Beds:
- 2
- Baths:
- 2.5
- Garage spaces:
- 2
Construction details
- Builder Name:
- KB Home
Home features & finishes
- Garage/Parking:
- Garage

Community details
Turnberry Villas
by KB Home, Commerce City, CO
- 1 home
- 4 plans
- 1,468 - 1,941 sqft
View Turnberry Villas details
More homes in Turnberry Villas
- Home at address 13499 E 111Th Ave, Commerce City, CO 80022

$444,990
Under construction- 3 bd
- 1.5 ba
- 1,672 sqft
13499 E 111Th Ave, Commerce City, CO 80022
Floor plans in Turnberry Villas
About the builder - KB Home
Neighborhood
Home address
- City:
- Commerce City
- County:
- Adams
- Zip Code:
- 80022
Schools in School District 27J
GreatSchools’ Summary Rating calculation is based on 4 of the school’s themed ratings, including test scores, student/academic progress, college readiness, and equity. This information should only be used as a reference. Jome is not affiliated with GreatSchools and does not endorse or guarantee this information. Please reach out to schools directly to verify all information and enrollment eligibility. Data provided by GreatSchools.org © 2025
Places of interest
Getting around
Air quality
Noise level
A Soundscore™ rating is a number between 50 (very loud) and 100 (very quiet) that tells you how loud a location is due to environmental noise.
Financials
Nearby communities in Commerce City
Homes in Commerce City by KB Home
Recently added communities in this area
Other Builders in Commerce City, CO
Nearby sold homes
New homes in nearby cities
More New Homes in Commerce City, CO
- Jome
- New homes search
- Colorado
- Denver Metropolitan Area
- Adams County
- Commerce City
- Turnberry Villas
- 13560 E 111Th Pl, Commerce City, CO 80022



































































