



- 3 bd
- 2.5 ba
- 1,839 sqft
5456 N Elk St, Aurora, CO 80016
- Single-Family
- $290.86/sqft
- $100/monthly HOA
- West facing
New Homes for Sale Near 5456 N Elk St, Aurora, CO 80016
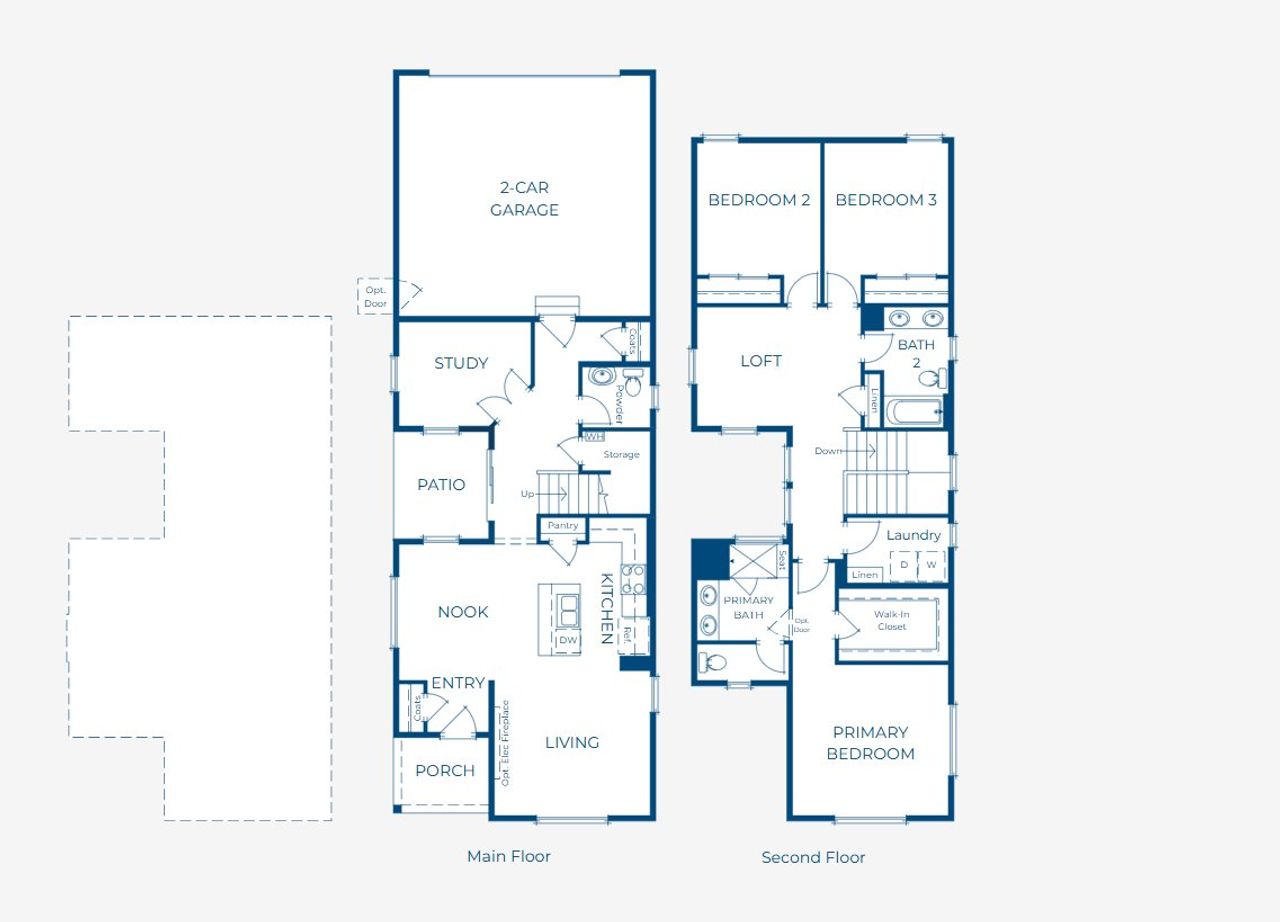
About this Home
This thoughtfully designed home features an open-concept living and dining area, a spacious kitchen with a central island and upgraded gas stove, and a main-floor study. Upstairs, the private primary suite includes a luxurious bath and walk-in closet, while a versatile loft offers flexible living space. An open side patio provides a great spot for outdoor enjoyment, and the nice-sized yard offers additional space for relaxing or entertaining. This home also includes an oversized laundry room and a convenient crawlspace foundation.
Main floor study
Versatile loft
Covered side patio
May also be listed on the Risewell Homes website
Information last verified by Jome: Sunday at 4:52 PM (November 30, 2025)
Home details
- Property status:
- Sold
- Size:
- 1,839 sqft
- Stories:
- 2
- Beds:
- 3
- Baths:
- 2.5
- Garage spaces:
- 2
- Facing direction:
- West
Construction details
- Builder Name:
- Risewell Homes
- Completion Date:
- October, 2025
Home features & finishes
- Garage/Parking:
- GarageAttached Garage
- Interior Features:
- Walk-In ClosetFoyerPantryLoft
- Kitchen:
- Kitchen Island
- Laundry facilities:
- Utility/Laundry Room
- Property amenities:
- PatioPorch
- Rooms:
- KitchenNookPowder RoomOffice/StudyLiving RoomPrimary Bedroom Upstairs

Community details
The Casitas Collection at Windler at Windler
by Risewell Homes, Aurora, CO
- 4 homes
- 5 plans
- 1,506 - 2,189 sqft
View The Casitas Collection at Windler details
More homes in The Casitas Collection at Windler
Floor plans in The Casitas Collection at Windler
About the builder - Risewell Homes
Neighborhood
Home address
Schools in Adams-Arapahoe School District 28J
- Grades PK-08Publicaurora highlands k-81.4 mi24405 e 42nd avena
GreatSchools’ Summary Rating calculation is based on 4 of the school’s themed ratings, including test scores, student/academic progress, college readiness, and equity. This information should only be used as a reference. Jome is not affiliated with GreatSchools and does not endorse or guarantee this information. Please reach out to schools directly to verify all information and enrollment eligibility. Data provided by GreatSchools.org © 2025
Places of interest
Getting around
Air quality
Noise level
A Soundscore™ rating is a number between 50 (very loud) and 100 (very quiet) that tells you how loud a location is due to environmental noise.
Natural hazards risk
Climate hazards can impact homes and communities, with risks varying by location. These scores reflect the potential impact of natural disasters and climate-related risks on Adams County
Provided by FEMA
Financials
Nearby communities in Aurora
Homes in Aurora Neighborhoods
Homes in Aurora by Risewell Homes
Recently added communities in this area
Other Builders in Aurora, CO
Nearby sold homes
New homes in nearby cities
More New Homes in Aurora, CO
- Jome
- New homes search
- Colorado
- Denver Metropolitan Area
- Adams County
- Aurora
- The Casitas Collection at Windler
- 5456 N Elk St, Aurora, CO 80016




































































