



Book your tour. Save an average of $18,473. We'll handle the rest.
We collect exclusive builder offers, book your tours, and support you from start to housewarming.
- Confirmed tours
- Get matched & compare top deals
- Expert help, no pressure
- No added fees
Estimated value based on Jome data, T&C apply
- 3 bd
- 2 ba
- 1,770 sqft
5423 N Eaton Park Wy, Aurora, CO 80019
Why tour with Jome?
- No pressure toursTour at your own pace with no sales pressure
- Expert guidanceGet insights from our home buying experts
- Exclusive accessSee homes and deals not available elsewhere
Jome is featured in
- Townhouse
- Under construction
- $245.76/sqft
- $1,800/annual HOA
Home description
Available Now!
BEAUTIFUL MODERN TOWNHOME BESIDE THE COMMUNITY PARK!
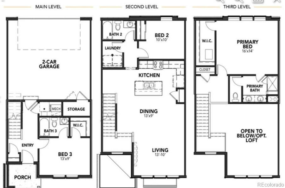
Welcome to 5423 N Eaton Pkwy, Aurora, CO! This stylish 3-story townhome offers 1,770 sq. ft. of thoughtfully designed living space with 3 bedrooms and 3 baths—including a unique layout that provides a bedroom on every floor. The main level includes an inviting bedroom and full bath, perfect for guests, a home office, or multigenerational living. The second floor opens to a modern kitchen with a center island, dining area, and spacious living room designed for entertaining. On the third floor, you’ll find the private primary suite with a walk-in closet and en-suite bath, plus another secondary bedroom and a versatile loft—ideal for a media room, office, or flex space. Additional features include a 2-car garage, energy-efficient construction, and contemporary finishes throughout. Located in Aurora’s sought-after Windler neighborhood, this home offers easy access to parks, trails, shopping, dining, and commuter routes. Offered at $512,350, 5423 N Eaton Pkwy delivers style, flexibility, and comfort in one beautifully designed package.
Keller Williams DTC, MLS REC3173789
May also be listed on the DRB Homes website
Information last verified by Jome: Today at 10:12 AM (April 3, 2026)
Book your tour. Save an average of $18,473. We'll handle the rest.
We collect exclusive builder offers, book your tours, and support you from start to housewarming.
- Confirmed tours
- Get matched & compare top deals
- Expert help, no pressure
- No added fees
Estimated value based on Jome data, T&C apply
Home details
- Property status:
- Under construction
- Size:
- 1,770 sqft
- Stories:
- 3+
- Beds:
- 3
- Baths:
- 2
- Garage spaces:
- 2
Construction details
- Builder Name:
- DRB Homes
- Completion Date:
- January, 2026
- Year Built:
- 2025
Home features & finishes
- Construction Materials:
- Frame
- Cooling:
- Central Air
- Garage/Parking:
- GarageAttached Garage
- Interior Features:
- Walk-In ClosetPantryStorage
- Laundry facilities:
- Utility/Laundry Room
- Property amenities:
- Basement
- Rooms:
- KitchenEntry HallMudroomDining RoomLiving RoomOpen Concept FloorplanPrimary Bedroom Upstairs
Room details
Kitchen
Dining Room
Bedroom 1

Get a consultation with our New Homes Expert
- See how your home builds wealth
- Plan your home-buying roadmap
- Discover hidden gems
Utility information
- Heating:
- Forced Air Heating

Community details
Windler Townhomes at Windler
by DRB Homes, Aurora, CO
- 3 homes
- 4 plans
- 1,770 - 2,165 sqft
View Windler Townhomes details
More homes in Windler Townhomes
- Home at address 5433 N Eaton Park Wy, Aurora, CO 80019

Townhome Series - Harvard
$458,000
- 3 bd
- 1.5 ba
- 1,983 sqft
5433 N Eaton Park Wy, Aurora, CO 80019
- Home at address 5421 N Eaton Park Wy, Aurora, CO 80019

Lincoln
$480,000
- 3 bd
- 2.5 ba
- 2,165 sqft
5421 N Eaton Park Wy, Aurora, CO 80019
Floor plans in Windler Townhomes
About the builder - DRB Homes
Neighborhood
Home address
Schools in Adams-Arapahoe School District 28J
- Grades PK-08Publicaurora highlands k-81.3 mi24405 e 42nd avena
GreatSchools’ Summary Rating calculation is based on 4 of the school’s themed ratings, including test scores, student/academic progress, college readiness, and equity. This information should only be used as a reference. Jome is not affiliated with GreatSchools and does not endorse or guarantee this information. Please reach out to schools directly to verify all information and enrollment eligibility. Data provided by GreatSchools.org © 2025
Places of interest
Getting around
Air quality
Noise level
A Soundscore™ rating is a number between 50 (very loud) and 100 (very quiet) that tells you how loud a location is due to environmental noise.

Considering this home?
Our expert will guide your tour, in-person or virtual
Need more information?
Text or call (888) 545-5198
Financials
Estimated monthly payment
Let us help you find your dream home
How many bedrooms are you looking for?
Similar homes nearby
Recently added communities in this area
Nearby communities in Aurora
New homes in nearby cities
More New Homes in Aurora, CO
Keller Williams DTC, MLS REC3173789
The content relating to real estate for sale in this Web site comes in part from the Internet Data eXchange (“IDX”) program of METROLIST, INC., DBA RECOLORADO® Real estate listings held by brokers other than NewHomesMate LLC, DBA Jome are marked with the IDX Logo. This information is being provided for the consumers’ personal, non-commercial use and may not be used for any other purpose. All information subject to change and should be independently verified. This publication is designed to provide information with regard to the subject matter covered. It is displayed with the understanding that the publisher and authors are not engaged in rendering real estate, legal, accounting, tax, or other professional services and that the publisher and authors are not offering such advice in this publication. If real estate, legal, or other expert assistance is required, the services of a competent, professional person should be sought. The information contained in this publication is subject to change without notice. METROLIST, INC., DBA RECOLORADO MAKES NO WARRANTY OF ANY KIND WITH REGARD TO THIS MATERIAL, INCLUDING, BUT NOT LIMITED TO, THE IMPLIED WARRANTIES OF MERCHANTABILITY AND FITNESS FOR A PARTICULAR PURPOSE. METROLIST, INC., DBA RECOLORADO SHALL NOT BE LIABLE FOR ERRORS CONTAINED HEREIN OR FOR ANY DAMAGES IN CONNECTION WITH THE FURNISHING, PERFORMANCE, OR USE OF THIS MATERIAL. PUBLISHER'S NOTICE: All real estate advertised herein is subject to the Federal Fair Housing Act and the Colorado Fair Housing Act, which Acts make it illegal to make or publish any advertisement that indicates any preference, limitation, or discrimination based on race, color, religion, sex, handicap, familial status, or national origin. METROLIST, INC., DBA RECOLORADO will not knowingly accept any advertising for real estate that is in violation of the law. All persons are hereby informed that all dwellings advertised are available on an equal opportunity basis. © 2025 METROLIST, INC., DBA RECOLORADO® - All Rights Reserved. 6455 S. Yosemite St., Suite 500, Greenwood Village, CO 80111 USA. ALL RIGHTS RESERVED WORLDWIDE. No part of this publication may be reproduced, adapted, translated, stored in a retrieval system or transmitted in any form or by any means, electronic, mechanical, photocopying, recording, or otherwise, without the prior written permission of the publisher. The information contained herein including but not limited to all text, photographs, digital images, virtual tours, may be seeded and monitored for protection and tracking.
Read moreLast checked Apr 3, 10:00 am
- Jome
- New homes search
- Colorado
- Denver Metropolitan Area
- Adams County
- Aurora
- Windler Townhomes
- 5423 N Eaton Park Wy, Aurora, CO 80019





























