














Book your tour. Save an average of $18,473. We'll handle the rest.
- Confirmed tours
- Get matched & compare top deals
- Expert help, no pressure
- No added fees
Estimated value based on Jome data, T&C apply





































- 2 bd
- 2.5 ba
- 1,761 sqft
29012 N Juventino Wy, Rio Verde, AZ 85263
Why tour with Jome?
- No pressure toursTour at your own pace with no sales pressure
- Expert guidanceGet insights from our home buying experts
- Exclusive accessSee homes and deals not available elsewhere
Jome is featured in
- Single-Family
- Quick move-in
- $383.3/sqft
- $1,521/quarterly HOA
Home description
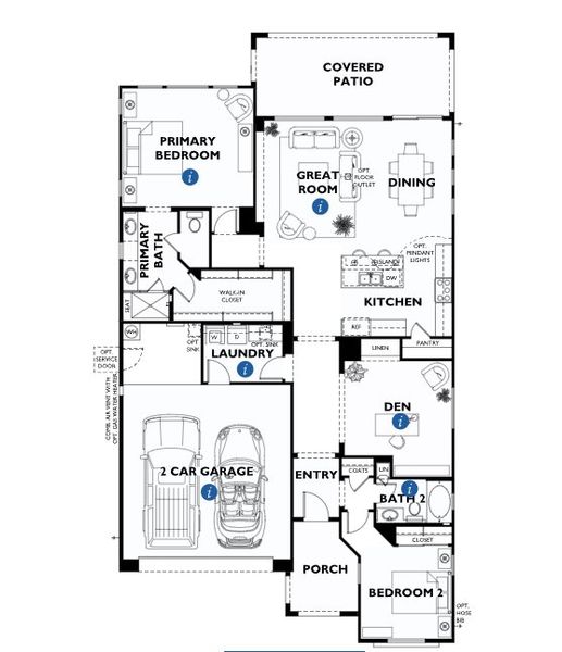
This brand-new Acacia floorplan home in Trilogy at Verde River features 2 bedrooms, a den, and 2.5 baths. The chef-inspired kitchen offers quartz countertops, stained cabinets, and soft-close drawers. The kitchen opens to a bright great room highlighted by a 15' multi-slide door. The primary suite includes a bay window, a tiled shower, dual sinks, and a walk-in closet. With upgraded flooring, a full landscape package, and a large covered patio surrounded by Sonoran plants, this home offers effortless desert living.
The amenities at Verde River are World Class with Tom Lehman inspired eighteen-hole Golf course, tennis courts, pickleball courts, and bocce ball, heated lap pool and Resort style swimming pool, hot tub, Afterburn fitness center, Helen's demonstration Kitchen for cooking classes and a 7.5 acre dog park. The community center has casual poolside dining at Eddy's Diner and gourmet dining at award-winning Needle Rock Kitchen and Tap, Alvea Spa with full-service Salon and Spa amenities, Art Loft and events center. Trilogy at Verde River is adjacent to the Tonto National Forest and is situated in the middle of miles and miles of hiking and biking trails.
Keller Williams Arizona Realty, MLS 6951846
May also be listed on the Shea Homes website
Information last verified by Jome: Today at 11:38 AM (January 15, 2026)
Home highlights
Iconic Phoenix peak with challenging hikes and panoramic views, surrounded by upscale desert neighborhoods.
Book your tour. Save an average of $18,473. We'll handle the rest.
We collect exclusive builder offers, book your tours, and support you from start to housewarming.
- Confirmed tours
- Get matched & compare top deals
- Expert help, no pressure
- No added fees
Estimated value based on Jome data, T&C apply
Home details
- Property status:
- Move-in ready
- Lot size (acres):
- 0.15
- Size:
- 1,761 sqft
- Stories:
- 1
- Beds:
- 2
- Baths:
- 2
- Half baths:
- 1
- Garage spaces:
- 2
- Fence:
- No Fence
- Facing direction:
- East
Construction details
- Builder Name:
- Shea Homes
- Year Built:
- 2024
- Roof:
- Tile Roofing
Home features & finishes
- Construction Materials:
- StuccoWood Frame
- Cooling:
- Central Air
- Garage/Parking:
- Door OpenerGarageAttached Garage
- Interior Features:
- Walk-In ClosetPantryBreakfast BarBay WindowsDouble Vanity
- Kitchen:
- Quartz countertopKitchen Island
- Laundry facilities:
- Utility/Laundry Room
- Property amenities:
- CabinetsPatioPorch
- Rooms:
- Great RoomPrimary Bedroom On MainKitchenDen RoomDining RoomBreakfast AreaOpen Concept FloorplanPrimary Bedroom Downstairs

Get a consultation with our New Homes Expert
- See how your home builds wealth
- Plan your home-buying roadmap
- Discover hidden gems
Utility information
- Utilities:
- High Speed Internet Access

Community details
Trilogy® at Verde River™
by Shea Homes, Rio Verde, AZ
- 7 homes
- 12 plans
- 1,342 - 3,249 sqft
View Trilogy® at Verde River™ details
Community amenities
- Fitness Center/Exercise Area
- Golf Course
- Tennis Courts
- Spa Zone
- Security Guard/Safety Office
- Walking, Jogging, Hike Or Bike Trails
- Pickleball Court
More homes in Trilogy® at Verde River™
- Home at address 18242 E Coronado Cave Ct, Rio Verde, AZ 85263

Home
$529,000
- 2 bd
- 2 ba
- 1,542 sqft
18242 E Coronado Cave Ct, Rio Verde, AZ 85263
- Home at address 18230 E Coronado Cave Ct, Rio Verde, AZ 85263

Evia Elevation A
$537,990
- 2 bd
- 2 ba
- 1,552 sqft
18230 E Coronado Cave Ct, Rio Verde, AZ 85263
- Home at address 18324 E Spring Valley Ct, Rio Verde, AZ 85263

Home
$724,000
- 2 bd
- 2 ba
- 1,542 sqft
18324 E Spring Valley Ct, Rio Verde, AZ 85263
- Home at address 18202 E Paria Canyon Dr, Rio Verde, AZ 85263

Vela Elevation H
$1,159,990
- 3 bd
- 3 ba
- 2,888 sqft
18202 E Paria Canyon Dr, Rio Verde, AZ 85263
- Home at address 17908 E Oak Creek Canyon Ln, Rio Verde, AZ 85263

Home
$1,289,000
- 2 bd
- 2.5 ba
- 2,080 sqft
17908 E Oak Creek Canyon Ln, Rio Verde, AZ 85263
- Home at address 28715 N Marshall Gulch Ct, Rio Verde, AZ 85263

Home
$1,800,000
- 2 bd
- 2.5 ba
- 2,619 sqft
28715 N Marshall Gulch Ct, Rio Verde, AZ 85263
Floor plans in Trilogy® at Verde River™
About the builder - Shea Homes
Neighborhood
Home address
Schools in School District Not Defined
- Grades PK-KGPrivatehman'shawa day school7.8 mi18748 e ba'honnah rdna
- Grades KG-12Privateaz aspire academy10.5 mi14062 n territory trlna
- Grades PK-KGPrivatenew covenant lutheran church children's ministry c13.9 mi15152 north frank lloyd wright boulevardna
- Grades PK-KGPrivatescottsdale child care and learning center14.4 mi13831 n 94th stna
GreatSchools’ Summary Rating calculation is based on 4 of the school’s themed ratings, including test scores, student/academic progress, college readiness, and equity. This information should only be used as a reference. Jome is not affiliated with GreatSchools and does not endorse or guarantee this information. Please reach out to schools directly to verify all information and enrollment eligibility. Data provided by GreatSchools.org © 2025
Places of interest
Getting around
Air quality

Considering this home?
Our expert will guide your tour, in-person or virtual
Need more information?
Text or call (888) 486-2818
Financials
Estimated monthly payment
Let us help you find your dream home
How many bedrooms are you looking for?
Similar homes nearby
Recently added communities in this area
Nearby communities in Rio Verde
New homes in nearby cities
More New Homes in Rio Verde, AZ
Keller Williams Arizona Realty, MLS 6951846
All information should be verified by the recipient and none is guaranteed as accurate by ARMLS
Read moreLast checked Jan 15, 5:00 pm
- Jome
- New homes search
- Arizona
- Phoenix Metropolitan Area
- Maricopa County
- Rio Verde
- Trilogy® at Verde River™
- 29012 N Juventino Wy, Rio Verde, AZ 85263




































