




Book your tour. Save an average of $18,473. We'll handle the rest.
- Confirmed tours
- Get matched & compare top deals
- Expert help, no pressure
- No added fees
Estimated value based on Jome data, T&C apply
- 4 bd
- 2.5 ba
- 2,125 sqft
13565 N 158Th Ave, Surprise, AZ 85379
Why tour with Jome?
- No pressure toursTour at your own pace with no sales pressure
- Expert guidanceGet insights from our home buying experts
- Exclusive accessSee homes and deals not available elsewhere
Jome is featured in
- Single-Family
- Quick move-in
- $240.75/sqft
- $180/monthly HOA
Home description
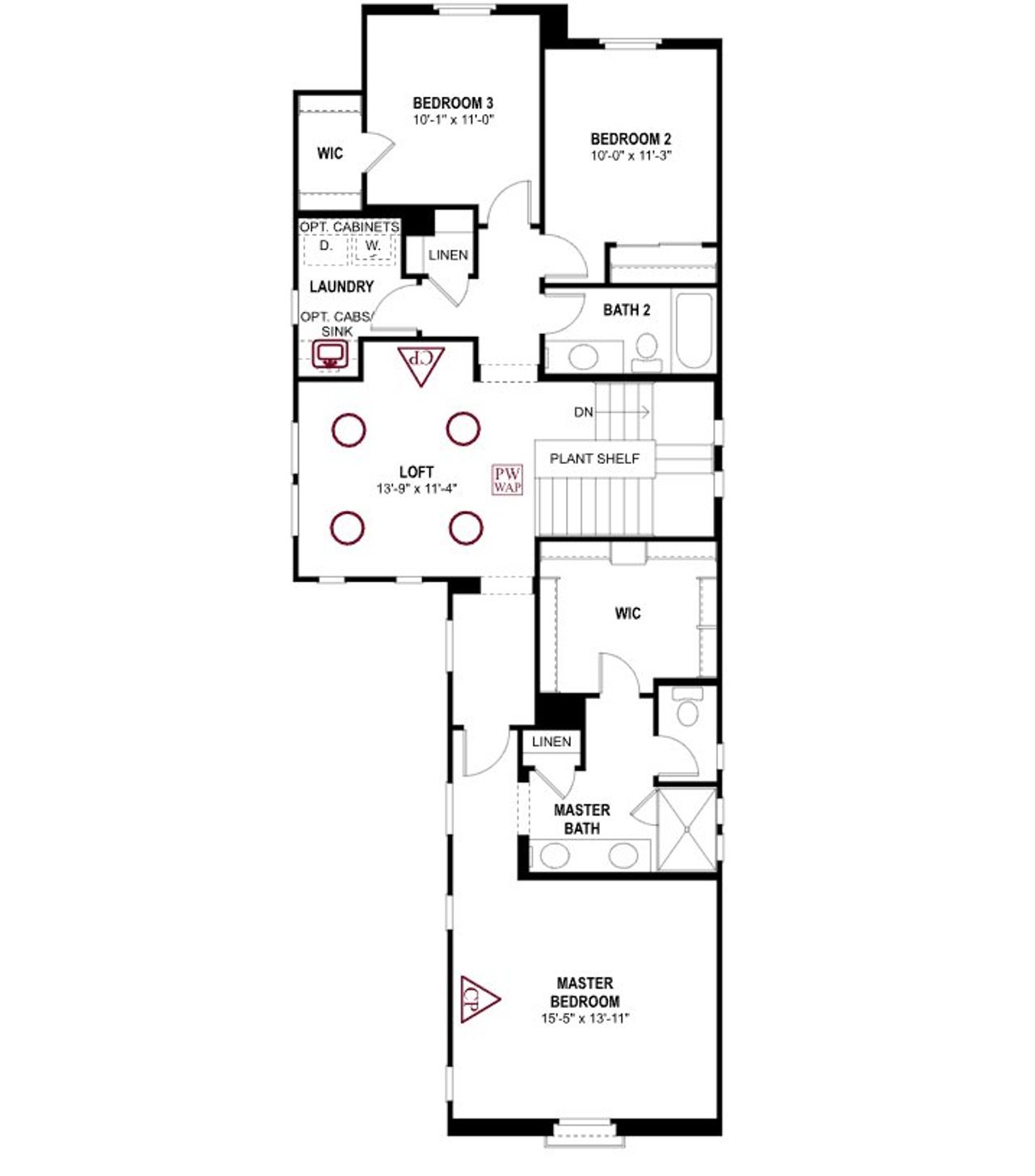
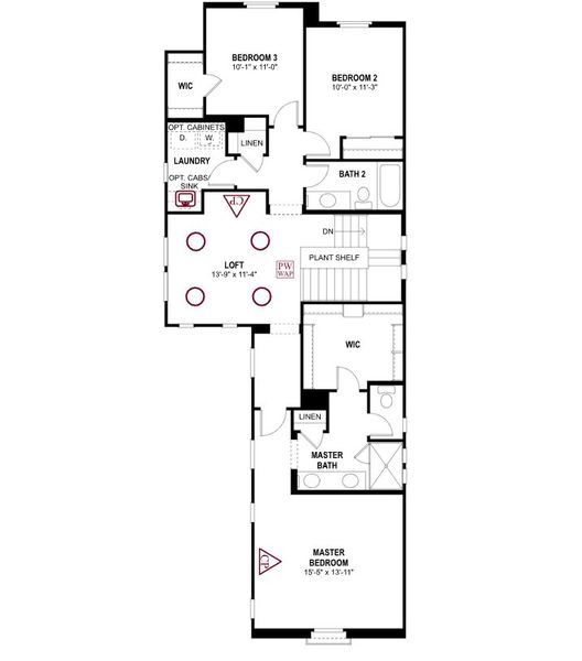
The Fremont Peak is a two story, 2125 square feet with 4 bedrooms, 3 baths, a side courtyard, loft and a two car alley loaded garage with extra storage. It can be optioned to include 5 bedrooms. The HERS rating is 41.
May also be listed on the Fulton Homes website
Information last verified by Jome: Tuesday at 2:42 PM (December 30, 2025)
Book your tour. Save an average of $18,473. We'll handle the rest.
We collect exclusive builder offers, book your tours, and support you from start to housewarming.
- Confirmed tours
- Get matched & compare top deals
- Expert help, no pressure
- No added fees
Estimated value based on Jome data, T&C apply
Home details
- Property status:
- Move-in ready
- Size:
- 2,125 sqft
- Stories:
- 2
- Beds:
- 4
- Baths:
- 2.5
- Garage spaces:
- 2
- Facing direction:
- West
Construction details
- Builder Name:
- Fulton Homes
Home features & finishes
- Garage/Parking:
- GarageAttached Garage
- Interior Features:
- Walk-In ClosetFoyerPantryStorageStaircasesLoft
- Kitchen:
- Kitchen Island
- Laundry facilities:
- Utility/Laundry Room
- Property amenities:
- CourtyardPorch
- Rooms:
- KitchenDining RoomFamily RoomOpen Concept FloorplanPrimary Bedroom Upstairs

Get a consultation with our New Homes Expert
- See how your home builds wealth
- Plan your home-buying roadmap
- Discover hidden gems

Community details
San Francisco at Prasada
by Fulton Homes, Surprise, AZ
- 10 homes
- 5 plans
- 1,602 - 2,275 sqft
View San Francisco at Prasada details
More homes in San Francisco at Prasada
- Home at address 13464 N 157Th Ln, Surprise, AZ 85379

Fremont Peak
$478,900
- 4 bd
- 3 ba
- 2,125 sqft
13464 N 157Th Ln, Surprise, AZ 85379
- Home at address 13472 N 157Th Ln, Surprise, AZ 85379

Humphrey's Peak
$496,900
- 4 bd
- 2.5 ba
- 2,275 sqft
13472 N 157Th Ln, Surprise, AZ 85379
- Home at address 13480 N 157Th Ln, Surprise, AZ 85379

Fremont Peak
$501,455
- 4 bd
- 2.5 ba
- 2,125 sqft
13480 N 157Th Ln, Surprise, AZ 85379
- Home at address 13537 N 158Th Ave, Surprise, AZ 85379

Fremont Peak
$505,225
- 4 bd
- 3 ba
- 2,125 sqft
13537 N 158Th Ave, Surprise, AZ 85379
Floor plans in San Francisco at Prasada
About the builder - Fulton Homes
Neighborhood
Home address
Schools in Dysart Unified District
GreatSchools’ Summary Rating calculation is based on 4 of the school’s themed ratings, including test scores, student/academic progress, college readiness, and equity. This information should only be used as a reference. Jome is not affiliated with GreatSchools and does not endorse or guarantee this information. Please reach out to schools directly to verify all information and enrollment eligibility. Data provided by GreatSchools.org © 2025
Places of interest
Getting around
Air quality

Considering this home?
Our expert will guide your tour, in-person or virtual
Need more information?
Text or call (888) 486-2818
Financials
Estimated monthly payment
Let us help you find your dream home
How many bedrooms are you looking for?
Similar homes nearby
Recently added communities in this area
Nearby communities in Surprise
New homes in nearby cities
More New Homes in Surprise, AZ
- Jome
- New homes search
- Arizona
- Phoenix Metropolitan Area
- Maricopa County
- Surprise
- San Francisco at Prasada
- 13565 N 158Th Ave, Surprise, AZ 85379




























