











- 3 bd
- 2.5 ba
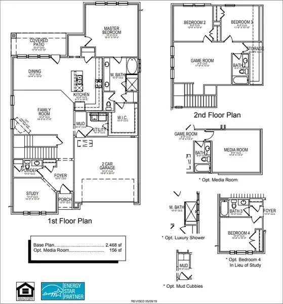
- 2,468 sqft
Bella II plan in Woodbridge by Megatel Homes
New Homes for Sale Near 2703 Woodland Ct, Wylie, TX 75098
About this Plan
Our Bella II plan is a two-story, 2,468 square foot home featuring three bedrooms, two and a half bathrooms, and a two-car garage. This home is available with A and B elevations.
May also be listed on the Megatel Homes website
Information last verified by Jome: Yesterday at 10:02 AM (December 7, 2025)
Plan details
- Name:
- Bella II
- Property status:
- Sold
- Size:
- 2,468 sqft
- Stories:
- 2
- Beds:
- 3
- Baths:
- 2
- Half baths:
- 1
- Garage spaces:
- 2
Plan features & finishes
- Garage/Parking:
- GarageAttached Garage
- Interior Features:
- Walk-In Closet
- Laundry facilities:
- Utility/Laundry Room
- Property amenities:
- PatioPorch
- Rooms:
- Game RoomOffice/StudyMudroomDining RoomFamily RoomPrimary Bedroom Downstairs

Community details
Woodbridge at Woodbridge
by Megatel Homes, Wylie, TX
View Woodbridge details
Want to know more about what's around here?
The Bella II floor plan is part of Woodbridge, a new home community by Megatel Homes, located in Wylie, TX. Visit the Woodbridge community page for full neighborhood insights, including nearby schools, shopping, walk & bike-scores, commuting, air quality & natural hazards.

Financials
Nearby communities in Wylie
Recently added communities in this area
Other Builders in Wylie, TX
Nearby sold homes
New homes in nearby cities
More New Homes in Wylie, TX
- Home
- New homes
- Texas
- Dallas-Fort Worth Area
- Collin County
- Wylie
- Woodbridge
- 2703 Woodland Ct, Wylie, TX 75098



















































