









Book your tour. Save an average of $18,473. We'll handle the rest.
We collect exclusive builder offers, book your tours, and support you from start to housewarming.
- Confirmed tours
- Get matched & compare top deals
- Expert help, no pressure
- No added fees
Estimated value based on Jome data, T&C apply


















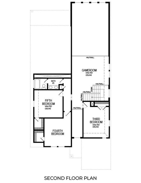
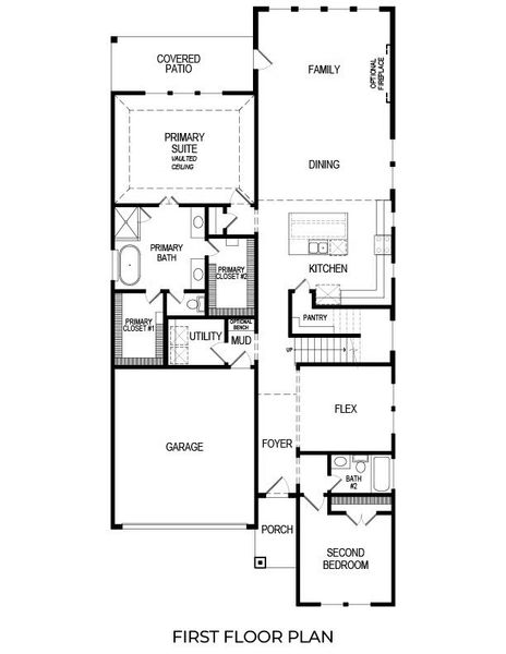
- 5 bd
- 3 ba
- 3,105 sqft
Roosevelt Select F plan in The Meadows by First Texas Homes
Visit the community to experience this floor plan
Why tour with Jome?
- No pressure toursTour at your own pace with no sales pressure
- Expert guidanceGet insights from our home buying experts
- Exclusive accessSee homes and deals not available elsewhere
Jome is featured in
Plan description
May also be listed on the First Texas Homes website
Information last verified by Jome: Today at 3:01 AM (April 15, 2026)
Plan details
- Name:
- Roosevelt Select F
- Property type:
- Floor plan
- Community:
- The Meadows
- Builder:
- First Texas Homes
- Size:
- 3,105 sqft
- Stories:
- 2
- Beds:
- 5
- Baths:
- 3
- Garage spaces:
- 2
Plan features & finishes
- Garage/Parking:
- GarageAttached Garage
- Interior Features:
- Ceiling-VaultedWalk-In ClosetFoyerPantry
- Kitchen:
- Kitchen Island
- Laundry facilities:
- Utility/Laundry Room
- Property amenities:
- PatioPorch
- Rooms:
- Flex RoomPrimary Bedroom On MainKitchenGame RoomDining RoomFamily RoomOpen Concept FloorplanPrimary Bedroom Downstairs
- Upgrade Options:
- Media RoomDouble DoorsFireplace

Get a consultation with our New Homes Expert
- See how your home builds wealth
- Plan your home-buying roadmap
- Discover hidden gems
See the full plan layout
Download the floor plan PDF with room dimensions and home design details.

Instant download, no cost

Community details
The Meadows
by First Texas Homes, Denton, TX
- 9 homes
- 17 plans
- 1,365 - 3,105 sqft
View The Meadows details
Want to know more about what's around here?
The Roosevelt Select F floor plan is part of The Meadows, a new home community by First Texas Homes, located in Krum, TX. Visit the The Meadows community page for full neighborhood insights, including nearby schools, shopping, walk & bike-scores, commuting, air quality & natural hazards.

Homes built from this plan
Available homes in The Meadows
- Home at address 7313 Autumn Hill Dr, Denton, TX 76249

Harrison Select F
$392,550
- 5 bd
- 3.5 ba
- 2,660 sqft
7313 Autumn Hill Dr, Denton, TX 76249
- Home at address 1736 Willow Patch Dr, Krum, TX 76249

Reagan Select F
$398,950
- 5 bd
- 3 ba
- 2,552 sqft
1736 Willow Patch Dr, Krum, TX 76249
- Home at address 1728 Sage Garden Dr, Denton, TX 76249

Ford Select F
$439,950
- 5 bd
- 3 ba
- 2,894 sqft
1728 Sage Garden Dr, Denton, TX 76249
More floor plans in The Meadows

Considering this plan?
Our expert will guide your tour, in-person or virtual
Need more information?
Text or call (888) 545-5198
Financials
Estimated monthly payment
Let us help you find your dream home
How many bedrooms are you looking for?
Similar homes nearby
Recently added communities in this area
Nearby communities in Krum
New homes in nearby cities
More New Homes in Krum, TX
- Jome
- New homes search
- Texas
- Dallas-Fort Worth Area
- Denton County
- Krum
- The Meadows
- 7512 Autumn Hill Dr, Krum, TX 76249






























