








Book your tour. Save an average of $18,473. We'll handle the rest.
We collect exclusive builder offers, book your tours, and support you from start to housewarming.
- Confirmed tours
- Get matched & compare top deals
- Expert help, no pressure
- No added fees
Estimated value based on Jome data, T&C apply











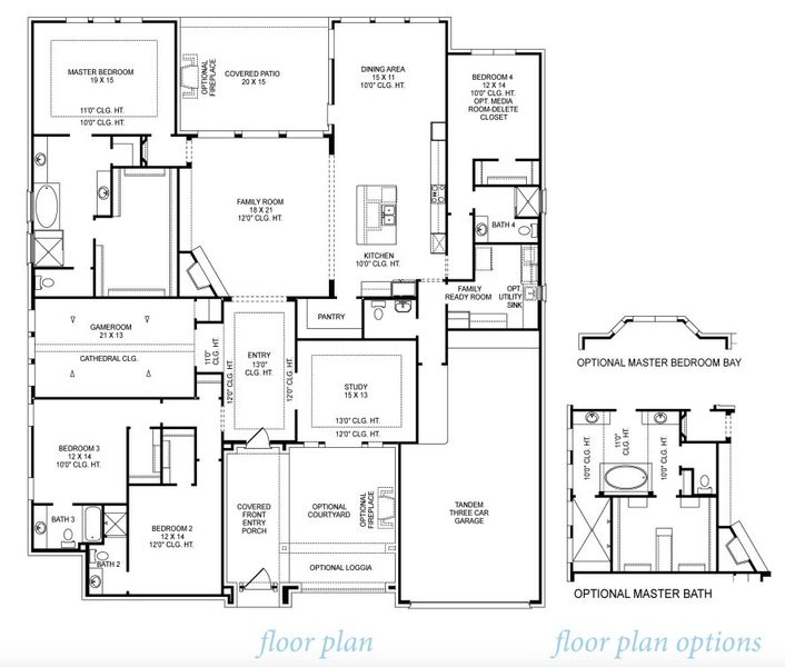
- 4 bd
- 4.5 ba
- 3,968 sqft
Hanover 3968 plan in Briarley by J. Patrick Homes
Visit the community to experience this floor plan
Why tour with Jome?
- No pressure toursTour at your own pace with no sales pressure
- Expert guidanceGet insights from our home buying experts
- Exclusive accessSee homes and deals not available elsewhere
Jome is featured in
Plan description
May also be listed on the J. Patrick Homes website
Information last verified by Jome: Wednesday at 9:08 PM (April 15, 2026)
Plan details
- Name:
- Hanover 3968
- Property type:
- Floor plan
- Community:
- Briarley
- Builder:
- J. Patrick Homes
- Size:
- 3,968 sqft
- Stories:
- 1
- Beds:
- 4
- Baths:
- 4
- Half baths:
- 1
- Garage spaces:
- 3
Plan features & finishes
- Garage/Parking:
- GarageAttached GarageTandem Parking
- Interior Features:
- Walk-In ClosetPantry
- Kitchen:
- Kitchen Island
- Laundry facilities:
- Utility/Laundry Room
- Property amenities:
- PatioFireplace
- Rooms:
- Primary Bedroom On MainKitchenGame RoomOffice/StudyDining RoomFamily RoomBreakfast AreaPrimary Bedroom Downstairs
- Upgrade Options:
- Bay WindowsCourtyardFireplace

Get a consultation with our New Homes Expert
- See how your home builds wealth
- Plan your home-buying roadmap
- Discover hidden gems
See the full plan layout
Download the floor plan PDF with room dimensions and home design details.

Instant download, no cost

Community details
Briarley at Briarley
by J. Patrick Homes, Montgomery, TX
- 2 homes
- 13 plans
- 3,488 - 5,580 sqft
View Briarley details
Want to know more about what's around here?
The Hanover 3968 floor plan is part of Briarley, a new home community by J. Patrick Homes, located in Montgomery, TX. Visit the Briarley community page for full neighborhood insights, including nearby schools, shopping, walk & bike-scores, commuting, air quality & natural hazards.

Available homes in Briarley
- Home at address 970 Boykin Wy, Montgomery, TX 77316

Dartmouth 3597.3
$849,990
- 4 bd
- 3 ba
- 3,598 sqft
970 Boykin Wy, Montgomery, TX 77316
- Home at address 903 Boykin Wy, Montgomery, TX 77316

Home
$999,990
- 5 bd
- 6 ba
- 4,913 sqft
903 Boykin Wy, Montgomery, TX 77316
More floor plans in Briarley

Considering this plan?
Our expert will guide your tour, in-person or virtual
Need more information?
Text or call (888) 545-5198
Financials
Estimated monthly payment
Let us help you find your dream home
How many bedrooms are you looking for?
Similar homes nearby
Recently added communities in this area
Nearby communities in Montgomery
New homes in nearby cities
More New Homes in Montgomery, TX
- Jome
- New homes search
- Texas
- Greater Houston Area
- Montgomery County
- Montgomery
- Briarley
- 126 Plott Hound Dr, Montgomery, TX 77316






























