








Book your tour. Save an average of $18,473. We'll handle the rest.
We collect exclusive builder offers, book your tours, and support you from start to housewarming.
- Confirmed tours
- Get matched & compare top deals
- Expert help, no pressure
- No added fees
Estimated value based on Jome data, T&C apply








- 3 bd
- 2 ba
- 1,849 sqft
Concept 1849 plan in El Dorado by Risewell Homes
Visit the community to experience this floor plan
Why tour with Jome?
- No pressure toursTour at your own pace with no sales pressure
- Expert guidanceGet insights from our home buying experts
- Exclusive accessSee homes and deals not available elsewhere
Jome is featured in
Plan description
May also be listed on the Landsea Homes website
Information last verified by Jome: Today at 5:08 PM (April 16, 2026)
Plan details
- Name:
- Concept 1849
- Property type:
- Floor plan
- Community:
- El Dorado
- Builder:
- Risewell Homes
- Size:
- 1,849 sqft
- Stories:
- 1
- Beds:
- 3
- Baths:
- 2
- Garage spaces:
- 2
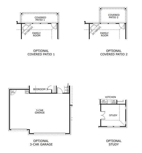
Plan features & finishes
- Garage/Parking:
- GarageAttached Garage
- Interior Features:
- Walk-In ClosetFoyerPantry
- Kitchen:
- Kitchen Island
- Laundry facilities:
- Utility/Laundry Room
- Property amenities:
- PatioFireplacePorch
- Rooms:
- Primary Bedroom On MainKitchenNookDining RoomFamily RoomPrimary Bedroom Downstairs
- Upgrade Options:
- Office/StudyExtra Car GarageGarage Bay

Get a consultation with our New Homes Expert
- See how your home builds wealth
- Plan your home-buying roadmap
- Discover hidden gems
See the full plan layout
Download the floor plan PDF with room dimensions and home design details.

Instant download, no cost

Community details
El Dorado
by Risewell Homes, Granbury, TX
- 7 homes
- 6 plans
- 1,790 - 2,888 sqft
View El Dorado details
Want to know more about what's around here?
The Concept 1849 floor plan is part of El Dorado, a new home community by Risewell Homes, located in Granbury, TX. Visit the El Dorado community page for full neighborhood insights, including nearby schools, shopping, walk & bike-scores, commuting, air quality & natural hazards.

Homes built from this plan
Available homes in El Dorado
- Home at address 257 Coronado Ct, Granbury, TX 76048

Concept 1790
$379,999
- 4 bd
- 2 ba
- 1,813 sqft
257 Coronado Ct, Granbury, TX 76048
- Home at address 284 Coronado Ct, Granbury, TX 76048

Concept 1937
$389,999
- 4 bd
- 2 ba
- 1,959 sqft
284 Coronado Ct, Granbury, TX 76048
- Home at address 288 Coronado Ct, Granbury, TX 76048

Concept 2065
$414,999
- 3 bd
- 2 ba
- 2,088 sqft
288 Coronado Ct, Granbury, TX 76048
- Home at address 253 Coronado Ct, Granbury, TX 76048

Concept 2186
$428,354
- 3 bd
- 2 ba
- 2,221 sqft
253 Coronado Ct, Granbury, TX 76048
- Home at address 317 Los Llanos Rd, Granbury, TX 76048

Concept 2870
$454,999
- 5 bd
- 3 ba
- 2,888 sqft
317 Los Llanos Rd, Granbury, TX 76048
- Home at address 333 Los Llanos Rd, Granbury, TX 76048

Concept 2492
$458,284
- 4 bd
- 3 ba
- 2,515 sqft
333 Los Llanos Rd, Granbury, TX 76048
More floor plans in El Dorado

Considering this plan?
Our expert will guide your tour, in-person or virtual
Need more information?
Text or call (888) 545-5198
Financials
Estimated monthly payment
Let us help you find your dream home
How many bedrooms are you looking for?
Similar homes nearby
Recently added communities in this area
Nearby communities in Granbury
New homes in nearby cities
More New Homes in Granbury, TX
- Jome
- New homes search
- Texas
- Dallas-Fort Worth Area
- Hood County
- Granbury
- El Dorado
- 109 Ponce De Leon Rd, Granbury, TX 76048
































