














Book your tour. Save an average of $18,473. We'll handle the rest.
We collect exclusive builder offers, book your tours, and support you from start to housewarming.
- Confirmed tours
- Get matched & compare top deals
- Expert help, no pressure
- No added fees
Estimated value based on Jome data, T&C apply





- 5 bd
- 4.5 ba
- 4,199 sqft
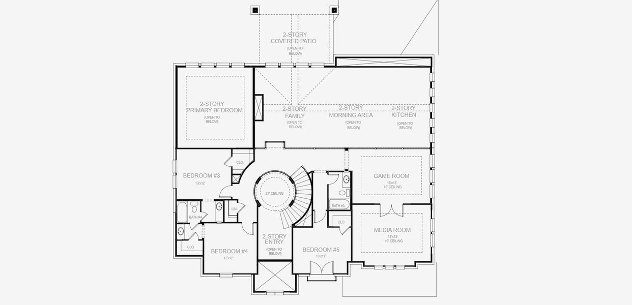
4199W plan in Kinder Ranch by Perry Homes
Visit the community to experience this floor plan
Why tour with Jome?
- No pressure toursTour at your own pace with no sales pressure
- Expert guidanceGet insights from our home buying experts
- Exclusive accessSee homes and deals not available elsewhere
Jome is featured in
Plan description
May also be listed on the Perry Homes website
Information last verified by Jome: Yesterday at 6:31 AM (March 7, 2026)
Plan details
- Name:
- 4199W
- Property type:
- Floor plan
- Community:
- Kinder Ranch
- Builder:
- Perry Homes
- Collection:
- Kinder Ranch 70'
- Lot width (feet):
- 70
- Size:
- 4,199 sqft
- Stories:
- 2
- Beds:
- 5
- Baths:
- 4
- Half baths:
- 1
- Garage spaces:
- 3
Plan features & finishes
- Garage/Parking:
- GarageAttached Garage
- Interior Features:
- Walk-In ClosetPantry
- Kitchen:
- Kitchen Island
- Laundry facilities:
- Utility/Laundry Room
- Property amenities:
- Butler's PantryTwo-Story Entry FoyerPatioFireplacePorch
- Rooms:
- Primary Bedroom On MainKitchenTwo-Story Great RoomOffice/StudyMudroomDining RoomPrimary Bedroom DownstairsPrimary Bedroom Upstairs
- Upgrade Options:
- Freestanding TubCovered PatioTheatre RoomSliding DoorsExtended Patio

Get a consultation with our New Homes Expert
- See how your home builds wealth
- Plan your home-buying roadmap
- Discover hidden gems
See the full plan layout
Download the floor plan PDF with room dimensions and home design details.

Instant download, no cost

Community details
Kinder Ranch at Kinder Ranch
by Perry Homes, San Antonio, TX
- 10 homes
- 22 plans
- 2,262 - 4,994 sqft
View Kinder Ranch details
Want to know more about what's around here?
The 4199W floor plan is part of Kinder Ranch, a new home community by Perry Homes, located in San Antonio, TX. Visit the Kinder Ranch community page for full neighborhood insights, including nearby schools, shopping, walk & bike-scores, commuting, air quality & natural hazards.

Available homes in Kinder Ranch
- Home at address 28452 Cohaset Way, San Antonio, TX 78260

Design 2263W
Kinder Ranch 50'
$549,900
- 4 bd
- 3 ba
- 2,262 sqft
28452 Cohaset Way, San Antonio, TX 78260
- Home at address 1621 Lehane Wy, San Antonio, TX 78260

3300W
Kinder Ranch 70'
$799,900
- 4 bd
- 3.5 ba
- 3,300 sqft
1621 Lehane Wy, San Antonio, TX 78260
- Home at address 28321 Seppenfield, San Antonio, TX 78260

3566W
Kinder Ranch 70'
$874,900
- 4 bd
- 4.5 ba
- 3,566 sqft
28321 Seppenfield, San Antonio, TX 78260
- Home at address 1619 Yardzen Ln, San Antonio, TX 78260

3334W
Kinder Ranch 70'
$874,900
- 4 bd
- 3.5 ba
- 3,334 sqft
1619 Yardzen Ln, San Antonio, TX 78260
- Home at address 1634 Yardzen Ln, San Antonio, TX 78260

3411W
Kinder Ranch 70'
$924,900
- 4 bd
- 3.5 ba
- 3,411 sqft
1634 Yardzen Ln, San Antonio, TX 78260
- Home at address 1634 Yardzen Wy, San Antonio, TX 78260

Home
$924,900
- 4 bd
- 3.5 ba
- 3,411 sqft
1634 Yardzen Wy, San Antonio, TX 78260
More floor plans in Kinder Ranch

Considering this plan?
Our expert will guide your tour, in-person or virtual
Need more information?
Text or call (888) 488-9243
Financials
Estimated monthly payment
Let us help you find your dream home
How many bedrooms are you looking for?
Similar homes nearby
Recently added communities in this area
Nearby communities in San Antonio
New homes in nearby cities
More New Homes in San Antonio, TX
- Jome
- New homes search
- Texas
- Greater San Antonio
- Bexar County
- San Antonio
- Kinder Ranch
- Kinder Ranch 70'
- 915 Chalkstone, San Antonio, TX 78260






























