


































- 5 bd
- 3 ba
- 2,386 sqft
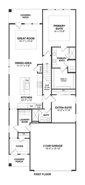
Silver Maple II plan in Heritage Ranch by K. Hovnanian® Homes
New Homes for Sale Near 915 Sagebrush Trl, Sherman, TX 75092
About this Plan
May also be listed on the K. Hovnanian® Homes website
Information last verified by Jome: Tuesday at 5:48 PM (May 19, 2026)
Plan details
- Name:
- Silver Maple II
- Property type:
- Sold
- Community:
- Heritage Ranch
- Builder:
- K. Hovnanian® Homes
- Size:
- 2,386 sqft
- Stories:
- 2
- Beds:
- 5
- Baths:
- 3
- Garage spaces:
- 2
Plan features & finishes
- Garage/Parking:
- GarageAttached Garage
- Interior Features:
- Walk-In ClosetLoft
- Laundry facilities:
- Utility/Laundry Room
- Property amenities:
- PatioPorch
- Rooms:
- KitchenDining RoomFamily RoomPrimary Bedroom Downstairs

Community details
Heritage Ranch at Heritage Ranch
by K. Hovnanian® Homes, Sherman, TX
- 2 homes
- 2,253 - 2,641 sqft
View Heritage Ranch details
Want to know more about what's around here?
The Silver Maple II floor plan is part of Heritage Ranch, a new home community by K. Hovnanian® Homes, located in Sherman, TX. Visit the Heritage Ranch community page for full neighborhood insights, including nearby schools, shopping, walk & bike-scores, commuting, air quality & natural hazards.

Available homes in Heritage Ranch
- Home at address 3512 River Creek Trl, Sherman, TX 75092
Savings$408,000
Move-in ready- 5 bd
- 4 ba
- 2,641 sqft
3512 River Creek Trl, Sherman, TX 75092
Financials
Nearby communities in Sherman
Homes in Sherman by K. Hovnanian® Homes
Recently added communities in this area
Other Builders in Sherman, TX
Nearby sold homes
New homes in nearby cities
More New Homes in Sherman, TX
- Jome
- New homes search
- Texas
- Dallas-Fort Worth Area
- Grayson County
- Sherman
- Heritage Ranch
- 915 Sagebrush Trl, Sherman, TX 75092


















































