


























- 3 bd
- 2 ba
- 1,584 sqft
Corby plan in Legacy at Lake Dunlap by Highland Homes
New Homes for Sale Near 105 Lake Como Pt, New Braunfels, TX 78130
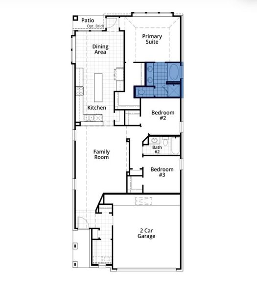
About this Plan
May also be listed on the Highland Homes website
Information last verified by Jome: Monday at 8:19 AM (March 16, 2026)
Plan details
- Name:
- Corby
- Property type:
- Sold
- Community:
- Legacy at Lake Dunlap
- Builder:
- Highland Homes
- Collection:
- Legacy at Lake Dunlap: 40ft. lots
- Lot width (feet):
- 40
- Size:
- 1,584 sqft
- Stories:
- 1
- Beds:
- 3
- Baths:
- 2
- Garage spaces:
- 2
Plan features & finishes
- Garage/Parking:
- GarageAttached Garage
- Interior Features:
- Walk-In ClosetPantry
- Kitchen:
- Kitchen Island
- Laundry facilities:
- Utility/Laundry Room
- Property amenities:
- Patio
- Rooms:
- Primary Bedroom On MainKitchenDining RoomFamily RoomPrimary Bedroom Downstairs
- Upgrade Options:
- Bay WindowsFreestanding TubExtended Outdoor LivingSeparate Shower and TubAlternate Primary BathShower in Primary BathFireplace
See the full plan layout
Download the floor plan PDF with room dimensions and home design details.

Instant download, no cost

Community details
Legacy at Lake Dunlap
by Highland Homes, New Braunfels, TX
View Legacy at Lake Dunlap details
Want to know more about what's around here?
The Corby floor plan is part of Legacy at Lake Dunlap, a new home community by Highland Homes, located in New Braunfels, TX. Visit the Legacy at Lake Dunlap community page for full neighborhood insights, including nearby schools, shopping, walk & bike-scores, commuting, air quality & natural hazards.

Financials
Nearby communities in New Braunfels
Homes in New Braunfels by Highland Homes
Recently added communities in this area
Other Builders in New Braunfels, TX
Nearby sold homes
New homes in nearby cities
More New Homes in New Braunfels, TX
- Jome
- New homes search
- Texas
- Greater San Antonio
- Guadalupe County
- New Braunfels
- Legacy at Lake Dunlap
- Legacy at Lake Dunlap: 40ft. lots
- 105 Lake Como Pt, New Braunfels, TX 78130


































































