












Book your tour. Save an average of $18,473. We'll handle the rest.
- Confirmed tours
- Get matched & compare top deals
- Expert help, no pressure
- No added fees
Estimated value based on Jome data, T&C apply



























































- 4 bd
- 4 ba
- 2,673 sqft
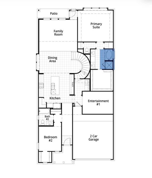
Panamera plan in Sunflower Ridge by Highland Homes
Visit the community to experience this floor plan
Why tour with Jome?
- No pressure toursTour at your own pace with no sales pressure
- Expert guidanceGet insights from our home buying experts
- Exclusive accessSee homes and deals not available elsewhere
Jome is featured in
Plan description
May also be listed on the Highland Homes website
Information last verified by Jome: Wednesday at 1:05 AM (January 7, 2026)
Plan details
- Name:
- Panamera
- Property status:
- Floor plan
- Size:
- 2,673 sqft
- Stories:
- 2
- Beds from:
- 4
- Beds to:
- 5
- Baths from:
- 4
- Baths to:
- 5
- Garage spaces:
- 2
Plan features & finishes
- Garage/Parking:
- GarageAttached Garage
- Interior Features:
- Walk-In ClosetShower and Tub in Primary BathPantryLoft
- Kitchen:
- Kitchen Island
- Laundry facilities:
- Utility/Laundry Room
- Property amenities:
- Patio
- Rooms:
- Primary Bedroom On MainKitchenDining RoomFamily RoomOpen Concept FloorplanPrimary Bedroom Downstairs
- Upgrade Options:
- Bay WindowsFreestanding TubExtra Floor OptionExtended Outdoor LivingOffice/StudySliding Glass DoorsShower in Primary BathExtra BathroomExtra BedroomFireplace

Get a consultation with our New Homes Expert
- See how your home builds wealth
- Plan your home-buying roadmap
- Discover hidden gems
See the full plan layout
Download the floor plan PDF with room dimensions and home design details.

Instant download, no cost

Community details
Sunflower Ridge
by Highland Homes, New Braunfels, TX
- 1 home
- 11 plans
- 1,581 - 2,673 sqft
View Sunflower Ridge details
Want to know more about what's around here?
The Panamera floor plan is part of Sunflower Ridge, a new home community by Highland Homes, located in New Braunfels, TX. Visit the Sunflower Ridge community page for full neighborhood insights, including nearby schools, shopping, walk & bike-scores, commuting, air quality & natural hazards.

Available homes in Sunflower Ridge
- Home at address 837 Saltbush St, New Braunfels, TX 78130

Images coming soon
Rover Plan
$428,477
- 4 bd
- 3 ba
- 1,954 sqft
837 Saltbush St, New Braunfels, TX 78130
More floor plans in Sunflower Ridge

Considering this plan?
Our expert will guide your tour, in-person or virtual
Need more information?
Text or call (888) 486-2818
Financials
Estimated monthly payment
Let us help you find your dream home
How many bedrooms are you looking for?
Similar homes nearby
Recently added communities in this area
Nearby communities in New Braunfels
New homes in nearby cities
More New Homes in New Braunfels, TX
- Jome
- New homes search
- Texas
- Greater San Antonio
- Comal County
- New Braunfels
- Sunflower Ridge
- 691 Sunforest Ln, New Braunfels, TX 78130




























