




- 3 bd
- 2 ba
- 1,588 sqft
Bryn II C plan in Emberly by DSLD Homes
New Homes for Sale Near 10726 Sky Creek Ln, Beasley, TX 77417
About this Plan
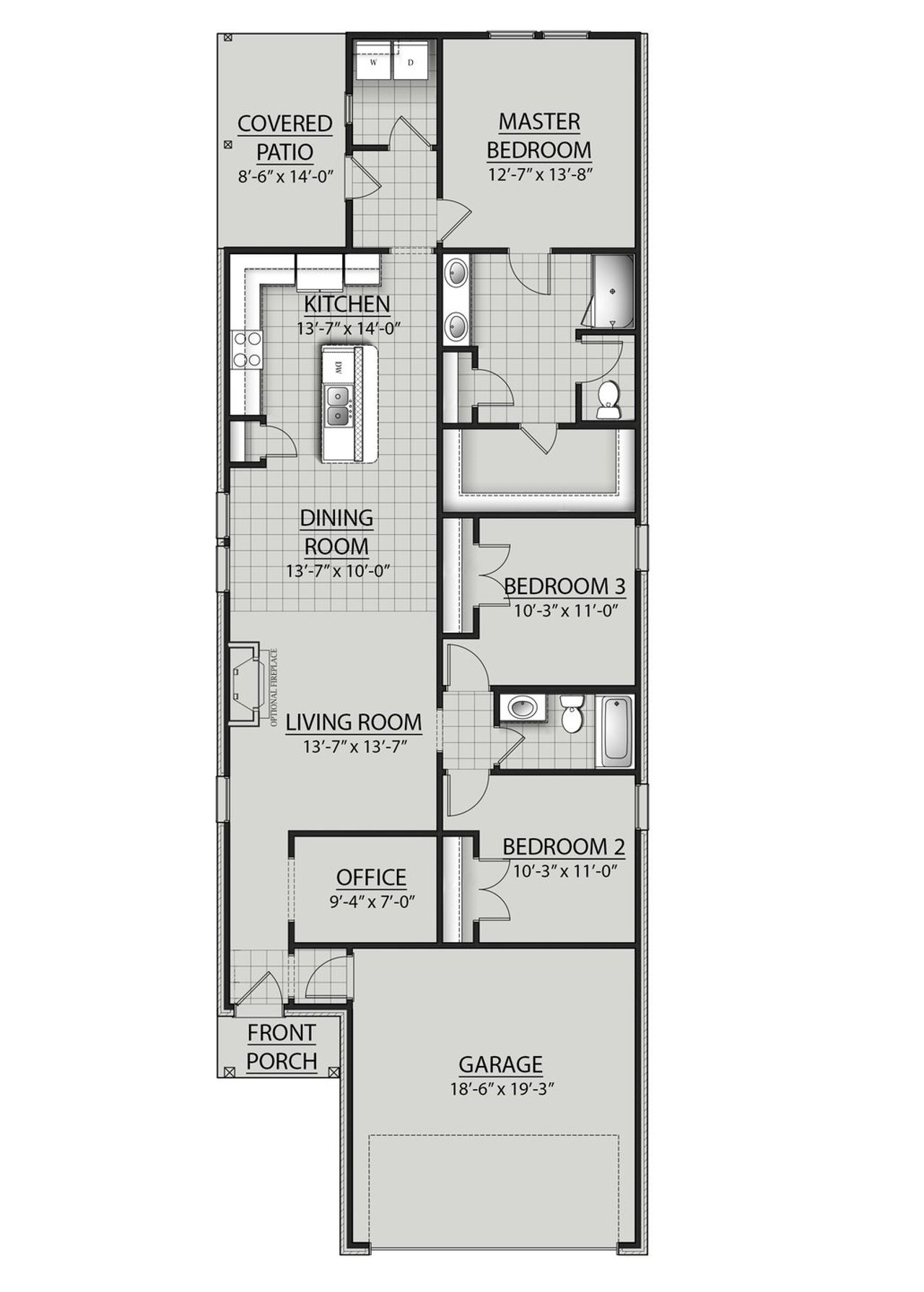
Experience comfort and efficiency with the Bryn II C floor plan by DSLD Homes—an energy-efficient design offering 1,588 square feet of living space and 2,135 total square feet. This thoughtfully crafted home features 3 bedrooms and 2 bathrooms in a modern open floor plan, ideal for families or professionals seeking space and flexibility.
The exterior blends classic brick and siding for a timeless look, while the interior includes a dedicated office space—perfect for remote work or a quiet study area. The master suite offers a spacious retreat with a large walk-in closet, double vanity, a private water closet, and an oversized walk-in shower designed for relaxation and convenience.
With a two-car garage and smart layout, the Bryn II C balances practicality and style, making it a perfect choice for today’s homeowner.
May also be listed on the DSLD Homes website
Information last verified by Jome: Monday at 2:27 PM (November 17, 2025)
Plan details
- Name:
- Bryn II C
- Property status:
- Sold
- Size:
- 1,588 sqft
- Stories:
- 1
- Beds:
- 3
- Baths:
- 2
- Garage spaces:
- 2
Plan features & finishes
- Garage/Parking:
- GarageAttached Garage
- Interior Features:
- Walk-In Closet
- Laundry facilities:
- Utility/Laundry Room
- Property amenities:
- PatioPorch
- Rooms:
- Primary Bedroom On MainKitchenOffice/StudyDining RoomFamily RoomLiving RoomPrimary Bedroom Downstairs

Community details
Emberly at Emberly
by DSLD Homes, Beasley, TX
- 4 plans
- 1,434 - 2,217 sqft
View Emberly details
Want to know more about what's around here?
The Bryn II C floor plan is part of Emberly, a new home community by DSLD Homes, located in Beasley, TX. Visit the Emberly community page for full neighborhood insights, including nearby schools, shopping, walk & bike-scores, commuting, air quality & natural hazards.

More floor plans in Emberly
Financials
Nearby communities in Beasley
Homes in Beasley by DSLD Homes
Recently added communities in this area
Other Builders in Beasley, TX
Nearby sold homes
New homes in nearby cities
More New Homes in Beasley, TX
- Home
- New homes
- Texas
- Greater Houston Area
- Fort Bend County
- Beasley
- Emberly
- 10726 Sky Creek Ln, Beasley, TX 77417

































































