













Book your tour. Save an average of $18,473. We'll handle the rest.
- Confirmed tours
- Get matched & compare top deals
- Expert help, no pressure
- No added fees
Estimated value based on Jome data, T&C apply


















Why tour with Jome?
- No pressure toursTour at your own pace with no sales pressure
- Expert guidanceGet insights from our home buying experts
- Exclusive accessSee homes and deals not available elsewhere
Jome is featured in
- Single-Family
- Quick move-in
- $182.78/sqft
- $1,000/annual HOA
Home description
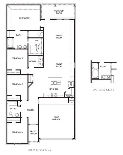
EST. COMPLETION DATE FEBRUARY 2026. The Gaven is a thoughtfully designed single-story home offering 1,778 sq. ft. of open concept living. Featuring 4 bedrooms and 2 full bathrooms, this layout combines modern comfort with a timeless style. The kitchen boasts silestone countertops, stainless steel appliances, and an oversized island that seamlessly connects to the dining and family rooms—perfect for entertaining. Expansive windows fill the main living areas with natural light. The primary suite serves as a luxurious retreat with a large walk-in closet, dual sinks, and a walk-in shower. Each secondary bedroom features plush carpeting and spacious closet, ensuring comfort for family and guests. Located in Emberly, a master-planned community featuring The Haven Amenity Village, that includes a clubhouse with fitness center, outdoor courtyard, resort-style pool, water park with splash pad, event lawn, playground, pickleball court, sand volleyball court, dog park, hike/bike trails, and more!
D.R. Horton - Texas, LTD, MLS 89287310
May also be listed on the D.R. Horton website
Information last verified by Jome: Today at 2:50 AM (December 6, 2025)
Home highlights
Major Houston business hub home to energy giants, top jobs, and master-planned communities with greenbelt access.
Book your tour. Save an average of $18,473. We'll handle the rest.
We collect exclusive builder offers, book your tours, and support you from start to housewarming.
- Confirmed tours
- Get matched & compare top deals
- Expert help, no pressure
- No added fees
Estimated value based on Jome data, T&C apply
Home details
- Property status:
- Move-in ready
- Size:
- 1,778 sqft
- Stories:
- 1
- Beds:
- 4
- Baths:
- 2
- Garage spaces:
- 2
Construction details
- Builder Name:
- D.R. Horton
- Year Built:
- 2025
- Roof:
- Composition Roofing
Home features & finishes
- Construction Materials:
- Brick
- Flooring:
- Vinyl FlooringCarpet Flooring
- Foundation Details:
- Slab
- Garage/Parking:
- GarageAttached Garage
- Home amenities:
- Green Construction
- Interior Features:
- Wired For SecurityFoyerBreakfast Bar
- Kitchen:
- DishwasherMicrowave OvenOvenDisposalGas CooktopGas Oven
- Laundry facilities:
- DryerWasher
- Property amenities:
- BarDeckBackyardPatio
- Rooms:
- Primary Bedroom On MainPrimary Bedroom Downstairs
Utility information
- Heating:
- Water Heater, Gas Heating
- Utilities:
- HVAC

Community details
Emberly at Emberly
by D.R. Horton, Beasley, TX
- 4 homes
- 10 plans
- 1,535 - 2,620 sqft
View Emberly details
More homes in Emberly
Floor plans in Emberly
About the builder - D.R. Horton
Neighborhood
Home address
Schools in Lamar Consolidated Independent School District
GreatSchools’ Summary Rating calculation is based on 4 of the school’s themed ratings, including test scores, student/academic progress, college readiness, and equity. This information should only be used as a reference. Jome is not affiliated with GreatSchools and does not endorse or guarantee this information. Please reach out to schools directly to verify all information and enrollment eligibility. Data provided by GreatSchools.org © 2025
Places of interest
Getting around
Air quality
Natural hazards risk
Climate hazards can impact homes and communities, with risks varying by location. These scores reflect the potential impact of natural disasters and climate-related risks on Fort Bend County
Provided by FEMA

Considering this home?
Our expert will guide your tour, in-person or virtual
Need more information?
Text or call (888) 486-2818
Financials
Estimated monthly payment
Similar homes nearby
Recently added communities in this area
Nearby communities in Beasley
New homes in nearby cities
More New Homes in Beasley, TX
D.R. Horton - Texas, LTD, MLS 89287310
Copyright © 2025, Houston Realtors Information Service, Inc. The information provided is exclusively for consumers’ personal, non-commercial use, and may not be used for any purpose other than to identify prospective properties consumers may be interested in purchasing. Information is deemed reliable but not guaranteed. All information provided should be independently verified.
Read moreLast checked Dec 6, 2:50 am
- Home
- New homes
- Texas
- Greater Houston Area
- Fort Bend County
- Beasley
- Emberly
- 10718 Sage Bend Dr, Beasley, TX 77417

































