
































- 4 bd
- 3 ba
- 2,351 sqft
Sweet Pea plan in Ascend at Legends Bay by K. Hovnanian® Homes
New Homes for Sale Near 4823 Legends Bay Dr, Baytown, TX 77523
About this Plan
May also be listed on the K. Hovnanian® Homes website
Information last verified by Jome: Thursday at 5:55 PM (March 5, 2026)
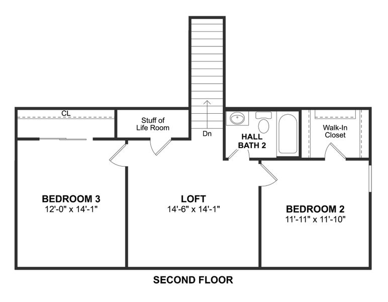
Plan details
- Name:
- Sweet Pea
- Property type:
- Sold
- Community:
- Ascend at Legends Bay
- Builder:
- K. Hovnanian® Homes
- Size:
- 2,351 sqft
- Stories:
- 2
- Beds:
- 4
- Baths:
- 3
- Garage spaces:
- 2
Plan features & finishes
- Garage/Parking:
- GarageAttached Garage
- Interior Features:
- Walk-In ClosetLoft
- Laundry facilities:
- Utility/Laundry Room
- Property amenities:
- Porch
- Rooms:
- Bonus RoomDining RoomFamily RoomPrimary Bedroom Downstairs

Community details
Ascend at Legends Bay
by K. Hovnanian® Homes, Baytown, TX
- 2 homes
- 2,307 - 2,868 sqft
View Ascend at Legends Bay details
Want to know more about what's around here?
The Sweet Pea floor plan is part of Ascend at Legends Bay, a new home community by K. Hovnanian® Homes, located in Baytown, TX. Visit the Ascend at Legends Bay community page for full neighborhood insights, including nearby schools, shopping, walk & bike-scores, commuting, air quality & natural hazards.

Homes built from this plan
Available homes in Ascend at Legends Bay
- Home at address 8414 Bay Ridge Cir, Baytown, TX 77523

$420,000
Move-in ready- 5 bd
- 3 ba
- 2,868 sqft
8414 Bay Ridge Cir, Baytown, TX 77523
Financials
Nearby communities in Baytown
Homes in Baytown by K. Hovnanian® Homes
Recently added communities in this area
Other Builders in Baytown, TX
Nearby sold homes
New homes in nearby cities
More New Homes in Baytown, TX
- Jome
- New homes search
- Texas
- Greater Houston Area
- Chambers County
- Baytown
- Ascend at Legends Bay
- 4823 Legends Bay Dr, Baytown, TX 77523




















































