




- 4 bd
- 4.5 ba
- 4,082 sqft
Plan 6031 plan in Mustang Lakes – 86’ by Tradition Homes
New Homes for Sale Near 2309 Sorrelwood Ct, Celina, TX 75009
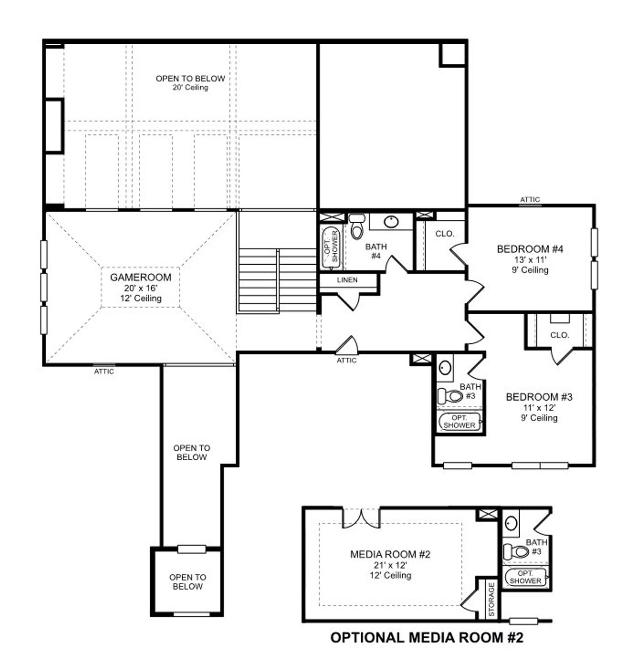
About this Plan
May also be listed on the Tradition Homes website
Information last verified by Jome: Tuesday at 8:34 AM (December 30, 2025)
Plan details
- Name:
- Plan 6031
- Property status:
- Sold
- Lot width (feet):
- 86
- Size:
- 4,082 sqft
- Stories:
- 2
- Beds:
- 4
- Baths:
- 4.5
Plan features & finishes
- Garage/Parking:
- GarageAttached Garage
- Interior Features:
- Walk-In Closet
- Laundry facilities:
- Utility/Laundry Room
- Property amenities:
- Covered Outdoor LivingPorch
- Rooms:
- Primary Bedroom On MainKitchenPowder RoomGame RoomMedia RoomOffice/StudyDining RoomFamily RoomPrimary Bedroom Downstairs
See the full plan layout
Download the floor plan PDF with room dimensions and home design details.

Instant download, no cost

Community details
Mustang Lakes – 86’ at Mustang Lakes
by Tradition Homes, Celina, TX
- 8 plans
- 3,560 - 5,487 sqft
View Mustang Lakes – 86’ details
Want to know more about what's around here?
The Plan 6031 floor plan is part of Mustang Lakes – 86’, a new home community by Tradition Homes, located in Celina, TX. Visit the Mustang Lakes – 86’ community page for full neighborhood insights, including nearby schools, shopping, walk & bike-scores, commuting, air quality & natural hazards.

More floor plans in Mustang Lakes – 86’
Financials
Nearby communities in Celina
Homes in Celina by Tradition Homes
Recently added communities in this area
Other Builders in Celina, TX
Nearby sold homes
New homes in nearby cities
More New Homes in Celina, TX
- Jome
- New homes search
- Texas
- Dallas-Fort Worth Area
- Collin County
- Celina
- Mustang Lakes – 86’
- 2309 Sorrelwood Ct, Celina, TX 75009







































































