









Book your tour. Save an average of $18,473. We'll handle the rest.
We collect exclusive builder offers, book your tours, and support you from start to housewarming.
- Confirmed tours
- Get matched & compare top deals
- Expert help, no pressure
- No added fees
Estimated value based on Jome data, T&C apply















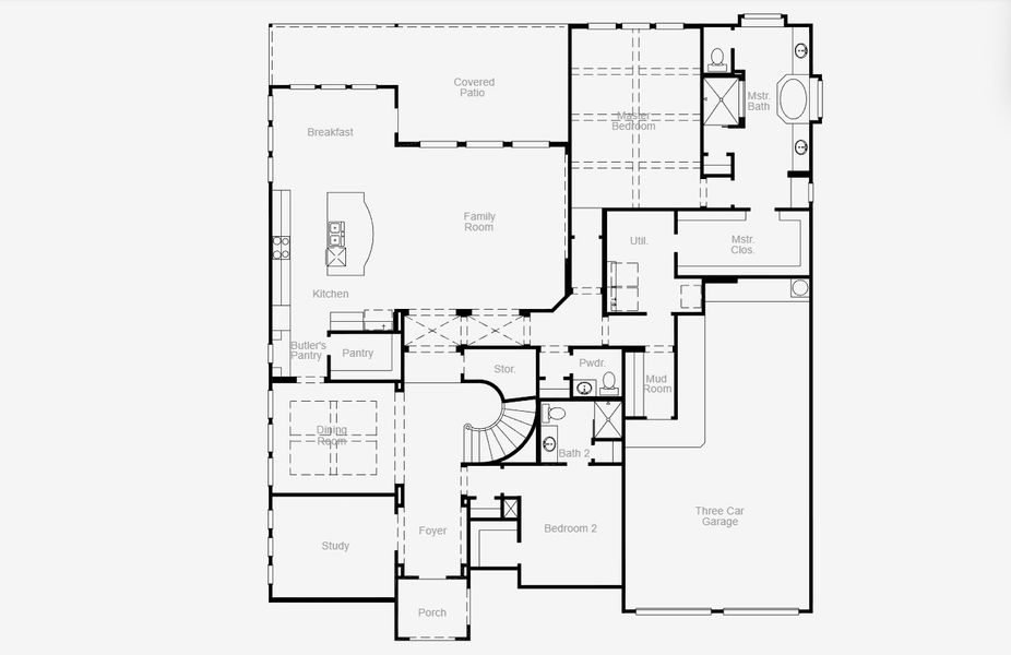
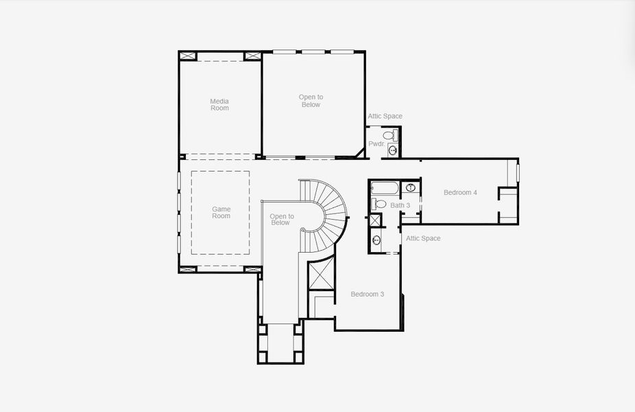
- 4 bd
- 3.5 ba
- 4,168 sqft
Pineland plan in Mustang Lakes by Coventry Homes
Visit the community to experience this floor plan
Why tour with Jome?
- No pressure toursTour at your own pace with no sales pressure
- Expert guidanceGet insights from our home buying experts
- Exclusive accessSee homes and deals not available elsewhere
Jome is featured in
Plan description
May also be listed on the Coventry Homes website
Information last verified by Jome: Today at 2:39 AM (May 30, 2026)
Plan details
- Name:
- Pineland
- Property type:
- Floor plan
- Community:
- Mustang Lakes
- Builder:
- Coventry Homes
- Collection:
- Mustang Lakes 74'
- Lot width (feet):
- 74
- Size:
- 4,168 sqft
- Stories:
- 2
- Beds:
- 4
- Baths:
- 3
- Half baths:
- 2
- Garage spaces:
- 3
Plan features & finishes
- Garage/Parking:
- GarageAttached GarageTandem Parking
- Interior Features:
- Walk-In ClosetFoyerPantryStorage
- Kitchen:
- Kitchen Island
- Laundry facilities:
- Utility/Laundry Room
- Property amenities:
- PatioPorch
- Rooms:
- Primary Bedroom On MainKitchenGame RoomMedia RoomOffice/StudyMudroomDining RoomFamily RoomBreakfast AreaOpen Concept FloorplanPrimary Bedroom Downstairs
- Upgrade Options:
- Extended GarageOutdoor KitchenGarage BayExtra BathroomOutdoor FireplaceExtra BedroomFireplace

Get a consultation with our New Homes Expert
- See how your home builds wealth
- Plan your home-buying roadmap
- Discover hidden gems
See the full plan layout
Download the floor plan PDF with room dimensions and home design details.

Instant download, no cost

Community details
Mustang Lakes at Mustang Lakes
by Coventry Homes, McKinney, TX
- 11 homes
- 19 plans
- 1,807 - 4,168 sqft
View Mustang Lakes details
Want to know more about what's around here?
The Pineland floor plan is part of Mustang Lakes, a new home community by Coventry Homes, located in McKinney, TX. Visit the Mustang Lakes community page for full neighborhood insights, including nearby schools, shopping, walk & bike-scores, commuting, air quality & natural hazards.

Homes built from this plan
Available homes in Mustang Lakes
- Home at address 3101 Casa Blanca St, Celina, TX 75009

Hudson
Mustang Lakes 40'
$569,990
- 4 bd
- 3 ba
- 2,781 sqft
3101 Casa Blanca St, Celina, TX 75009
- Home at address 3204 Philly St, Celina, TX 75009

Hudson
Mustang Lakes 40'
$579,990
- 4 bd
- 3 ba
- 2,767 sqft
3204 Philly St, Celina, TX 75009
- Home at address 3033 Casa Blanca St, Celina, TX 75009

Karnes
Mustang Lakes 40'
$607,730
- 4 bd
- 3.5 ba
- 2,747 sqft
3033 Casa Blanca St, Celina, TX 75009
- Home at address 3029 Casa Blanca St, Celina, TX 75009

Kenedy
Mustang Lakes 40'
$631,728
- 4 bd
- 3 ba
- 2,994 sqft
3029 Casa Blanca St, Celina, TX 75009
- Home at address 3200 Philly St, Celina, TX 75009

Kenedy
Mustang Lakes 40'
$639,937
- 4 bd
- 3 ba
- 3,003 sqft
3200 Philly St, Celina, TX 75009
- Home at address 3912 Snowy River Ct, Celina, TX 75009

Crockett
Mustang Lakes 74'
$926,675
- 4 bd
- 3 ba
- 3,148 sqft
3912 Snowy River Ct, Celina, TX 75009
More floor plans in Mustang Lakes

Considering this plan?
Our expert will guide your tour, in-person or virtual
Need more information?
Text or call (888) 545-5198
Financials
Estimated monthly payment
Let us help you find your dream home
How many bedrooms are you looking for?
Similar homes nearby
Recently added communities in this area
Nearby communities in McKinney
New homes in nearby cities
More New Homes in McKinney, TX
- Jome
- New homes search
- Texas
- Dallas-Fort Worth Area
- Collin County
- McKinney
- Mustang Lakes
- Mustang Lakes 74'
- 2321 Sorrelwood Ct, McKinney, TX 75071































