



- 3 bd
- 2.5 ba
- 2,207 sqft
Akron II plan in Valencia on the Lake by Megatel Homes
New Homes for Sale Near Little Elm, TX 75068
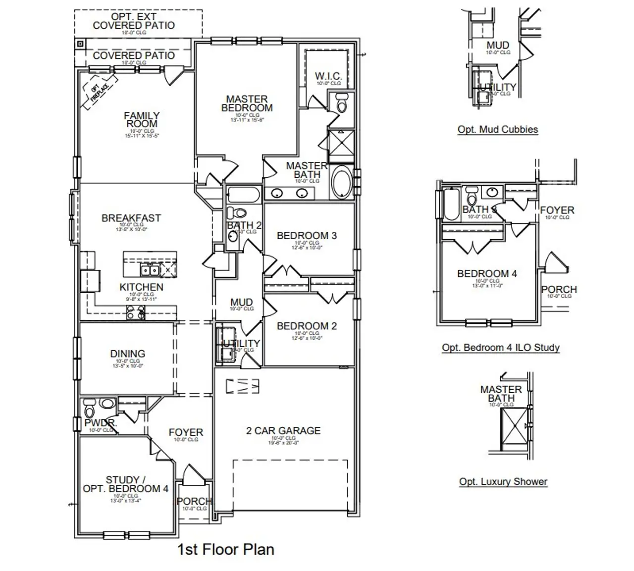
About this Plan
Our Akron II plan is a one-story, 2,207 square foot home featuring three bedrooms, two and a half bathrooms, a study, and a two-car garage. This home is available with A and B elevations.
May also be listed on the Megatel Homes website
Information last verified by Jome: Today at 9:46 AM (December 18, 2025)
Plan details
- Name:
- Akron II
- Property status:
- Sold
- Size:
- 2,207 sqft
- Stories:
- 1
- Beds:
- 3
- Baths:
- 2
- Half baths:
- 1
- Garage spaces:
- 2
Plan features & finishes
- Garage/Parking:
- GarageAttached Garage
- Interior Features:
- Walk-In ClosetFoyerPantry
- Kitchen:
- Kitchen Island
- Laundry facilities:
- Utility/Laundry Room
- Rooms:
- Primary Bedroom On MainKitchenDining RoomFamily RoomBreakfast AreaPrimary Bedroom Downstairs
See the full plan layout
Download the floor plan PDF with room dimensions and home design details.

Instant download, no cost

Community details
Valencia on the Lake at Valencia On the Lake
by Megatel Homes, Little Elm, TX
View Valencia on the Lake details
Want to know more about what's around here?
The Akron II floor plan is part of Valencia on the Lake, a new home community by Megatel Homes, located in Little Elm, TX. Visit the Valencia on the Lake community page for full neighborhood insights, including nearby schools, shopping, walk & bike-scores, commuting, air quality & natural hazards.





















































