



Book your tour. Save an average of $18,473. We'll handle the rest.
We collect exclusive builder offers, book your tours, and support you from start to housewarming.
- Confirmed tours
- Get matched & compare top deals
- Expert help, no pressure
- No added fees
Estimated value based on Jome data, T&C apply


- 5 bd
- 4.5 ba
- 3,604 sqft
Cedarbrook - Single Family Homes plan in Garrett Farms by Dream Finders Homes
Visit the community to experience this floor plan
Why tour with Jome?
- No pressure toursTour at your own pace with no sales pressure
- Expert guidanceGet insights from our home buying experts
- Exclusive accessSee homes and deals not available elsewhere
Jome is featured in
Plan description
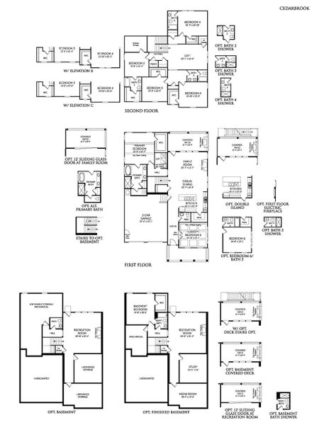
The Cedarbrook floorplan offers an impressive 3,604 square feet of versatile living space with 5–6 bedrooms and 4.5–5.5 baths, designed for comfort and flexibility. A first-floor owner’s suite provides a private retreat, perfectly complemented by an open-concept main living area ideal for both everyday living and entertaining. The spacious kitchen flows seamlessly into the dining and family room, creating a warm and inviting heart of the home. A dedicated flex space on the main level offers endless possibilities, from a home office to a formal dining room or guest suite. Upstairs, a generous loft provides additional living space, while unfinished storage allows room to grow or customize to fit your needs. Complete with a 2-car garage and thoughtfully designed throughout, the Cedarbrook blends function, space, and style for modern living.
May also be listed on the Dream Finders Homes website
Information last verified by Jome: Today at 8:29 AM (April 1, 2026)
Book your tour. Save an average of $18,473. We'll handle the rest.
We collect exclusive builder offers, book your tours, and support you from start to housewarming.
- Confirmed tours
- Get matched & compare top deals
- Expert help, no pressure
- No added fees
Estimated value based on Jome data, T&C apply
Plan details
- Name:
- Cedarbrook - Single Family Homes
- Property type:
- Floor plan
- Community:
- Garrett Farms
- Builder:
- Dream Finders Homes
- Size:
- 3,604 sqft
- Stories:
- 2
- Beds from:
- 5
- Beds to:
- 6
- Baths:
- 4
- Half baths:
- 1
- Garage spaces:
- 2
Plan features & finishes
- Garage/Parking:
- Garage

Get a consultation with our New Homes Expert
- See how your home builds wealth
- Plan your home-buying roadmap
- Discover hidden gems

Community details
Garrett Farms
by Dream Finders Homes, Franklin, TN
- 6 plans
- 2,658 - 3,964 sqft
View Garrett Farms details
Want to know more about what's around here?
The Cedarbrook - Single Family Homes floor plan is part of Garrett Farms, a new home community by Dream Finders Homes, located in Franklin, TN. Visit the Garrett Farms community page for full neighborhood insights, including nearby schools, shopping, walk & bike-scores, commuting, air quality & natural hazards.

More floor plans in Garrett Farms
- View details for Ivywood - Single Family Homes

Ivywood - Single Family Homes
$945,990+- 5 bd
- 4.5 ba
- 3,499 sqft
- View details for Juniper - Single Family Homes

Juniper - Single Family Homes
$999,990+- 5 bd
- 4.5 ba
- 3,964 sqft

Considering this plan?
Our expert will guide your tour, in-person or virtual
Need more information?
Text or call (888) 545-5198
Financials
Estimated monthly payment
Let us help you find your dream home
How many bedrooms are you looking for?
Similar homes nearby
Recently added communities in this area
Nearby communities in Franklin
New homes in nearby cities
More New Homes in Franklin, TN
- Jome
- New homes search
- Tennessee
- Nashville-Memphis Area
- Williamson County
- Franklin
- Garrett Farms
- 4398-4354 TN-6 Thompson'S Sta, Franklin, TN 37064

























