



Book your tour. Save an average of $18,473. We'll handle the rest.
- Confirmed tours
- Get matched & compare top deals
- Expert help, no pressure
- No added fees
Estimated value based on Jome data, T&C apply
- 3 bd
- 2 ba
- 1,964 sqft
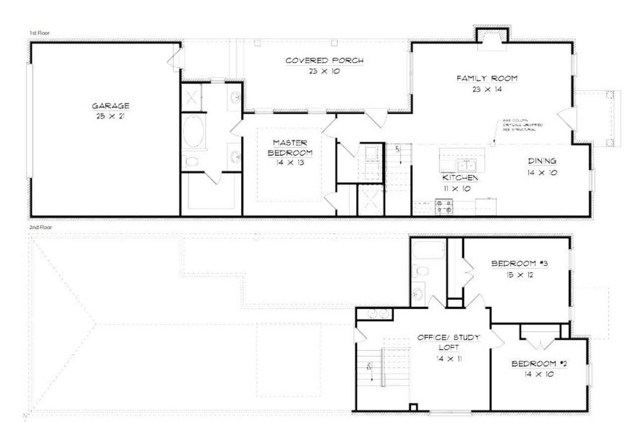
Bedford plan in The Paddock by Southeastern Building Corporation
Visit the community to experience this floor plan
Why tour with Jome?
- No pressure toursTour at your own pace with no sales pressure
- Expert guidanceGet insights from our home buying experts
- Exclusive accessSee homes and deals not available elsewhere
Jome is featured in
Plan description
May also be listed on the Southeastern Building Corporation website
Information last verified by Jome: Monday at 10:28 AM (January 5, 2026)
Plan details
- Name:
- Bedford
- Property status:
- Floor plan
- Size:
- 1,964 sqft
- Stories:
- 2
- Beds:
- 3
- Baths:
- 2
- Garage spaces:
- 2
Plan features & finishes
- Garage/Parking:
- GarageAttached Garage
- Interior Features:
- Walk-In Closet
- Laundry facilities:
- Utility/Laundry Room
- Property amenities:
- Covered Porch
- Rooms:
- KitchenOffice/StudyDining RoomFamily RoomPrimary Bedroom Downstairs
- Upgrade Options:
- Loft

Get a consultation with our New Homes Expert
- See how your home builds wealth
- Plan your home-buying roadmap
- Discover hidden gems
See the full plan layout
Download the floor plan PDF with room dimensions and home design details.

Instant download, no cost

Community details
The Paddock
by Southeastern Building Corporation, Gallatin, TN
- 14 plans
- 1,576 - 2,227 sqft
View The Paddock details
Want to know more about what's around here?
The Bedford floor plan is part of The Paddock, a new home community by Southeastern Building Corporation, located in Gallatin, TN. Visit the The Paddock community page for full neighborhood insights, including nearby schools, shopping, walk & bike-scores, commuting, air quality & natural hazards.

More floor plans in The Paddock

Considering this plan?
Our expert will guide your tour, in-person or virtual
Need more information?
Text or call (888) 486-2818
Financials
Estimated monthly payment
Let us help you find your dream home
How many bedrooms are you looking for?
Similar homes nearby
Recently added communities in this area
Nearby communities in Gallatin
New homes in nearby cities
More New Homes in Gallatin, TN
- Jome
- New homes search
- Tennessee
- Nashville-Memphis Area
- Sumner County
- Gallatin
- The Paddock
- 1165 Kennesaw Blvd, Gallatin, TN 37066

































